Недвижимость
Ознакомьтесь с нашими объявлениями
Контакты
Расскажите нам о своих потребностях

8715 HIGHPOINT BOULEVARD

Под контрактом
$149,900

BTC: 1.54398413

ETH: 45.70121951

-$5K (2025/10/27)
106 Дней
2 спален
2 ванн
1,288 кв.фт.
Est. Предполагаемый диапазон продаж: $0 - $0
$0

Обзор

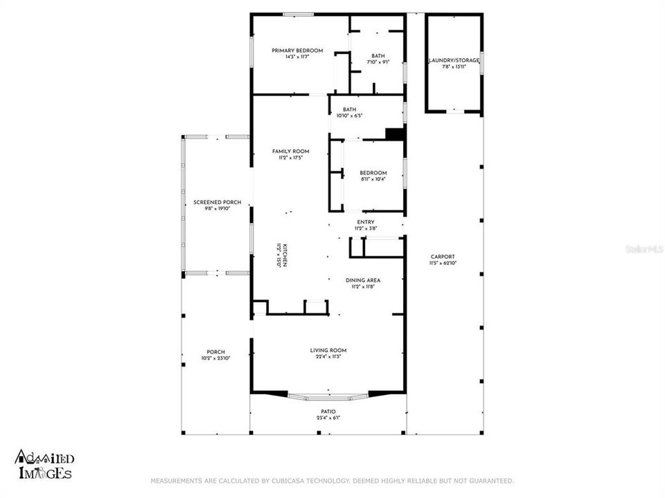
Under contract-accepting backup offers. Welcome to this retreat from the daily hustle and bustle. Located in the sought after 55+ community, where you own the land!! Highpoint offers a community pool, shuffleboard, tennis courts and much much more. This charming residence offers a popular layout that combines functionality with the open concept, making it the perfect place to call home. Step inside to discover a space that is inviting and homey. The flooring, replaced in 2019, lends a modern touch while providing durability for everyday living. Vinyl windows in the Florida room, also updated in 2019, offer a seamless transition between indoor comfort and the beauty of the outdoors. The bathrooms have been tastefully updated with newer toilets, fresh paint, and new hardware, adding a pep to your step in your everyday routines. Meanwhile, the entire house received a fresh coat of paint in 2019, rejuvenating its exterior and enhancing its curb appeal. Practical upgrades abound, including a replaced electrical panel in 2019, ensuring safety and reliability for years to come. Built-in cabinets and a utility room with ample storage space further enhance the functionality of the home, providing solutions for organization and convenience. Welcome to your new home, where thoughtful updates and a popular layout come together to create a space that feels like home from the moment you step inside.

Локация

Факты и особенности

Тип:
Residential
Парковка:
Нет данных
Год постройки:
1979
Лот:
0.15 Акров
Отопление:
Central / Electric
Цена/кв.фут:
$116
Охлаждение:
Central Air
HOA:
$44
Больше фактов и особенностей
  • Напольное покрытие

    • Carpet

    • Laminate

    Отопление

    • Central

    • Electric

    Охлаждение

    • Central Air

    Бытовая техника

    • Built-In Oven

    • Cooktop

    • Dishwasher

    Другие особенности интерьера

    • Open Floorplan

    Спальни и ванные комнаты

    • Спальни: 2

    • Полные ванные комнаты: 2

  • Имущество

    • Этажи: One

    • Особенности Экстерьера: Lighting

    Лот

    • Лот: 0.15 Акров

    Другая Информация о Недвижимости

    • Номер Земельного Участка: R2922218255103900220

    • Зонирование: PDP(MF)

  • Тип и стиль

    • Тип недвижимости: Residential

    • Подтип недвижимости: Manufactured Home

  • Общественное благосостояние

    • Electricity Connected

  • Другая финансовая информация

    • HOA: $44

    • Частота HOA: Monthly

    • Годовая сумма налога: $735

  • Детали источника

    • MLS ID: TB8412568

    Другие факты

    • Строительные материалы: Vinyl Siding

    • Детали фундамента: Pillar/Post/Pier

    • Особенности прачечной: Other

    • Направленные лица: Southwest

    • Жилая площадь: 1288

    • Источник воды: Public

    • Название подразделения: HIGH POINT MH SUB

Похожие дома

9895 SCEPTER AVENUE placeholder 9895 SCEPTER AVENUE
4 Дней
Под контрактом
$188,000
2 спален 2 ванн 1,156 кв.фт.
9895 SCEPTER AVENUE
8407 HIGHPOINT BOULEVARD placeholder 8407 HIGHPOINT BOULEVARD
4 Дней
Под контрактом
Дом
$109,500
2 спален 2 ванн 1,440 кв.фт.
8407 HIGHPOINT BOULEVARD
15372 BROOKRIDGE BOULEVARD placeholder 15372 BROOKRIDGE BOULEVARD
7 Дней
Под контрактом
$150,000
3 спален 2 ванн 1,212 кв.фт.
15372 BROOKRIDGE BOULEVARD
13085 TAYLOR STREET placeholder 13085 TAYLOR STREET
13 Дней
Под контрактом
Участки / Земля
$170,000
0 room(s)
13085 TAYLOR STREET
15645 BROOKRIDGE BOULEVARD placeholder 15645 BROOKRIDGE BOULEVARD
13 Дней
Под контрактом
$129,500
2 спален 2 ванн 1,000 кв.фт.
15645 BROOKRIDGE BOULEVARD
14334 MIDFIELD STREET placeholder 14334 MIDFIELD STREET
-$35K (2025/11/04)
Под контрактом
$129,900
3 спален 2 ванн 1,440 кв.фт.
14334 MIDFIELD STREET
7363 EASTERN CIRCLE placeholder 7363 EASTERN CIRCLE
-$4K (2026/01/02)
Под контрактом
$164,409
2 спален 2 ванн 1,152 кв.фт.
7363 EASTERN CIRCLE
9293 HIGHPOINT BOULEVARD placeholder 9293 HIGHPOINT BOULEVARD
49 Дней
Под контрактом
Дом
$124,900
2 спален 2 ванн 920 кв.фт.
9293 HIGHPOINT BOULEVARD

The multiple listing information is provided by the Stellar MLS from a copyrighted compilation of listings. The compilation of listings and each individual listing are ©2026-present Stellar MLS. All Rights Reserved. The information provided is for consumers' personal, noncommercial use and may not be used for any purpose other than to identify prospective properties consumers may be interested in purchasing. All properties are subject to prior sale or withdrawal. All information provided is deemed reliable but is not guaranteed accurate, and should be independently verified. Listing courtesy of: THE ATLAS GROUP