Недвижимость
Ознакомьтесь с нашими объявлениями
Контакты
Расскажите нам о своих потребностях

1636/1640 NEBRASKA AVENUE

Коммерческий На продажу
$650,000

BTC: 21.66666667

ETH: 325.00000000

56 Дней
0 room(s)
1,152 кв.фт.
Est. Предполагаемый диапазон продаж: $0 - $0
$0

Обзор

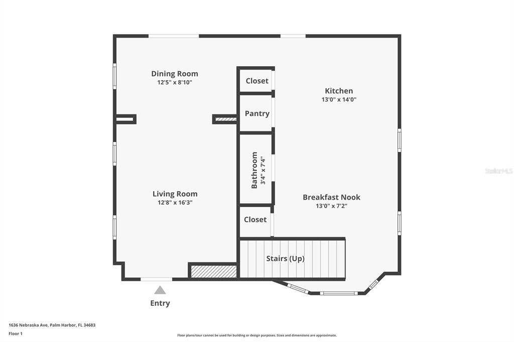
One or more photo(s) has been virtually staged. Endless possibilities await with this versatile mixed-use property ideally situated in the heart of Palm Harbor! The 1,152 sq ft building is currently home to a long-established upholstery business and offers flexible configuration with an office, workshop, and private in-law suite. Zoned for both commercial and residential use, this property provides a unique opportunity for live-work arrangements, small business operations, or conversion to alternative uses. The new roof (2024) adds peace of mind, and the ample yard space allows for outdoor work areas, storage, or boat/RV parking. Located in unincorporated Pinellas County with no HOA, this property offers rare freedom and flexibility for both residential and commercial uses. Ample parking and convenient street frontage on Nebraska Avenue offer excellent visibility and accessibility. Whether you’re an investor, entrepreneur, or craftsman, this property offers location, functionality, and potential all in one. The residence on the property should not be missed! The 2007 built 1,532 square foot home features Living, Dining, Kitchen, Laundry and a half bath on the main level and 3 bedrooms and 2 bathrooms upstairs. The 2019 renovation added new kitchen cabinets, countertops, vanities, flooring, appliances and light fixtures to the property and a new roof was installed in 2024. A short golf-cart ride to thriving Downtown Palm Harbor, where you’ll enjoy local restaurants, shops, and parks — plus convenient access to marinas, world-renowned golf, airports, and the area’s famous beaches. A truly unique investment or live-work opportunity in one of Pinellas County’s most desirable communities.

Локация

Факты и особенности

Тип:
Commercial Sale
Парковка:
1 to 5 Spaces
Год постройки:
1967
Лот:
0.18 Акров
Отопление:
Central
Цена/кв.фут:
$564
Охлаждение:
Central Air
HOA:
Нет данных
Больше фактов и особенностей
  • Напольное покрытие

    • Carpet

    • Ceramic Tile

    • Concrete

    Отопление

    • Central

    Охлаждение

    • Central Air

  • Парковка

    • 1 to 5 Spaces

    Имущество

    • Этажи: Two

    Лот

    • Лот: 0.18 Акров

    Другая Информация о Недвижимости

    • Номер Земельного Участка: 012815885600800101

    • Зонирование: R-3

  • Тип и стиль

    • Тип недвижимости: Commercial Sale

    • Подтип недвижимости: Mixed Use

  • Общественное благосостояние

    • Electricity Available

    • Public

  • Другая финансовая информация

    • Годовая сумма налога: $3,047

  • Детали источника

    • MLS ID: TB8435819

    Другие факты

    • Строительные материалы: Block / Stucco

    • Детали фундамента: Slab

    • Особенности лота: Corner Lot / Landscaped

    • Особенности окна: Blinds

    • Направленные лица: North

    • Другие структуры: Other

    • Жилая площадь: 1152

    • Источник воды: Public

    • Размеры участка: 78 x 100

    • Название подразделения: SUTHERLAND TOWN OF

Похожие дома

1302 SUTTON PLACE DRIVE placeholder 1302 SUTTON PLACE DRIVE
Новое
На продажу
Дом
$724,900
4 спален 2 ванн 2,239 кв.фт.
1302 SUTTON PLACE DRIVE
2309 LANDING WAY placeholder 2309 LANDING WAY
Новое
На продажу
Дом
$785,000
3 спален 2 ванн 2,425 кв.фт.
2309 LANDING WAY
2452 BAYWOOD DRIVE E placeholder 2452 BAYWOOD DRIVE E
1 Дней
На продажу
Дом
$624,000
4 спален 2 ванн 2,040 кв.фт.
2452 BAYWOOD DRIVE E
95 EASTWINDS COURT placeholder 95 EASTWINDS COURT
1 Дней
На продажу
Дом
$649,000
4 спален 3 ванн 2,080 кв.фт.
95 EASTWINDS COURT
3079 LAHLOR LANE placeholder 3079 LAHLOR LANE
2 Дней
На продажу
Дом
$499,900
3 спален 2 ванн 1,738 кв.фт.
3079 LAHLOR LANE
433 S PAULA DRIVE UNIT 32 placeholder 433 S PAULA DRIVE UNIT 32
2 Дней
На продажу
Квартира
$749,000
2 спален 2 ванн 1,755 кв.фт.
433 S PAULA DRIVE UNIT 32
2940 CYPRESS RIDGE placeholder 2940 CYPRESS RIDGE
3 Дней
На продажу
Дом
$799,900
3 спален 2 ванн 2,350 кв.фт.
2940 CYPRESS RIDGE
1412 WEXFORD DRIVE N placeholder 1412 WEXFORD DRIVE N
3 Дней
На продажу
Дом
$489,900
3 спален 2 ванн 1,652 кв.фт.
1412 WEXFORD DRIVE N

The multiple listing information is provided by the Stellar MLS from a copyrighted compilation of listings. The compilation of listings and each individual listing are ©2025-present Stellar MLS. All Rights Reserved. The information provided is for consumers' personal, noncommercial use and may not be used for any purpose other than to identify prospective properties consumers may be interested in purchasing. All properties are subject to prior sale or withdrawal. All information provided is deemed reliable but is not guaranteed accurate, and should be independently verified. Listing courtesy of: RE/MAX REALTEC GROUP INC