Недвижимость
Ознакомьтесь с нашими объявлениями
Контакты
Расскажите нам о своих потребностях

Коммерческий На продажу
$1,299,900

BTC: 18.41348537

ETH: 632.55474453

23 Дней
0 room(s)
2,986 кв.фт.
Est. Предполагаемый диапазон продаж: $0 - $0
$0

Обзор

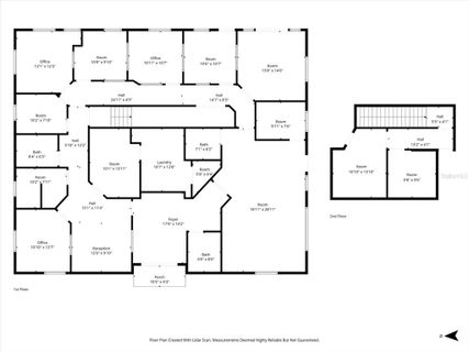
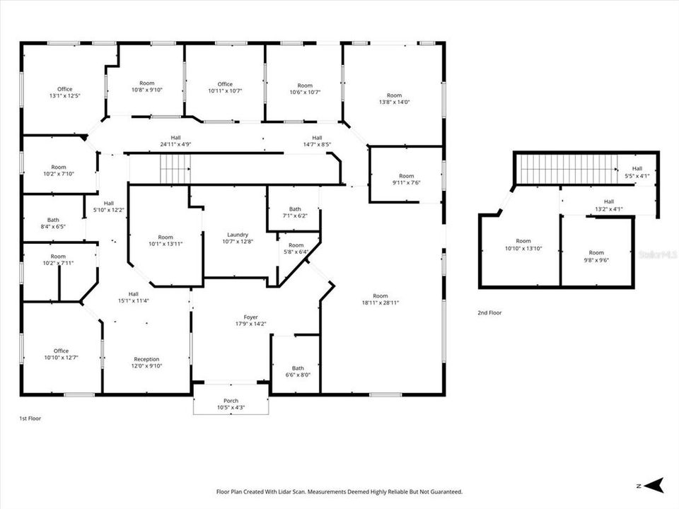
Welcome to an exceptional commercial property located in the heart of Tampa, within the highly sought-after 33614 zip code! Boasting over 2,900 square feet of fully air-conditioned space, this expansive property features more than 10 internal offices, offering a perfect blend of functionality and flexibility. Whether you’re looking to establish a thriving office hub, a professional service center, or a collaborative business environment, this property delivers on all fronts. Its prime location ensures easy access to major roads, local amenities, and a vibrant business community. With spacious layouts, ample parking options, and the opportunity to customize the space to your needs, this is a unique chance to elevate your business presence in Tampa!

Локация

Факты и особенности

Тип:
Commercial Sale
Парковка:
6 to 12 Spaces
Год постройки:
2000
Лот:
0.07 Акров
Отопление:
Нет данных
Цена/кв.фут:
$435
Охлаждение:
Central Air
HOA:
Нет данных
Больше фактов и особенностей
  • Напольное покрытие

    • Carpet

    • Luxury Vinyl

    Охлаждение

    • Central Air

    Бытовая техника

    • Microwave

    • Refrigerator

  • Парковка

    • 6 to 12 Spaces

    Имущество

    • Этажи: Two

    Лот

    • Лот: 0.07 Акров

    Другая Информация о Недвижимости

    • Номер Земельного Участка: U222818ZZZ00000095960.0

    • Зонирование: PD

  • Тип и стиль

    • Тип недвижимости: Commercial Sale

    • Подтип недвижимости: Office

  • Другая финансовая информация

    • Годовая сумма налога: $9,715

  • Детали источника

    • MLS ID: TB8456736

    Другие факты

    • Строительные материалы: Stucco

    • Детали фундамента: Slab

    • Жилая площадь: 2986

    • Источник воды: Public

    • Название подразделения: UNPLATTED

Похожие дома

12915 GOLF CREST TERRACE placeholder 12915 GOLF CREST TERRACE
2 Дней
На продажу
Дом
$1,000,000
4 спален 3 ванн 4,073 кв.фт.
12915 GOLF CREST TERRACE
4302 CARROLLWOOD VILLAGE DRIVE placeholder 4302 CARROLLWOOD VILLAGE DRIVE
4 Дней
На продажу
Дом
$1,150,000
5 спален 3 ванн 4,242 кв.фт.
4302 CARROLLWOOD VILLAGE DRIVE
4404 OLD ORCHARD DRIVE placeholder 4404 OLD ORCHARD DRIVE
34 Дней
На продажу
Дом
$1,175,000
6 спален 5 ванн 4,502 кв.фт.
4404 OLD ORCHARD DRIVE
8001 N HIGHLAND AVENUE placeholder 8001 N HIGHLAND AVENUE
34 Дней
На продажу
Участки / Земля
$950,000
0 room(s)
8001 N HIGHLAND AVENUE
7108 N NEBRASKA AVENUE placeholder 7108 N NEBRASKA AVENUE
-$126K (2025/12/30)
На продажу
Коммерческий
$1,084,000
0 room(s) 4,840 кв.фт.
7108 N NEBRASKA AVENUE
8202 N ARMENIA AVENUE UNIT B placeholder 8202 N ARMENIA AVENUE UNIT B
42 Дней
На продажу
Коммерческий
$1,550,000
0 room(s) 7,342 кв.фт.
8202 N ARMENIA AVENUE UNIT B
13510 WESTSHIRE DRIVE placeholder 13510 WESTSHIRE DRIVE
53 Дней
На продажу
Дом
$1,425,000
4 спален 3 ванн 3,329 кв.фт.
13510 WESTSHIRE DRIVE
7201 HODGEWOOD CT COURT placeholder 7201 HODGEWOOD CT COURT
54 Дней
На продажу
Дом
$1,400,000
5 спален 3 ванн 3,350 кв.фт.
7201 HODGEWOOD CT COURT

The multiple listing information is provided by the Stellar MLS from a copyrighted compilation of listings. The compilation of listings and each individual listing are ©2026-present Stellar MLS. All Rights Reserved. The information provided is for consumers' personal, noncommercial use and may not be used for any purpose other than to identify prospective properties consumers may be interested in purchasing. All properties are subject to prior sale or withdrawal. All information provided is deemed reliable but is not guaranteed accurate, and should be independently verified. Listing courtesy of: FENIX HOME REALTY LLC