Недвижимость
Ознакомьтесь с нашими объявлениями
Контакты
Расскажите нам о своих потребностях

0 sw 133 ct, Miami FL 33032

Участки / Земля На продажу
$585,000

BTC: 6.73575130

ETH: 292.50000000

1 Дней
0 room(s)
Est. Предполагаемый диапазон продаж: $0 - $0
$0

Обзор

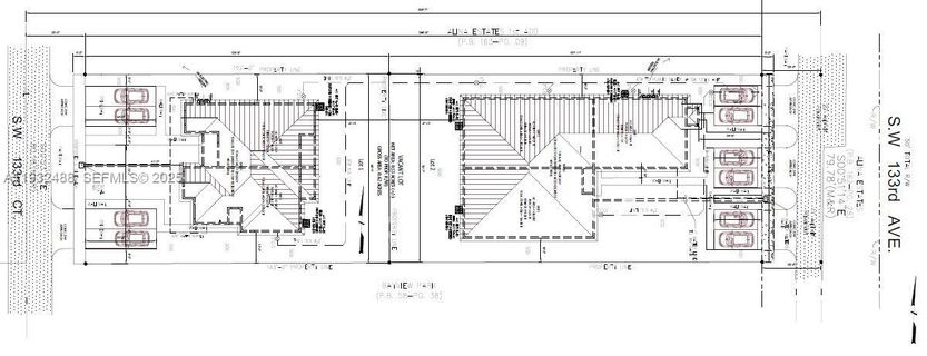
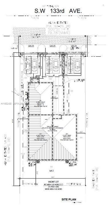
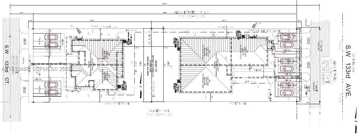
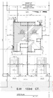
Zoning approval is in place under the workforce housing program for a duplex and triplex (five units total), along with full construction drawings.

Локация

Факты и особенности

Тип:
Land/Boat Docks
Парковка:
Нет данных
Год постройки:
Нет данных
Лот:
0.62 Акров
Отопление:
Нет данных
Цена/кв.фут:
Нет данных
Охлаждение:
Нет данных
HOA:
Нет данных
Больше фактов и особенностей
  • Лот

    • Лот: 0.62 Акров

    Другая Информация о Недвижимости

    • Номер Земельного Участка: 30-69-35-000-0141

    • Зонирование: 0100

  • Тип и стиль

    • Тип недвижимости: Land/Boat Docks

    • Подтип недвижимости: Residential

  • Другая финансовая информация

    • Годовая сумма налога: $3,077

  • Детали источника

    • MLS ID: A11932488

    Другие факты

    • Особенности лота: 1/2 To Less Than 3/4 Acre Lot / Other

    • Направленные лица: East

    • Другие структуры: None

    • Название подразделения: BAYVIEW PARK

Похожие дома

12916 SW 233rd Ter, Homestead FL 33032 placeholder 12916 SW 233rd Ter, Homestead FL 33032
Новое
На продажу
Квартира
$420,000
3 спален 2 ванн 1,612 кв.фт.
12916 SW 233rd Ter, Homestead FL 33032
27641 SW 134th Ct, Homestead FL 33032 placeholder 27641 SW 134th Ct, Homestead FL 33032
Новое
На продажу
Дом
$700,000
4 спален 2 ванн 1,799 кв.фт.
27641 SW 134th Ct, Homestead FL 33032
28615 SW 129th Ct, Homestead FL 33033 placeholder 28615 SW 129th Ct, Homestead FL 33033
3 Дней
На продажу
Дом
$460,000
3 спален 2 ванн 1,722 кв.фт.
28615 SW 129th Ct, Homestead FL 33033
22445 SW 125th Ave # 18A, Miami FL 33170 placeholder 22445 SW 125th Ave # 18A, Miami FL 33170
3 Дней
На продажу
Таунхаус
$664,990
5 спален 4 ванн
22445 SW 125th Ave # 18A, Miami FL 33170
25280 SW 119th Ave, Homestead FL 33032 placeholder 25280 SW 119th Ave, Homestead FL 33032
3 Дней
На продажу
Дом
$599,000
4 спален 2 ванн 1,877 кв.фт.
25280 SW 119th Ave, Homestead FL 33032
26831 SW 119th Ct, Homestead FL 33032 placeholder 26831 SW 119th Ct, Homestead FL 33032
3 Дней
На продажу
Дом
$639,900
3 спален 2 ванн 2,214 кв.фт.
26831 SW 119th Ct, Homestead FL 33032
11709 SW 253rd St, Homestead FL 33032 placeholder 11709 SW 253rd St, Homestead FL 33032
3 Дней
На продажу
Дом
$695,000
4 спален 3 ванн 2,500 кв.фт.
11709 SW 253rd St, Homestead FL 33032
12888 SW 233rd Ter, Princeton., Unincorporated Dade County FL 33032 placeholder 12888 SW 233rd Ter, Princeton., Unincorporated Dade County FL 33032
3 Дней
На продажу
Таунхаус
$457,500
3 спален 2 ванн 1,612 кв.фт.
12888 SW 233rd Ter, Princeton., Unincorporated Dade County FL 33032

The multiple listing information is provided by the Miami Association of REALTORS® from a copyrighted compilation of listings. The compilation of listings and each individual listing are ©2025-present Miami Association of REALTORS®. All Rights Reserved. The information provided is for consumers' personal, noncommercial use and may not be used for any purpose other than to identify prospective properties consumers may be interested in purchasing. All properties are subject to prior sale or withdrawal. All information provided is deemed reliable but is not guaranteed accurate, and should be independently verified. Listing courtesy of: Secure 1 Real Estate Corp