Недвижимость
Ознакомьтесь с нашими объявлениями
Контакты
Расскажите нам о своих потребностях

10160 SW 136TH AVENUE

Дом Под контрактом
$310,000

BTC: 4.42857143

ETH: 150.85158151

20 Дней
3 спален
2 ванн
1,710 кв.фт.
Est. Предполагаемый диапазон продаж: $0 - $0
$0

Обзор

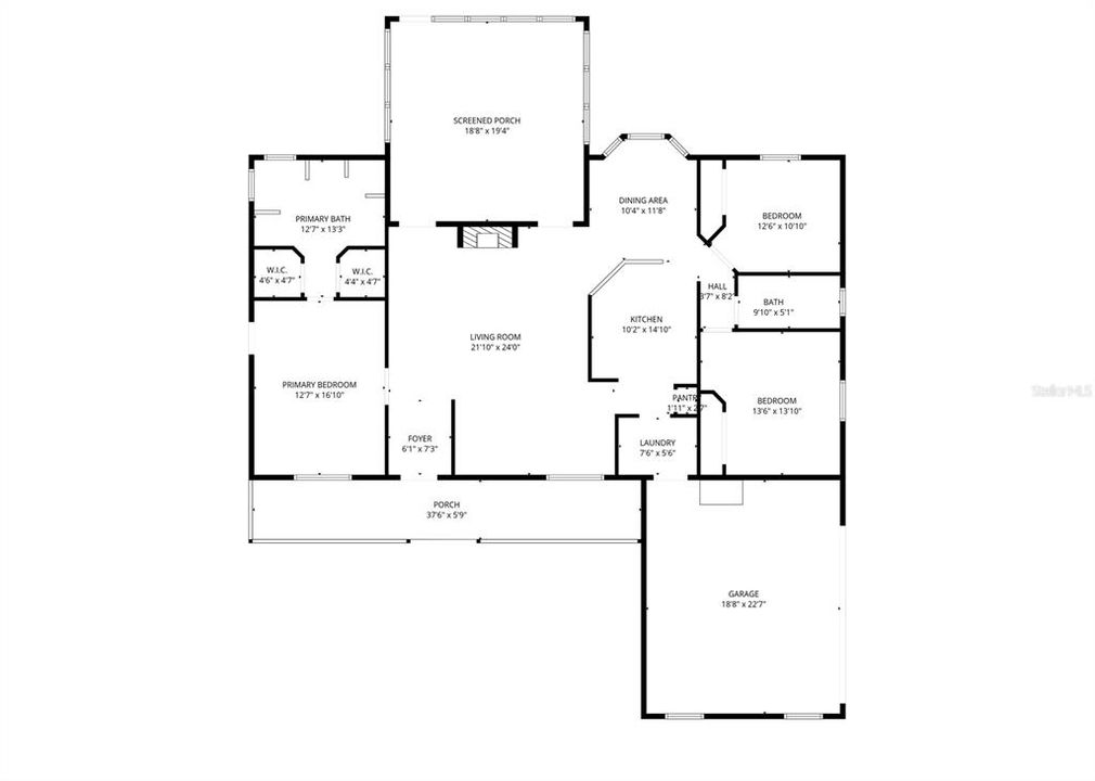
Welcome to your slice of peaceful paradise in Rolling Ranch Estates with no HOA or CDD fees! This beautifully maintained 3-bedroom, 2-bathroom and 2- car garage home sits on almost an acre of land .92 offering privacy, and plenty of room to enjoy the outdoors. Step inside to a split floor plan with luxury vinyl plank flooring throughout the home, a stone fireplace in the living room. The kitchen boasts contemporary cabinets, Corian countertops, a spacious kitchen bar seating area, stainless steel appliances, and ample counter space, perfect for culinary enthusiasts. The master bedroom includes two walk-in closet and a bathtub. On the opposite side, you'll find two guest bedrooms separated by a tiled wall tub bathroom. Outside, you’ll find a storage shed —perfect for hobbies, tools, or extra space. Upgrades: Roof replaced 2020, HVAC system 2018, Hot water heater 2018 and water softener system installed in 2018. Rain gutters all around and leaf filter. Outside you’ll find a storage shed for tools, or extra space, a gazebo and a green house ideal for all of your plants to keep them growing all year round. This home also has an enclosed sunroom for relaxing overlooking the land that is ready for your animals. The property is fully fenced, providing a serene and secure backyard oasis adorned with Spanish Oak trees and magnolia trees. Located short distance to Lake Otting, where you can access a scenic walking trail around the lake shaded by majestic oak trees, as well as a pavilion, basketball and tennis courts, and a playground with a clubhouse, easy access to local amenities and more. This home is a rare find, combining luxury and functionality. Don't miss your chance to own a home in a peaceful and desirable location! Schedule your showing today!

Локация

Факты и особенности

Тип:
Residential
Парковка:
Нет данных
Год постройки:
2005
Лот:
0.92 Акров
Отопление:
Central
Цена/кв.фут:
$181
Охлаждение:
Central Air
HOA:
Нет данных
Больше фактов и особенностей
  • Напольное покрытие

    • Luxury Vinyl

    Отопление

    • Central

    Охлаждение

    • Central Air

    Бытовая техника

    • Dishwasher

    • Range

    • Refrigerator

    • Water Softener

    Другие особенности интерьера

    • High Ceilings

    Спальни и ванные комнаты

    • Спальни: 3

    • Полные ванные комнаты: 2

  • Имущество

    • Этажи: One

    • Особенности Экстерьера: Balcony / Rain Gutters / RV Hookup / Storage

    Лот

    • Лот: 0.92 Акров

    Другая Информация о Недвижимости

    • Номер Земельного Участка: 3529098004

    • Зонирование: R1

  • Тип и стиль

    • Тип недвижимости: Residential

    • Подтип недвижимости: Single Family Residence

  • Общественное благосостояние

    • Electricity Available

    • Water Connected

  • Другая финансовая информация

    • Годовая сумма налога: $2,225

  • Детали источника

    • MLS ID: OM714220

    Другие факты

    • Строительные материалы: Block / Concrete

    • Детали фундамента: Block / Slab

    • Особенности камина: Living Room

    • Особенности прачечной: Laundry Room

    • Направленные лица: Southwest

    • Камин: Да

    • Мест в гараже: 2

    • Прикрепленный гараж: Да

    • Гараж: Да

    • Жилая площадь: 1710

    • Источник воды: Well

    • Название подразделения: ROLLING RANCH ESTATE

Похожие дома

12369 SW 81ST STREET placeholder 12369 SW 81ST STREET
21 Дней
Под контрактом
Дом
$374,000
3 спален 2 ванн 1,927 кв.фт.
12369 SW 81ST STREET
12694 SW 73RD STREET placeholder 12694 SW 73RD STREET
-$20K (2025/12/10)
Под контрактом
Дом
$299,900
3 спален 2 ванн 1,398 кв.фт.
12694 SW 73RD STREET
13493 SW 112TH PLACE placeholder 13493 SW 112TH PLACE
-$5K (2025/11/11)
Под контрактом
Дом
$244,900
3 спален 2 ванн 1,380 кв.фт.
13493 SW 112TH PLACE
13462 SW 106 STREET placeholder 13462 SW 106 STREET
-$37K (2025/12/11)
Под контрактом
Дом
$247,900
3 спален 2 ванн 1,576 кв.фт.
13462 SW 106 STREET
13781 SW 114TH PLACE placeholder 13781 SW 114TH PLACE
-$16K (2025/12/22)
Под контрактом
Дом
$223,900
3 спален 2 ванн 1,267 кв.фт.
13781 SW 114TH PLACE
13160 SW 89TH STREET placeholder 13160 SW 89TH STREET
-$45K (2025/12/30)
Под контрактом
Дом
$330,000
3 спален 2 ванн 1,773 кв.фт.
13160 SW 89TH STREET
12953 SW 85TH PLACE placeholder 12953 SW 85TH PLACE
-$26K (2025/12/09)
Под контрактом
Дом
$374,000
4 спален 2 ванн 1,927 кв.фт.
12953 SW 85TH PLACE
13921 SW 108TH LANE placeholder 13921 SW 108TH LANE
199 Дней
Под контрактом
Дом
$234,900
3 спален 2 ванн 1,393 кв.фт.
13921 SW 108TH LANE

The multiple listing information is provided by the Stellar MLS from a copyrighted compilation of listings. The compilation of listings and each individual listing are ©2026-present Stellar MLS. All Rights Reserved. The information provided is for consumers' personal, noncommercial use and may not be used for any purpose other than to identify prospective properties consumers may be interested in purchasing. All properties are subject to prior sale or withdrawal. All information provided is deemed reliable but is not guaranteed accurate, and should be independently verified. Listing courtesy of: GLOBALWIDE REALTY LLC