Недвижимость
Ознакомьтесь с нашими объявлениями
Контакты
Расскажите нам о своих потребностях

110 GLEN RIDGE AVENUE

Дом На продажу
$334,000

BTC: 4.95791929

ETH: 173.95833333

-$5K (2026/01/05)
23 Дней
3 спален
1 ванн
1,298 кв.фт.
Est. Предполагаемый диапазон продаж: $0 - $0
$0

Обзор

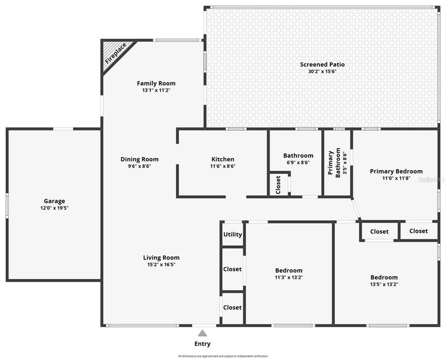
Welcome to 110 Glen Ridge Ave, a charming and well-maintained 3-bedroom, 1.5-bath home tucked away on a quiet street in the heart of Temple Terrace. This inviting residence offers a functional layout, comfortable living spaces, and classic character throughout. The main living area features hardwood floors, abundant natural light, and a cozy fireplace that serves as a warm focal point for relaxing evenings or entertaining guests. The adjacent dining area flows seamlessly into the kitchen, creating an easy and inviting space for everyday living and gatherings. The kitchen offers ample cabinetry and counter space with views overlooking the backyard. All three bedrooms are generously sized, and the full bathroom and convenient half bath provide functionality for both family and guests. Step outside to enjoy the fully fenced backyard, ideal for pets, play, gardening, or outdoor entertaining. The spacious screened lanai extends your living area and is perfect for enjoying Florida’s indoor-outdoor lifestyle year-round. A one-car garage adds both storage and everyday practicality. Located just minutes from the Temple Terrace Golf & Country Club, Riverhills Park, Bonnie Brea Park, and the Hillsborough River, this home is also conveniently close to USF, shopping, dining, and major roadways. As an added bonus, the Temple Terrace Golf & Country Club offers a complimentary three-month social membership for new residents, providing access to dining, social events, and club amenities. This property offers an excellent opportunity to enjoy the charm, convenience, and active lifestyle that make Temple Terrace such a desirable place to call home and there are no HOA fees.

Локация

Факты и особенности

Тип:
Residential
Парковка:
Garage Door Opener
Год постройки:
1957
Лот:
0.23 Акров
Отопление:
Central
Цена/кв.фут:
$257
Охлаждение:
Central Air
HOA:
Нет данных
Больше фактов и особенностей
  • Напольное покрытие

    • Ceramic Tile

    • Hardwood

    Отопление

    • Central

    Охлаждение

    • Central Air

    Бытовая техника

    • Cooktop

    • Dishwasher

    • Dryer

    • Electric Water Heater

    • Microwave

    • Range Hood

    • Refrigerator

    • Washer

    Другие особенности интерьера

    • Ceiling Fan(s)

    • Living Room/Dining Room Combo

    Спальни и ванные комнаты

    • Спальни: 3

    • Ванные: 1

    • Полные ванные комнаты: 1

  • Парковка

    • Garage Door Opener

    Имущество

    • Этажи: One

    • Особенности Экстерьера: Private Yard / Rain Gutters

    Лот

    • Лот: 0.23 Акров

    Другая Информация о Недвижимости

    • Номер Земельного Участка: T15281955G00000100008.0

    • Зонирование: R-10

  • Тип и стиль

    • Тип недвижимости: Residential

    • Подтип недвижимости: Single Family Residence

  • Общественное благосостояние

    • BB/HS Internet Available

    • Cable Available

    • Electricity Connected

    • Fiber Optics

    • Sewer Connected

    • Street Lights

    • Water Connected

  • Другая финансовая информация

    • Годовая сумма налога: $1,930

  • Детали источника

    • MLS ID: TB8456481

    Другие факты

    • Строительные материалы: Block

    • Детали фундамента: Slab

    • Особенности камина: Family Room / Wood Burning

    • Особенности прачечной: In Garage

    • Особенности лота: City Lot

    • Особенности двора и крыльца: Covered / Rear Porch / Screened

    • Особенности окна: Blinds

    • Направленные лица: South

    • Архитектурный стиль: Mid-Century Modern

    • Камин: Да

    • Мест в гараже: 1

    • Прикрепленный гараж: Да

    • Гараж: Да

    • Жилая площадь: 1298

    • Источник воды: Public

    • Размеры участка: 100 x 101

    • Название подразделения: TEMPLE TERRACE GARDENS 3

Похожие дома

6121 WHITEWAY DRIVE placeholder 6121 WHITEWAY DRIVE
1 Дней
На продажу
Дом
$375,000
3 спален 2 ванн 2,176 кв.фт.
6121 WHITEWAY DRIVE
8225 RIVERBOAT DRIVE placeholder 8225 RIVERBOAT DRIVE
1 Дней
На продажу
Дом
$370,000
3 спален 2 ванн 1,256 кв.фт.
8225 RIVERBOAT DRIVE
5015 E 111TH AVENUE placeholder 5015 E 111TH AVENUE
1 Дней
На продажу
Дом
$339,000
3 спален 2 ванн 1,356 кв.фт.
5015 E 111TH AVENUE
10508 N MYRTLE STREET placeholder 10508 N MYRTLE STREET
2 Дней
На продажу
Дом
$388,000
3 спален 2 ванн 1,420 кв.фт.
10508 N MYRTLE STREET
8727 N 26TH STREET placeholder 8727 N 26TH STREET
11 Дней
На продажу
Дом
$325,000
2 спален 2 ванн 1,134 кв.фт.
8727 N 26TH STREET
10418 N OKLAWAHA AVENUE placeholder 10418 N OKLAWAHA AVENUE
11 Дней
На продажу
Дом
$430,000
3 спален 2 ванн 1,500 кв.фт.
10418 N OKLAWAHA AVENUE
8725 N 26TH STREET placeholder 8725 N 26TH STREET
11 Дней
На продажу
Дом
$295,000
3 спален 1 ванн 1,474 кв.фт.
8725 N 26TH STREET
8713 N MANDARINE PLACE placeholder 8713 N MANDARINE PLACE
12 Дней
На продажу
Многосемейный
$339,999
4 спален 1,576 кв.фт.
8713 N MANDARINE PLACE

The multiple listing information is provided by the Stellar MLS from a copyrighted compilation of listings. The compilation of listings and each individual listing are ©2026-present Stellar MLS. All Rights Reserved. The information provided is for consumers' personal, noncommercial use and may not be used for any purpose other than to identify prospective properties consumers may be interested in purchasing. All properties are subject to prior sale or withdrawal. All information provided is deemed reliable but is not guaranteed accurate, and should be independently verified. Listing courtesy of: CENTURY 21 ELITE LOCATIONS, INC