Недвижимость
Ознакомьтесь с нашими объявлениями
Контакты
Расскажите нам о своих потребностях

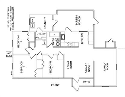
1115 29TH STREET NW

Дом На продажу
$219,950

BTC: 2.46459146

ETH: 109.97500000

-$10K (2025/11/25)
67 Дней
3 спален
1 ванн
1,129 кв.фт.
Est. Предполагаемый диапазон продаж: $0 - $0
$0

Обзор

SELLER PAID 2-1 TEMPORARY INTEREST RATE BUYDOWN AVAILABLE - See attachment for monthly payment details with preferred lender. Welcome to this newly renovated 3-bedroom, 1-bath home conveniently located near Lake Cannon and just minutes from all the dining, shopping, and entertainment that Winter Haven and Auburndale have to offer! Step through the front door to find fresh interior paint, new carpet in all bedrooms, and inviting living spaces. The kitchen has been refreshed with brand-new appliances, provides plenty of cabinetry storage and counter space, and has a convenient layout for everyday cooking and entertaining. The bathroom is your own personal retreat featuring a new vanity and a walk-in shower with a dual shower head system. Major updates include a new roof and a newer A/C unit, giving you peace of mind and comfort year-round. Outside, the property is truly unique. Enjoy mornings on your screened-in front porch, or host gatherings on the spacious screened-in back porch complete with an attached utility room. The fenced backyard offers plenty of space for pets or play, and comes complete with a firepit, detached shed, and extra covered storage. There is also an extra wide driveway providing plenty of off-street parking. This home is the perfect blend of comfort, outdoor space, and accessibility to the amenities near you. Don’t miss your chance to see this one!

Локация

Факты и особенности

Тип:
Residential
Парковка:
Нет данных
Год постройки:
1955
Лот:
0.22 Акров
Отопление:
Central
Цена/кв.фут:
$195
Охлаждение:
Central Air
HOA:
Нет данных
Больше фактов и особенностей
  • Напольное покрытие

    • Carpet

    • Laminate

    • Tile

    Отопление

    • Central

    Охлаждение

    • Central Air

    Бытовая техника

    • Electric Water Heater

    • Microwave

    • Range

    • Refrigerator

    Другие особенности интерьера

    • Ceiling Fan(s)

    Спальни и ванные комнаты

    • Спальни: 3

    • Полные ванные комнаты: 1

  • Имущество

    • Этажи: One

    • Особенности Экстерьера: Other / Storage

    Лот

    • Лот: 0.22 Акров

    Другая Информация о Недвижимости

    • Номер Земельного Участка: 252824350800000300

    • Зонирование: R-1

  • Тип и стиль

    • Тип недвижимости: Residential

    • Подтип недвижимости: Single Family Residence

  • Общественное благосостояние

    • Electricity Connected

    • Public

    • Water Connected

  • Другая финансовая информация

    • Годовая сумма налога: $785

  • Детали источника

    • MLS ID: L4956589

    Другие факты

    • Строительные материалы: Block

    • Детали фундамента: Slab

    • Особенности прачечной: Other

    • Особенности двора и крыльца: Covered / Front Porch / Porch / Rear Porch / Screened

    • Направленные лица: East

    • Другие структуры: Other / Shed(s) / Storage

    • Жилая площадь: 1129

    • Источник воды: Public

    • Размеры участка: 72 x 135

    • Название подразделения: ROSEWOOD MANOR

Похожие дома

301 26TH STREET SW placeholder 301 26TH STREET SW
Новое
На продажу
Дом
$169,900
3 спален 1 ванн 950 кв.фт.
301 26TH STREET SW
609 LIME STREET placeholder 609 LIME STREET
3 Дней
На продажу
Дом
$265,000
4 спален 2 ванн 1,384 кв.фт.
609 LIME STREET
2500 21ST STREET NW UNIT 58 placeholder 2500 21ST STREET NW UNIT 58
4 Дней
На продажу
Квартира
$179,000
3 спален 2 ванн 1,334 кв.фт.
2500 21ST STREET NW UNIT 58
311 CONGRESS AVENUE placeholder 311 CONGRESS AVENUE
5 Дней
На продажу
Дом
$265,000
3 спален 2 ванн 1,095 кв.фт.
311 CONGRESS AVENUE
2334 AVENUE E NW placeholder 2334 AVENUE E NW
6 Дней
На продажу
Дом
$189,900
3 спален 1 ванн 1,118 кв.фт.
2334 AVENUE E NW
87 HIGH STREET placeholder 87 HIGH STREET
7 Дней
На продажу
Дом
$200,000
3 спален 1 ванн 1,279 кв.фт.
87 HIGH STREET
1607 2ND STREET SE placeholder 1607 2ND STREET SE
10 Дней
На продажу
Дом
$185,000
2 спален 1 ванн 576 кв.фт.
1607 2ND STREET SE
3022 HICKORY STREET NW placeholder 3022 HICKORY STREET NW
11 Дней
На продажу
Дом
$280,000
3 спален 1 ванн 1,602 кв.фт.
3022 HICKORY STREET NW

The multiple listing information is provided by the Stellar MLS from a copyrighted compilation of listings. The compilation of listings and each individual listing are ©2025-present Stellar MLS. All Rights Reserved. The information provided is for consumers' personal, noncommercial use and may not be used for any purpose other than to identify prospective properties consumers may be interested in purchasing. All properties are subject to prior sale or withdrawal. All information provided is deemed reliable but is not guaranteed accurate, and should be independently verified. Listing courtesy of: PORCHLIGHT HOMES LLC