Недвижимость
Ознакомьтесь с нашими объявлениями
Контакты
Расскажите нам о своих потребностях

11738 CAMDEN PARK DRIVE

Дом Под контрактом
$1,125,000

BTC: 16.62971175

ETH: 558.43736815

15 Дней
4 спален
3 ванн
2,635 кв.фт.
Est. Предполагаемый диапазон продаж: $0 - $0
$0

Обзор

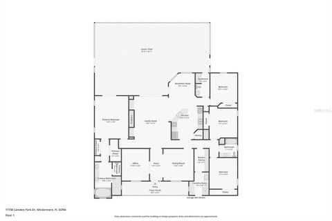
Welcome to your dream home in the prestigious, guard-gated community of Keenes Pointe. This stunning 4-bedroom, 3-bathroom pool home offers an unparalleled combination of luxury, functionality, and charm, perfect for modern living. Upon arrival, you are greeted by a fabulous front porch that invites you into the foyer with French doors that open to a private study/den, featuring a tray ceiling, crown molding, and beautiful wood floors. On the opposite side, the formal dining room provides an elegant setting, also with tray ceiling, crown molding, and wood floors. The spacious great room is a true centerpiece of the home, accentuated by a coffered ceiling, recessed lighting, and a stunning built-in wall surrounding a cozy wood-burning fireplace-ideal for family gatherings and relaxation. The gourmet kitchen is a chef’s dream, with gorgeous wood cabinetry, luxurious granite countertops, double wall ovens (including a convection oven), a natural gas cooktop, and a microwave above. You’ll also appreciate the ample storage in the walk-in pantry, making meal prep a breeze. The expansive primary suite is a true retreat, featuring dual closets and a spa-like bathroom with oversized walk-in shower, soaking tub, double vanity, and private water closet...everything you need for relaxation and comfort. With a thoughtful split-bedroom layout, the home offers privacy and space for everyone. One bedroom, located at the rear of the home, is next to the pool bath, while the other two bedrooms are tucked near the garage with an additional bathroom. The home also boasts a fabulous butler’s pantry with cabinetry and a desk area, complete with a chalkboard wall—perfect for organizing and getting creative. Adjacent to this, you’ll find a well-appointed laundry room with a laundry tub, cabinetry, and a folding area for added convenience. Step outside to your private screened lanai, where you'll find a sparkling pool and spa surrounded by brick pavers, creating the perfect oasis for outdoor entertaining. The backyard also offers additional space for play and relaxation. This home has been thoughtfully updated with a new roof (2022), new windows and sliding glass doors (2020), new front door (2025), and a new water heater (2023), ensuring years of comfort and peace of mind. Enjoy enhanced security with an owned security system featuring 4 Google cameras, Ring doorbell and 2 glass break alarms all conveniently controlled through Google Home. The system can be monitored for an additional fee, if desired. This home also features smart home capabilities, with Lutron smart switches controlling the Primary Bedroom, Dining Room, Driveway Lights, Front Porch Lights, and Patio Lights for added convenience and energy savings. With these updates and smart features, this home is designed for modern living. A Prime Location within Keenes Pointe, this home is ideally situated across from a scenic park area with a playground and gazebo, offering the perfect setting for outdoor activities. Plus, with another park/playground area in the neighborhood with access to a community boat ramp for Lake Burden, you’ll enjoy an active lifestyle. Keenes Pointe is a golf community home of The Golden Bear Club where you may become a private member at additional fee to use the golf facilities and/or social activities at the cliubhouse with pool, tennis, workout facility and dining. Don’t miss the opportunity to own this spectacular home in one of the most coveted neighborhoods in the area.

Локация

Факты и особенности

Тип:
Residential
Парковка:
Driveway / Garage Door Opener / Garage Faces Side / Oversized
Год постройки:
2005
Лот:
0.30 Акров
Отопление:
Central / Electric / Heat Pump
Цена/кв.фут:
$427
Охлаждение:
Central Air
HOA:
$3,396
Больше фактов и особенностей
  • Напольное покрытие

    • Carpet

    • Tile

    • Hardwood

    Отопление

    • Central

    • Electric

    • Heat Pump

    Охлаждение

    • Central Air

    Бытовая техника

    • Built-In Oven

    • Convection Oven

    • Cooktop

    • Dishwasher

    • Disposal

    • Dryer

    • Gas Water Heater

    • Microwave

    • Refrigerator

    • Washer

    • Water Softener

    Другие особенности интерьера

    • Ceiling Fan(s)

    • Chair Rail

    • Coffered Ceiling(s)

    • Crown Molding

    • High Ceilings

    • Kitchen/Family Room Combo

    • Primary Bedroom Main Floor

    • Split Bedroom

    • Stone Counters

    • Thermostat

    • Tray Ceiling(s)

    • Walk-In Closet(s)

    Спальни и ванные комнаты

    • Спальни: 4

    • Полные ванные комнаты: 3

  • Парковка

    • Driveway

    • Garage Door Opener

    • Garage Faces Side

    • Oversized

    Имущество

    • Этажи: One

    • Частный Бассейн: Да

    • Особенности Экстерьера: Irrigation System / Sidewalk / Sliding Doors

    Лот

    • Лот: 0.30 Акров

    Другая Информация о Недвижимости

    • Номер Земельного Участка: 302328408008190

    • Зонирование: P-D

  • Тип и стиль

    • Тип недвижимости: Residential

    • Подтип недвижимости: Single Family Residence

  • Общественное благосостояние

    • BB/HS Internet Available

    • Cable Available

    • Electricity Connected

    • Fire Hydrant

    • Natural Gas Connected

    • Sprinkler Well

    • Street Lights

    • Underground Utilities

  • Другая финансовая информация

    • HOA: $3,396

    • Частота HOA: Annually

    • Годовая сумма налога: $7,341

  • Детали источника

    • MLS ID: O6363590

    Другие факты

    • Строительные материалы: Block / Stucco

    • Детали фундамента: Slab

    • Особенности камина: Family Room / Wood Burning

    • Особенности прачечной: Electric Dryer Hookup / Inside / Laundry Room / Washer Hookup

    • Особенности лота: In County / Level / Near Golf Course / Sidewalk

    • Особенности двора и крыльца: Covered / Front Porch / Porch / Rear Porch / Screened

    • Особенности бассейна: Gunite / Heated / In Ground / Pool Sweep / Salt Water / Screen Enclosure / Tile

    • Особенности окна: Blinds / Double Pane Windows / Insulated Windows

    • Направленные лица: East

    • Архитектурный стиль: Traditional

    • Камин: Да

    • Название водоема: LAKE BURDEN

    • Мест в гараже: 3

    • Прикрепленный гараж: Да

    • Гараж: Да

    • Жилая площадь: 2635

    • Источник воды: Public

    • Размеры участка: 90 x 148.9 x 90 x 146.44

    • Название подразделения: KEENES POINTE

Похожие дома

11474 CLAYMONT CIRCLE placeholder 11474 CLAYMONT CIRCLE
5 Дней
Под контрактом
Дом
$1,350,000
5 спален 4 ванн 3,238 кв.фт.
11474 CLAYMONT CIRCLE
13212 SWANSEA AVENUE placeholder 13212 SWANSEA AVENUE
9 Дней
Под контрактом
Дом
$820,000
4 спален 4 ванн 3,365 кв.фт.
13212 SWANSEA AVENUE
416 MAGNOLIA STREET placeholder 416 MAGNOLIA STREET
15 Дней
Под контрактом
Дом
$885,000
2 спален 1 ванн 2,115 кв.фт.
416 MAGNOLIA STREET
9215 CYPRESS COVE DRIVE placeholder 9215 CYPRESS COVE DRIVE
28 Дней
Под контрактом
Дом
$1,250,000
5 спален 4 ванн 3,919 кв.фт.
9215 CYPRESS COVE DRIVE
5709 MASTERS BOULEVARD placeholder 5709 MASTERS BOULEVARD
-$125K (2025/12/11)
Под контрактом
Дом
$1,275,000
4 спален 3 ванн 2,528 кв.фт.
5709 MASTERS BOULEVARD
299 W 4TH AVENUE placeholder 299 W 4TH AVENUE
35 Дней
Под контрактом
Дом
$895,000
4 спален 3 ванн 2,410 кв.фт.
299 W 4TH AVENUE
13224 SWANSEA AVENUE placeholder 13224 SWANSEA AVENUE
38 Дней
Под контрактом
Дом
$949,000
5 спален 3 ванн 3,662 кв.фт.
13224 SWANSEA AVENUE
8764 LOOKOUT POINTE DRIVE placeholder 8764 LOOKOUT POINTE DRIVE
40 Дней
Под контрактом
Дом
$1,085,000
4 спален 3 ванн 3,423 кв.фт.
8764 LOOKOUT POINTE DRIVE

The multiple listing information is provided by the Stellar MLS from a copyrighted compilation of listings. The compilation of listings and each individual listing are ©2026-present Stellar MLS. All Rights Reserved. The information provided is for consumers' personal, noncommercial use and may not be used for any purpose other than to identify prospective properties consumers may be interested in purchasing. All properties are subject to prior sale or withdrawal. All information provided is deemed reliable but is not guaranteed accurate, and should be independently verified. Listing courtesy of: EXP REALTY LLC