Недвижимость
Ознакомьтесь с нашими объявлениями
Контакты
Расскажите нам о своих потребностях

118 9TH STREET W

Дом Под контрактом
$344,000

BTC: 11.46666667

ETH: 172.00000000

67 Дней
3 спален
2 ванн
1,419 кв.фт.
Est. Предполагаемый диапазон продаж: $0 - $0
$0

Обзор

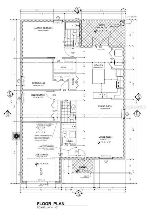
Under Construction. Welcome to your future home at 118 9th St W in Lakeland, FL. Currently under construction and scheduled for completion the first week of December 2025, this thoughtfully designed residence offers 1,419 sq. ft. of living space (1,878 total sq. ft.) with comfort, convenience, and style built in. Step inside and enjoy the open living and dining room combo, perfect for everyday living and entertaining. The kitchen comes fully equipped with all-new stainless steel appliances, a peninsula extension, island, pantry, and a convenient washer/dryer closet. Laminate flooring flows through the main living spaces and bathrooms, while cozy carpet keeps the bedrooms comfortable. The primary suite features a spacious walk-in closet and private bathroom with a walk-in shower. Two additional bedrooms and a full bath provide plenty of room for family or guests. French doors open to an inviting lanai, giving you the perfect spot to relax or enjoy outdoor dining. Additional highlights include a single-car garage and welcoming front porch. Location couldn’t be better — less than 2 miles from scenic Lake Parker, under 5 miles from I-4 for easy commuting, and just 6 miles from Lakeland Mall and other shopping conveniences. Whether you’re a first-time buyer, downsizing, or looking for a low-maintenance home with modern finishes, this property checks all the boxes. Don’t miss the opportunity to own a brand-new home in a desirable Lakeland location!

Локация

Факты и особенности

Тип:
Residential
Парковка:
Нет данных
Год постройки:
2025
Лот:
0.13 Акров
Отопление:
Electric
Цена/кв.фут:
$242
Охлаждение:
Central Air
HOA:
Нет данных
Больше фактов и особенностей
  • Напольное покрытие

    • Carpet

    • Laminate

    Отопление

    • Electric

    Охлаждение

    • Central Air

    Бытовая техника

    • Dishwasher

    • Microwave

    • Range

    • Refrigerator

    Другие особенности интерьера

    • Living Room/Dining Room Combo

    Спальни и ванные комнаты

    • Спальни: 3

    • Полные ванные комнаты: 2

  • Имущество

    • Этажи: One

    • Особенности Экстерьера: French Doors / Private Mailbox

    Лот

    • Лот: 0.13 Акров

    Другая Информация о Недвижимости

    • Номер Земельного Участка: 232812055500006041

  • Тип и стиль

    • Тип недвижимости: Residential

    • Подтип недвижимости: Single Family Residence

  • Общественное благосостояние

    • Cable Connected

    • Electricity Connected

    • Sewer Connected

    • Water Connected

  • Другая финансовая информация

    • Годовая сумма налога: $301

  • Детали источника

    • MLS ID: TB8425048

    Другие факты

    • Строительные материалы: Block

    • Детали фундамента: Slab

    • Особенности прачечной: Laundry Closet

    • Направленные лица: North

    • Мест в гараже: 1

    • Прикрепленный гараж: Да

    • Гараж: Да

    • Жилая площадь: 1419

    • Источник воды: Public

    • Размеры участка: 53 x 108

    • Название подразделения: WASHINGTON PARK

Похожие дома

562 LAKE BONNY DRIVE E placeholder 562 LAKE BONNY DRIVE E
+$5K (2025/10/06)
Под контрактом
Дом
$290,000
4 спален 2 ванн 1,488 кв.фт.
562 LAKE BONNY DRIVE E
1641 MEADOWBROOK AVENUE placeholder 1641 MEADOWBROOK AVENUE
5 Дней
Под контрактом
Дом
$320,000
4 спален 2 ванн 2,040 кв.фт.
1641 MEADOWBROOK AVENUE
1824 KENDRICK LANE placeholder 1824 KENDRICK LANE
7 Дней
Под контрактом
Дом
$249,000
3 спален 2 ванн 1,208 кв.фт.
1824 KENDRICK LANE
1925 DANES COURT placeholder 1925 DANES COURT
9 Дней
Под контрактом
Дом
$389,000
4 спален 2 ванн 2,021 кв.фт.
1925 DANES COURT
3630 PRESCOTT LOOP placeholder 3630 PRESCOTT LOOP
-$20K (2025/11/18)
Под контрактом
Дом
$300,000
3 спален 2 ванн 1,920 кв.фт.
3630 PRESCOTT LOOP
1738 E FERN ROAD placeholder 1738 E FERN ROAD
14 Дней
Под контрактом
Многосемейный
$314,900
4 спален 1,664 кв.фт.
1738 E FERN ROAD
3504 N FLORIDA AVENUE placeholder 3504 N FLORIDA AVENUE
-$14K (2025/10/24)
Под контрактом
Дом
$325,000
3 спален 3 ванн 1,172 кв.фт.
3504 N FLORIDA AVENUE
3651 MADBURY CIRCLE placeholder 3651 MADBURY CIRCLE
18 Дней
Под контрактом
Дом
$255,000
3 спален 2 ванн 1,533 кв.фт.
3651 MADBURY CIRCLE

The multiple listing information is provided by the Stellar MLS from a copyrighted compilation of listings. The compilation of listings and each individual listing are ©2025-present Stellar MLS. All Rights Reserved. The information provided is for consumers' personal, noncommercial use and may not be used for any purpose other than to identify prospective properties consumers may be interested in purchasing. All properties are subject to prior sale or withdrawal. All information provided is deemed reliable but is not guaranteed accurate, and should be independently verified. Listing courtesy of: GOLD REAL ESTATE SOLUTIONS