Недвижимость
Ознакомьтесь с нашими объявлениями
Контакты
Расскажите нам о своих потребностях

12723 DOCKYARD TRAIL

Дом Под контрактом
$529,999

BTC: 5.45903967

ETH: 170.96741935

-$87K (2025/11/12)
79 Дней
4 спален
3 ванн
2,600 кв.фт.
Est. Предполагаемый диапазон продаж: $0 - $0
$0

Обзор

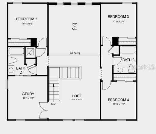
Under Construction. What's Special: No Rear Neighbors | 1st Floor Primary Bedroom | Loft. New Construction – January 2026 Completion! Built by Taylor Morrison, America’s Most Trusted Homebuilder. Welcome to The Bahama at 12723 Dockyard Trail in Palms at Coasterra. The Bahama floor plan blends traditional charm with everyday livability. This two-story home features 4 bedrooms, 3.5 bathrooms, and a smart layout designed for comfort and convenience. On the main floor, the open-concept living area brings together the kitchen, casual dining space, and a gathering room with a soaring two-story ceiling. The designer kitchen includes a large island and pantry, with direct access to the formal dining room and foyer. The downstairs primary suite offers privacy and style, with a spacious bedroom, a generous walk-in closet, and a spa-inspired bathroom featuring dual sinks, a private commode, and an oversized shower. A sunny lanai stretches across the back of the home, perfect for relaxing or entertaining. Upstairs, a loft overlooks the gathering room below and leads to a quiet study. Three secondary bedrooms are also located on the second floor—one with a private bath, and the other two sharing a bathroom. Just off Buckeye Road within master-planned Coasterra community, this prime location in Palmetto provides easy access to I-75, Sarasota and Tampa. Additional Highlights Include: outdoor kitchen rough in, gourmet kitchen, and shower at bath 2. Photos are for Representative Purposes Only. MLS#TB8425491

Локация

Факты и особенности

Тип:
Residential
Парковка:
Garage Door Opener / Ground Level
Год постройки:
2025
Лот:
0.17 Акров
Отопление:
Central
Цена/кв.фут:
$204
Охлаждение:
Central Air
HOA:
$79
Больше фактов и особенностей
  • Напольное покрытие

    • Carpet

    • Other

    Отопление

    • Central

    Охлаждение

    • Central Air

    Бытовая техника

    • Built-In Oven

    • Cooktop

    • Dishwasher

    • Disposal

    • Exhaust Fan

    • Gas Water Heater

    • Microwave

    • Tankless Water Heater

    Другие особенности интерьера

    • High Ceilings

    • Primary Bedroom Main Floor

    • Split Bedroom

    • Walk-In Closet(s)

    • Window Treatments

    Спальни и ванные комнаты

    • Спальни: 4

    • Ванные: 1

    • Полные ванные комнаты: 3

  • Парковка

    • Garage Door Opener

    • Ground Level

    Имущество

    • Этажи: Two

    • Особенности Экстерьера: Hurricane Shutters / Irrigation System / Sliding Doors

    Лот

    • Лот: 0.17 Акров

    Другая Информация о Недвижимости

    • Номер Земельного Участка: NALOT1099

    • Зонирование: RES

  • Тип и стиль

    • Тип недвижимости: Residential

    • Подтип недвижимости: Single Family Residence

  • Общественное благосостояние

    • BB/HS Internet Available

    • Cable Connected

    • Electricity Connected

    • Fire Hydrant

    • Natural Gas Connected

    • Sewer Connected

    • Sprinkler Recycled

    • Street Lights

    • Underground Utilities

    • Water Connected

  • Другая финансовая информация

    • HOA: $79

    • Частота HOA: Monthly

  • Детали источника

    • MLS ID: TB8425491

    Другие факты

    • Строительные материалы: Block / Stucco / Vinyl Siding

    • Детали фундамента: Slab

    • Особенности прачечной: In Kitchen

    • Особенности окна: Window Treatments

    • Направленные лица: Northeast

    • Архитектурный стиль: Craftsman

    • Мест в гараже: 2

    • Прикрепленный гараж: Да

    • Гараж: Да

    • Жилая площадь: 2600

    • Источник воды: Public

    • Название подразделения: PALMS AT COASTERRA

Похожие дома

11110 44TH AVENUE E placeholder 11110 44TH AVENUE E
Новое
Под контрактом
Дом
$394,990
5 спален 3 ванн 2,605 кв.фт.
11110 44TH AVENUE E
11098 CURVING CREEK LOOP placeholder 11098 CURVING CREEK LOOP
Новое
Под контрактом
Дом
$458,860
5 спален 3 ванн 2,490 кв.фт.
11098 CURVING CREEK LOOP
11829 MOONSAIL DRIVE placeholder 11829 MOONSAIL DRIVE
Новое
Под контрактом
Дом
$454,664
4 спален 3 ванн 2,207 кв.фт.
11829 MOONSAIL DRIVE
7144 119TH COURT E placeholder 7144 119TH COURT E
3 Дней
Под контрактом
Дом
$384,340
4 спален 2 ванн 2,480 кв.фт.
7144 119TH COURT E
9423 BELLA MAR TRAIL placeholder 9423 BELLA MAR TRAIL
4 Дней
Под контрактом
Дом
$462,990
4 спален 2 ванн 2,045 кв.фт.
9423 BELLA MAR TRAIL
13811 SHELLMORE AVENUE placeholder 13811 SHELLMORE AVENUE
5 Дней
Под контрактом
Дом
$382,679
4 спален 2 ванн 2,271 кв.фт.
13811 SHELLMORE AVENUE
11031 44TH AVENUE E placeholder 11031 44TH AVENUE E
-$4K (2025/12/24)
Под контрактом
Дом
$385,000
5 спален 3 ванн 2,605 кв.фт.
11031 44TH AVENUE E
3715 109TH STREET EAST placeholder 3715 109TH STREET EAST
12 Дней
Под контрактом
Дом
$574,900
4 спален 3 ванн 2,566 кв.фт.
3715 109TH STREET EAST

The multiple listing information is provided by the Stellar MLS from a copyrighted compilation of listings. The compilation of listings and each individual listing are ©2026-present Stellar MLS. All Rights Reserved. The information provided is for consumers' personal, noncommercial use and may not be used for any purpose other than to identify prospective properties consumers may be interested in purchasing. All properties are subject to prior sale or withdrawal. All information provided is deemed reliable but is not guaranteed accurate, and should be independently verified. Listing courtesy of: TAYLOR MORRISON REALTY OF FL