Недвижимость
Ознакомьтесь с нашими объявлениями
Контакты
Расскажите нам о своих потребностях

13462 LEAPING WATER WAY

Дом На продажу
$388,900

BTC: 4.09368421

ETH: 125.45161290

-$20K (2025/12/31)
392 Дней
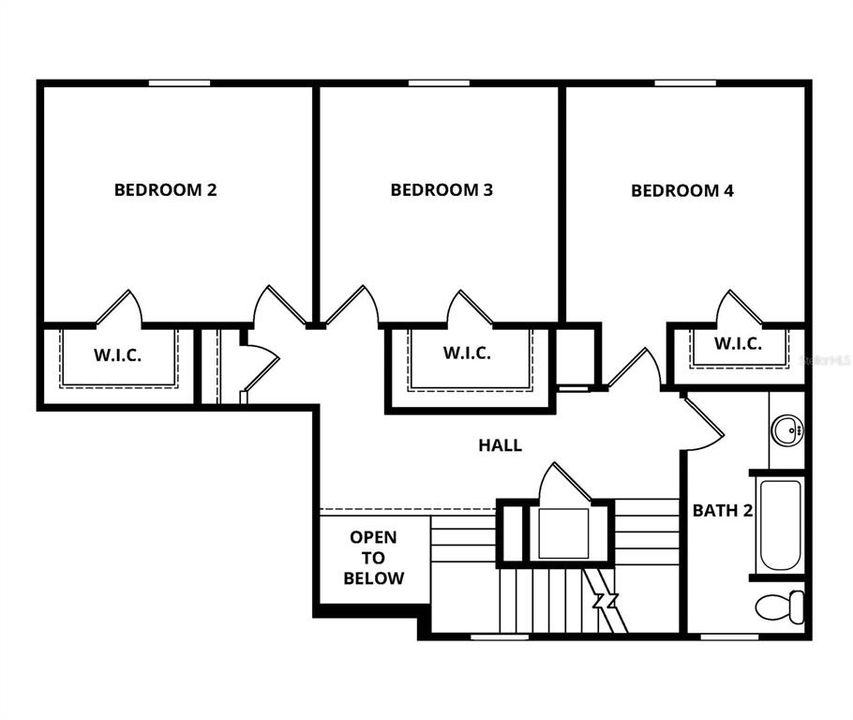
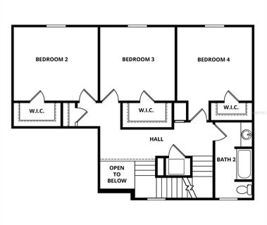
4 спален
2 ванн
2,059 кв.фт.
Est. Предполагаемый диапазон продаж: $0 - $0
$0

Обзор

Reduced Pricing! Stunning 4-Bedroom Parc Floor Plan in Tula Parc – Style, Space & Upgrades Included! Welcome to the Parc model, a beautifully crafted 4-bedroom, 2.5-bathroom two-story home located in the desirable Tula Parc community. From the moment you arrive, the lush, professionally landscaped front yard and covered entryway invite you into a thoughtfully designed home filled with comfort, style, and incredible included upgrades. Step inside to discover a spacious open layout, highlighted by a large family room that flows seamlessly into the chef-ready kitchen. The kitchen is equipped with energy-efficient Whirlpool stainless steel appliances, beautiful granite countertops, 36-inch upper wood cabinets with crown molding, Moen faucets, and LED flush-mount Energy Star lighting. A Wi-Fi-enabled garage door opener and programmable thermostats provide convenience and modern efficiency. Each of the four spacious bedrooms features its own walk-in closet, offering plenty of storage for the whole family. The secluded master suite is a true retreat, featuring a luxurious en-suite bath and a massive walk-in closet designed for privacy and relaxation. A powder room on the main floor adds functionality for guests, while the entire home showcases high-end finishes and an attention to detail throughout. Additional upgrades include double-pane low-E vinyl windows, designer coach lighting, and more—all included at no extra cost. This home is designed to support your lifestyle for years to come, blending elegance and efficiency in every corner. Located in the peaceful and family-friendly Tula Parc community, residents enjoy proximity to Little Lake Harris, offering easy access to outdoor recreation such as boating, fishing, and kayaking. The neighborhood is conveniently close to local schools, parks, and shopping, while still offering the serenity of a quiet, suburban setting. Don’t miss your chance to own this upgraded, move-in-ready home in one of the area’s most desirable communities—schedule your private tour of the Parc model today!

Локация

Факты и особенности

Тип:
Residential
Парковка:
Driveway / Garage Door Opener
Год постройки:
2025
Лот:
0.11 Акров
Отопление:
Electric / Heat Pump
Цена/кв.фут:
$189
Охлаждение:
Central Air
HOA:
$95
Больше фактов и особенностей
  • Напольное покрытие

    • Carpet

    • Luxury Vinyl

    Отопление

    • Electric

    • Heat Pump

    Охлаждение

    • Central Air

    Бытовая техника

    • Dishwasher

    • Disposal

    • Electric Water Heater

    • Exhaust Fan

    • Ice Maker

    • Microwave

    • Range

    • Refrigerator

    Другие особенности интерьера

    • Ceiling Fan(s)

    • Kitchen/Family Room Combo

    • Open Floorplan

    • Pest Guard System

    • Primary Bedroom Main Floor

    • Stone Counters

    • Thermostat

    • Walk-In Closet(s)

    • Window Treatments

    Спальни и ванные комнаты

    • Спальни: 4

    • Ванные: 1

    • Полные ванные комнаты: 2

  • Парковка

    • Driveway

    • Garage Door Opener

    Имущество

    • Этажи: Two

    • Особенности Экстерьера: Irrigation System / Lighting / Sidewalk / Sliding Doors

    Лот

    • Лот: 0.11 Акров

    Другая Информация о Недвижимости

    • Номер Земельного Участка: 292026020000001500

    • Зонирование: MPUD

  • Тип и стиль

    • Тип недвижимости: Residential

    • Подтип недвижимости: Single Family Residence

  • Общественное благосостояние

    • Cable Available

    • Electricity Available

    • Electricity Connected

    • Fiber Optics

    • Phone Available

    • Public

    • Street Lights

    • Underground Utilities

    • Water Available

    • Water Connected

  • Другая финансовая информация

    • HOA: $95

    • Частота HOA: Monthly

    • Годовая сумма налога: $343

  • Детали источника

    • MLS ID: TB8329450

    Другие факты

    • Строительные материалы: Block / Stucco

    • Детали фундамента: Slab

    • Особенности прачечной: Electric Dryer Hookup / In Kitchen / Inside / Laundry Room / Washer Hookup

    • Особенности двора и крыльца: Covered / Front Porch / Patio / Rear Porch

    • Особенности окна: Blinds / Double Pane Windows / ENERGY STAR Qualified Windows / Low-Emissivity Windows / Window Treatments

    • Направленные лица: Northwest

    • Архитектурный стиль: Traditional

    • Мест в гараже: 2

    • Прикрепленный гараж: Да

    • Гараж: Да

    • Жилая площадь: 2059

    • Источник воды: Public

    • Название подразделения: TULA PARC

Похожие дома

502 S DIXIE DRIVE placeholder 502 S DIXIE DRIVE
1 Дней
На продажу
Дом
$350,000
3 спален 2 ванн 1,399 кв.фт.
502 S DIXIE DRIVE
3370 SAINT LUCIA COURT placeholder 3370 SAINT LUCIA COURT
4 Дней
На продажу
Дом
$374,900
3 спален 2 ванн 1,893 кв.фт.
3370 SAINT LUCIA COURT
6170 SAILBOAT AVENUE placeholder 6170 SAILBOAT AVENUE
22 Дней
На продажу
Дом
$345,000
3 спален 2 ванн 1,535 кв.фт.
6170 SAILBOAT AVENUE
13642 CITRUS FARMS DRIVE placeholder 13642 CITRUS FARMS DRIVE
23 Дней
На продажу
Дом
$407,500
4 спален 2 ванн 1,556 кв.фт.
13642 CITRUS FARMS DRIVE
5740 BOUNTY CIRCLE placeholder 5740 BOUNTY CIRCLE
23 Дней
На продажу
Дом
$460,000
4 спален 2 ванн 3,136 кв.фт.
5740 BOUNTY CIRCLE
13330 GEORGIA AVENUE placeholder 13330 GEORGIA AVENUE
25 Дней
На продажу
Дом
$379,000
3 спален 2 ванн 1,500 кв.фт.
13330 GEORGIA AVENUE
104 6TH AVENUE placeholder 104 6TH AVENUE
26 Дней
На продажу
Дом
$328,000
3 спален 2 ванн 1,425 кв.фт.
104 6TH AVENUE
13312 GEORGIA AVENUE placeholder 13312 GEORGIA AVENUE
28 Дней
На продажу
Дом
$379,000
3 спален 2 ванн 1,762 кв.фт.
13312 GEORGIA AVENUE

The multiple listing information is provided by the Stellar MLS from a copyrighted compilation of listings. The compilation of listings and each individual listing are ©2026-present Stellar MLS. All Rights Reserved. The information provided is for consumers' personal, noncommercial use and may not be used for any purpose other than to identify prospective properties consumers may be interested in purchasing. All properties are subject to prior sale or withdrawal. All information provided is deemed reliable but is not guaranteed accurate, and should be independently verified. Listing courtesy of: LGI REALTY- FLORIDA, LLC