Недвижимость
Ознакомьтесь с нашими объявлениями
Контакты
Расскажите нам о своих потребностях

1411 NW 19TH STREET

Дом На продажу
$235,000

BTC: 7.83333333

ETH: 117.50000000

-$15K (2025/11/24)
106 Дней
3 спален
1 ванн
1,674 кв.фт.
Est. Предполагаемый диапазон продаж: $0 - $0
$0

Обзор

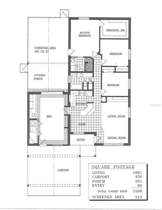
Absolutely charming 3/2 with 1674 square feet of living space nestled on a generous .44-acre parcel in the desirable Woodland Estates Community. Home features a roomy living and dining room combination, perfect for everyday life or entertaining, updated bathrooms & kitchen with white wood cabinetry, granite countertops, breakfast bar, and appliances. Additionally, the home includes a versatile flex room complete with a kitchenette and built-in shelving—ideal for a guest suite, office, or creative space, primary suite with walk-in closet and bathroom. Outdoors present a custom attached double carport, a spacious rear screened patio, circular driveway, storage shed and updated roof & AC. As a resident of Woodland Estates, you’ll also enjoy access to a community boat ramp in lieu of busy public locations, offering easy access to the area's scenic waterways. Don’t miss your opportunity to secure an affordable and move-in ready home for $235,000.

Локация

Факты и особенности

Тип:
Residential
Парковка:
Circular Driveway / Driveway
Год постройки:
1971
Лот:
0.44 Акров
Отопление:
Electric
Цена/кв.фут:
$140
Охлаждение:
Central Air
HOA:
Нет данных
Больше фактов и особенностей
  • Напольное покрытие

    • Carpet

    • Tile

    Отопление

    • Electric

    Охлаждение

    • Central Air

    Бытовая техника

    • Dishwasher

    • Electric Water Heater

    • Microwave

    • Range

    • Refrigerator

    Другие особенности интерьера

    • Ceiling Fan(s)

    • Eating Space In Kitchen

    • Open Floorplan

    • Solid Surface Counters

    • Solid Wood Cabinets

    • Walk-In Closet(s)

    Спальни и ванные комнаты

    • Спальни: 3

    • Полные ванные комнаты: 1

  • Парковка

    • Circular Driveway

    • Driveway

    Имущество

    • Этажи: One

    • Особенности Экстерьера: Lighting

    Лот

    • Лот: 0.44 Акров

    Другая Информация о Недвижимости

    • Номер Земельного Участка: 17E18S170010000300150

    • Зонирование: R1

  • Тип и стиль

    • Тип недвижимости: Residential

    • Подтип недвижимости: Single Family Residence

  • Общественное благосостояние

    • BB/HS Internet Available

    • Cable Available

    • Sewer Connected

    • Water Connected

  • Другая финансовая информация

    • Годовая сумма налога: $3,190

  • Детали источника

    • MLS ID: OM708078

    Другие факты

    • Строительные материалы: Block / Stucco

    • Детали фундамента: Slab

    • Особенности прачечной: Inside / Laundry Room

    • Особенности лота: Landscaped

    • Особенности двора и крыльца: Rear Porch / Screened

    • Особенности окна: Blinds

    • Направленные лица: South

    • Другие структуры: Shed(s)

    • Архитектурный стиль: Ranch

    • Жилая площадь: 1674

    • Источник воды: Public

    • Размеры участка: 100 x 190

    • Название подразделения: WOODLAND ESTATES UNIT 01

Похожие дома

1050 N MIDIRON POINT placeholder 1050 N MIDIRON POINT
3 Дней
На продажу
Дом
$250,000
3 спален 2 ванн 1,020 кв.фт.
1050 N MIDIRON POINT
3924 N APALACHEE POINT placeholder 3924 N APALACHEE POINT
4 Дней
На продажу
Участки / Земля
$275,000
0 room(s)
3924 N APALACHEE POINT
11229 W BAYSHORE DRIVE UNIT 77 placeholder 11229 W BAYSHORE DRIVE UNIT 77
8 Дней
На продажу
Квартира
$240,000
2 спален 2 ванн 1,584 кв.фт.
11229 W BAYSHORE DRIVE UNIT 77
11517 W SANDPIPER COURT UNIT 149 placeholder 11517 W SANDPIPER COURT UNIT 149
-$20K (2025/11/24)
На продажу
Квартира
$229,990
3 спален 2 ванн 1,785 кв.фт.
11517 W SANDPIPER COURT UNIT 149
11550 W BAYSHORE DRIVE UNIT 20 placeholder 11550 W BAYSHORE DRIVE UNIT 20
36 Дней
На продажу
Квартира
$249,000
2 спален 2 ванн 1,584 кв.фт.
11550 W BAYSHORE DRIVE UNIT 20
708 NE 6TH STREET placeholder 708 NE 6TH STREET
45 Дней
На продажу
Дом
$224,900
3 спален 1 ванн 2,448 кв.фт.
708 NE 6TH STREET
4108 N CASA TERRACE placeholder 4108 N CASA TERRACE
45 Дней
На продажу
Дом
$284,900
3 спален 2 ванн 1,358 кв.фт.
4108 N CASA TERRACE
4579 N LENETHE POINT placeholder 4579 N LENETHE POINT
46 Дней
На продажу
Дом
$190,000
3 спален 2 ванн 2,020 кв.фт.
4579 N LENETHE POINT

The multiple listing information is provided by the Stellar MLS from a copyrighted compilation of listings. The compilation of listings and each individual listing are ©2025-present Stellar MLS. All Rights Reserved. The information provided is for consumers' personal, noncommercial use and may not be used for any purpose other than to identify prospective properties consumers may be interested in purchasing. All properties are subject to prior sale or withdrawal. All information provided is deemed reliable but is not guaranteed accurate, and should be independently verified. Listing courtesy of: KELLER WILLIAMS REALTY-ELITE P