Недвижимость
Ознакомьтесь с нашими объявлениями
Контакты
Расскажите нам о своих потребностях

15110 N Saxon Cir, Southwest Ranches FL 33331

Дом На продажу
$2,699,000

BTC: 89.96666667

ETH: 1,349.50000000

41 Дней
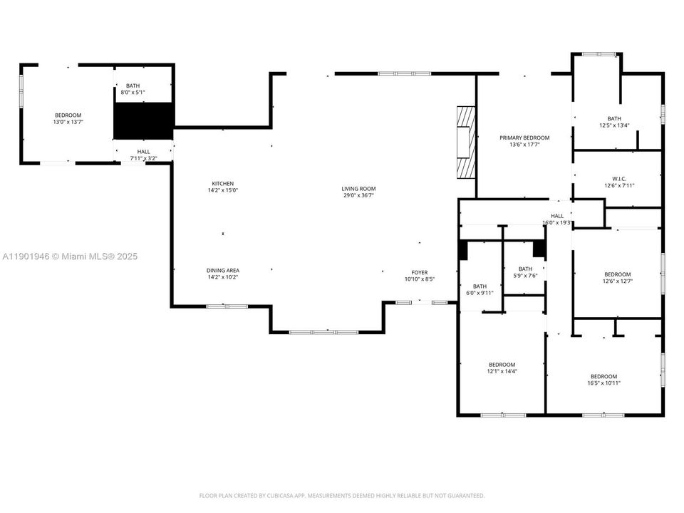
5 спален
5 ванн
2,901 кв.фт.
Est. Предполагаемый диапазон продаж: $0 - $0
$0

Обзор

Homes are rarely available in SW Ranches' Ivanhoe Estates! This sanctuary sits on 1+ acre of manicured landscaping and fruit-tree splendor. Inside a fresh, contemporary vibe that flows effortlessly throughout the home. This 5/5 home features a primary suite PLUS two additional master bedrooms. The heart of the home: the great room-an open-concept that seamlessly integrates kitchen, dining, family and living spaces within once connected space. Luxury kitchen with Taj Mahal stone & high-end s/s appliances. A resort-style terrace with pool, oversized pergola and a full cabana bath! Move-in ready with impact windows/doors throughout, including garage. The split floor plan provides a perfect haven for multigenerational families, guest, or WFH professionals. Walkthru video available. Must see!

Локация

Факты и особенности

Тип:
Residential
Парковка:
Circular Driveway / Paver Block
Год постройки:
1981
Лот:
48317 Квадратных Футов
Отопление:
Central / Electric
Цена/кв.фут:
$930
Охлаждение:
Central Air / Electric
HOA:
$250
Больше фактов и особенностей
  • Напольное покрытие

    • Marble

    • Other

    • Tile

    • Wood

    Отопление

    • Central

    • Electric

    Охлаждение

    • Central Air

    • Electric

    Бытовая техника

    • Dishwasher

    • Disposal

    • Dryer

    • Electric Water Heater

    • Microwave

    • Electric Range

    • Refrigerator

    • Self Cleaning Oven

    • Washer

    Другие особенности интерьера

    • First Floor Entry

    • Closet Cabinetry

    • Cooking Island

    • Pull Down Stairs

    • Split Bedroom

    • Walk-In Closet(s)

    • Attic

    • Den/Library/Office

    • Great Room

    • Utility/Laundry In Garage

    Спальни и ванные комнаты

    • Спальни: 5

    • Полные ванные комнаты: 5

  • Парковка

    • Circular Driveway

    • Paver Block

    Имущество

    • Особенности Экстерьера: Lighting / Fruit Trees

    Лот

    • Лот: 48317 Квадратных Футов

    Другая Информация о Недвижимости

    • Номер Земельного Участка: 504033020700

    • Зонирование: RE

  • Тип и стиль

    • Тип недвижимости: Residential

    • Подтип недвижимости: Single Family Residence

  • Другая финансовая информация

    • HOA: $250

    • Частота HOA: Quarterly

    • Годовая сумма налога: $13,263

  • Детали источника

    • MLS ID: A11901946

    Другие факты

    • Строительные материалы: CBS Construction

    • Особенности камина: Fireplace

    • Особенности прачечной: In Garage

    • Особенности лота: 1 To Less Than 2 Acre Lot

    • Особенности двора и крыльца: Patio

    • Особенности бассейна: In Ground

    • Особенности окна: Complete Impact Glass / Blinds / Drapes / High Impact Windows

    • Направленные лица: Northwest

    • Архитектурный стиль: Detached / One Story

    • Камин: Да

    • Мест в гараже: 2

    • Прикрепленный гараж: Да

    • Гараж: Да

    • Жилая площадь: 2901

    • Источник воды: Well

    • Название подразделения: IVANHOE ESTATES

Похожие дома

13785 SW 40th st, Davie FL 33330 placeholder 13785 SW 40th st, Davie FL 33330
13 Дней
На продажу
Таунхаус
$2,285,000
6 спален 5 ванн
13785 SW 40th st, Davie FL 33330
14896 SW 38th St, Davie FL 33331 placeholder 14896 SW 38th St, Davie FL 33331
13 Дней
На продажу
Дом
$1,950,000
4 спален 4 ванн 3,502 кв.фт.
14896 SW 38th St, Davie FL 33331
14820 Millstone Ranches Dr, Davie FL 33331 placeholder 14820 Millstone Ranches Dr, Davie FL 33331
14 Дней
На продажу
Дом
$2,990,000
5 спален 5 ванн 4,910 кв.фт.
14820 Millstone Ranches Dr, Davie FL 33331
17490 SW 70th Pl, Southwest Ranches FL 33331 placeholder 17490 SW 70th Pl, Southwest Ranches FL 33331
16 Дней
На продажу
Дом
$3,495,000
5 спален 4 ванн 4,663 кв.фт.
17490 SW 70th Pl, Southwest Ranches FL 33331
12995 SW 40th St, Davie FL 33330 placeholder 12995 SW 40th St, Davie FL 33330
17 Дней
На продажу
Дом
$2,500,000
5 спален 4 ванн 4,130 кв.фт.
12995 SW 40th St, Davie FL 33330
14431 Mustang Trl, Southwest Ranches FL 33330 placeholder 14431 Mustang Trl, Southwest Ranches FL 33330
+$100K (2025/11/12)
На продажу
Дом
$2,099,999
3 спален 2 ванн 2,532 кв.фт.
14431 Mustang Trl, Southwest Ranches FL 33330
2939 Paddock Ln, Weston FL 33331 placeholder 2939 Paddock Ln, Weston FL 33331
27 Дней
На продажу
Дом
$3,450,000
4 спален 4 ванн 4,700 кв.фт.
2939 Paddock Ln, Weston FL 33331
16541 SW 62nd St, Southwest Ranches FL 33331 placeholder 16541 SW 62nd St, Southwest Ranches FL 33331
35 Дней
На продажу
Дом
$2,100,000
4 спален 4 ванн 3,752 кв.фт.
16541 SW 62nd St, Southwest Ranches FL 33331

The multiple listing information is provided by the Miami Association of REALTORS® from a copyrighted compilation of listings. The compilation of listings and each individual listing are ©2025-present Miami Association of REALTORS®. All Rights Reserved. The information provided is for consumers' personal, noncommercial use and may not be used for any purpose other than to identify prospective properties consumers may be interested in purchasing. All properties are subject to prior sale or withdrawal. All information provided is deemed reliable but is not guaranteed accurate, and should be independently verified. Listing courtesy of: Goldstar Realty Services