Недвижимость
Ознакомьтесь с нашими объявлениями
Контакты
Расскажите нам о своих потребностях

1729 SW 12th St, Miami FL 33135

Дом На продажу
$1,250,000

BTC: 19.23076923

ETH: 657.89473684

5 Дней
3 спален
2 ванн
2,050 кв.фт.
Est. Предполагаемый диапазон продаж: $0 - $0
$0

Обзор

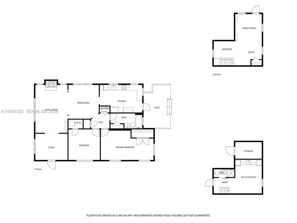
Welcome to The Mission- a beautifully restored 1937 mission-style residence brimming with timeless character. From the original oak hardwood floors to the sunlit living room anchored by its classic fireplace, every space radiates charm & authenticity. The 2bd/1ba main house is complemented with a rare 2-story detached ‘casita’, complete with its own full BA, living area & spacious studio/flex room. Enjoy the large, renovated kitchen that opens directly to the backyard, where a tropical oasis awaits. Multiple areas to relax or entertain, from the inviting deck to peaceful garden nooks surrounded by lush greenery. Covered entry with carport & circular driveway providing ample parking. Extra storage room. Recent upgrades include 2 new roofs, full impact glass, updated plumbing & electrical. Non-flood zone. City sewer. Perfectly situated in the heart of historic Shenandoah, just minutes to Brickell, Coral Gables & Coconut Grove. An exceptional property in one of Miami’s most desirable neighborhoods.

Локация

Факты и особенности

Тип:
Residential
Парковка:
Attached Carport / Circular Driveway / Driveway / On Street
Год постройки:
1937
Лот:
5900 Квадратных Футов
Отопление:
Central / Electric
Цена/кв.фут:
$610
Охлаждение:
Ceiling Fan(s) / Central Air / Electric
HOA:
Нет данных
Больше фактов и особенностей
  • Напольное покрытие

    • Tile

    • Wood

    Отопление

    • Central

    • Electric

    Охлаждение

    • Ceiling Fan(s)

    • Central Air

    • Electric

    Бытовая техника

    • Dishwasher

    • Disposal

    • Microwave

    • Electric Range

    • Refrigerator

    Другие особенности интерьера

    • First Floor Entry

    • Built-in Features

    • Entrance Foyer

    • Volume Ceilings

    • Separate Guest/In-Law Quarters

    • Storage

    • Utility Room/Laundry

    Спальни и ванные комнаты

    • Спальни: 3

    • Полные ванные комнаты: 2

  • Парковка

    • Attached Carport

    • Circular Driveway

    • Driveway

    • On Street

    Имущество

    • Особенности Экстерьера: Lighting / Fruit Trees / Outdoor Shower

    Лот

    • Лот: 5900 Квадратных Футов

    Другая Информация о Недвижимости

    • Номер Земельного Участка: 01-41-10-064-0030

    • Зонирование: 0100

  • Тип и стиль

    • Тип недвижимости: Residential

    • Подтип недвижимости: Single Family Residence

  • Другая финансовая информация

    • Годовая сумма налога: $6,658

  • Детали источника

    • MLS ID: A11934352

    Другие факты

    • Строительные материалы: CBS Construction

    • Особенности камина: Fireplace

    • Особенности прачечной: Utility Room/Laundry

    • Особенности лота: Less Than 1/4 Acre Lot

    • Особенности двора и крыльца: Deck

    • Особенности окна: Complete Impact Glass / Blinds / High Impact Windows / Impact Glass

    • Направленные лица: South

    • Архитектурный стиль: Detached / Mediterranean

    • Камин: Да

    • Жилая площадь: 2050

    • Источник воды: Municipal Water

    • Название подразделения: SOUTH SHENANDOAH

Похожие дома

801 S Miami Ave # 2905, Miami FL 33130 placeholder 801 S Miami Ave # 2905, Miami FL 33130
Новое
На продажу
Квартира
$1,049,000
2 спален 2 ванн 1,152 кв.фт.
801 S Miami Ave # 2905, Miami FL 33130
200 Biscayne Boulevard Way # 503, Miami FL 33131 placeholder 200 Biscayne Boulevard Way # 503, Miami FL 33131
Новое
На продажу
Квартира
$1,090,000
2 спален 2 ванн 1,430 кв.фт.
200 Biscayne Boulevard Way # 503, Miami FL 33131
68 SE 6th St # 1710, Miami FL 33131 placeholder 68 SE 6th St # 1710, Miami FL 33131
Новое
На продажу
Квартира
$949,500
2 спален 2 ванн 1,193 кв.фт.
68 SE 6th St # 1710, Miami FL 33131
347 Madeira Ave # 347, Coral Gables FL 33134 placeholder 347 Madeira Ave # 347, Coral Gables FL 33134
Новое
На продажу
Квартира
$1,599,000
3 спален 3 ванн 2,761 кв.фт.
347 Madeira Ave # 347, Coral Gables FL 33134
2201 SW 22nd Ter, Miami FL 33145 placeholder 2201 SW 22nd Ter, Miami FL 33145
Новое
На продажу
Дом
$1,500,000
3 спален 2 ванн 1,579 кв.фт.
2201 SW 22nd Ter, Miami FL 33145
808 Brickell Key Dr # 1202, Miami FL 33131 placeholder 808 Brickell Key Dr # 1202, Miami FL 33131
+$39K (2026/01/07)
На продажу
Квартира
$1,559,000
2 спален 2 ванн 1,696 кв.фт.
808 Brickell Key Dr # 1202, Miami FL 33131
88 SW 7th St # 3405, Miami FL 33130 placeholder 88 SW 7th St # 3405, Miami FL 33130
1 Дней
На продажу
Квартира
$1,250,000
2 спален 1 ванн 1,206 кв.фт.
88 SW 7th St # 3405, Miami FL 33130
2843 S Bayshore Dr # 6B, Miami FL 33133 placeholder 2843 S Bayshore Dr # 6B, Miami FL 33133
1 Дней
На продажу
Квартира
$1,495,000
2 спален 2 ванн 1,375 кв.фт.
2843 S Bayshore Dr # 6B, Miami FL 33133

The multiple listing information is provided by the Miami Association of REALTORS® from a copyrighted compilation of listings. The compilation of listings and each individual listing are ©2026-present Miami Association of REALTORS®. All Rights Reserved. The information provided is for consumers' personal, noncommercial use and may not be used for any purpose other than to identify prospective properties consumers may be interested in purchasing. All properties are subject to prior sale or withdrawal. All information provided is deemed reliable but is not guaranteed accurate, and should be independently verified. Listing courtesy of: Compass Florida, LLC