Недвижимость
Ознакомьтесь с нашими объявлениями
Контакты
Расскажите нам о своих потребностях

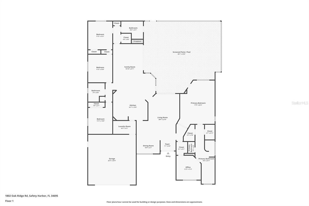
1802 OAK RIDGE ROAD

Дом На продажу
$925,000

BTC: 30.83333333

ETH: 462.50000000

-$40K (2025/10/15)
205 Дней
Набережная
4 спален
3 ванн
2,786 кв.фт.
Est. Предполагаемый диапазон продаж: $0 - $0
$0

Обзор

Stunning Pool Home Near Historic Downtown Safety Harbor! Welcome to Old Harbor Place — a peaceful retreat just a short walk from the charm and culture of Historic Downtown Safety Harbor. This beautifully designed 4-bedroom, 3-bath home features a desirable three-way split-plan, 10-foot volume ceilings and an abundance of natural light, creating a bright and open living space perfect for both relaxing and entertaining. A wall of glass sliders provides breathtaking views of the swimming pool and tranquil pond, seamlessly blending indoor and outdoor living. Open concept living and dining offer hours of fun with the billiards table and equipment that conveys, if the buyer chooses. The chef’s kitchen is enhanced with custom granite countertops, abundant pantry and cabinet space, stainless steel appliances including double ovens with convection and a new French Door refrigerator. In true heart of the home fashion, seating at the breakfast bar, breakfast nook and family room are conducive for entertaining. A wood burning fireplace and full views of the pool and pond make this family room a favorite gathering space. A private third wing is comprised of the bright, updated pool bathroom, a bedroom and extra storage closet, making it a great option for multigenerational living and guests. The king-sized primary suite offers access to the lanai and pool along with gorgeous views of the pond, a dedicated Amana® A/C unit, tray ceilings, an elegant en-suite bathroom with serene garden spa tub, double sinks, make-up vanity, separate water closet, spa-like walk-in shower and two walk-in closets — plus a dedicated office. Convenient indoor laundry room boasts plentiful storage adjacent to the oversized garage. Efficiency and comfort abound, thanks to upgrades including Icynene® spray foam attic insulation and 2024 natural gas tankless hot water heater. Have peace of mind with hurricane shutters and integrated outlet for the generator! Although it is waterfront, this home is FEMA LOMA certified, removing the structure from the flood zone; almost 24 feet above flood zone. Conveniently located, just minutes from world-class beaches, shopping, Tampa International Airport, Clearwater/St. Pete Airport and downtown Tampa and St. Petersburg. Quickly access Downtown Safety Harbor by using the community rear exit to Main Street, great for a stroll or bike ride to enjoy all that Safety Harbor has to offer! Room sizes are approximate. Don't wait on this one!

Локация

Факты и особенности

Тип:
Residential
Парковка:
Driveway / Garage Door Opener / Ground Level / Oversized
Год постройки:
2000
Лот:
0.23 Акров
Отопление:
Central / Electric
Цена/кв.фут:
$332
Охлаждение:
Central Air / Mini-Split Unit(s)
HOA:
$677
Больше фактов и особенностей
  • Напольное покрытие

    • Carpet

    • Tile

    Отопление

    • Central

    • Electric

    Охлаждение

    • Central Air

    • Mini-Split Unit(s)

    Бытовая техника

    • Dishwasher

    • Disposal

    • Dryer

    • Gas Water Heater

    • Microwave

    • Range

    • Refrigerator

    • Tankless Water Heater

    • Washer

    Другие особенности интерьера

    • Built-in Features

    • Ceiling Fan(s)

    • Crown Molding

    • Eating Space In Kitchen

    • High Ceilings

    • Kitchen/Family Room Combo

    • Open Floorplan

    • Primary Bedroom Main Floor

    • Solid Surface Counters

    • Solid Wood Cabinets

    • Split Bedroom

    • Stone Counters

    • Walk-In Closet(s)

    • Window Treatments

    Спальни и ванные комнаты

    • Спальни: 4

    • Полные ванные комнаты: 3

  • Парковка

    • Driveway

    • Garage Door Opener

    • Ground Level

    • Oversized

    Имущество

    • Этажи: One

    • Частный Бассейн: Да

    • Особенности Экстерьера: French Doors / Hurricane Shutters / Irrigation System / Lighting / Private Mailbox / Rain Gutters / Sidewalk / Sliding Doors

    Лот

    • Лот: 0.23 Акров

    Другая Информация о Недвижимости

    • Номер Земельного Участка: 042916637970000210

    • Зонирование: 0110

  • Тип и стиль

    • Тип недвижимости: Residential

    • Подтип недвижимости: Single Family Residence

  • Общественное благосостояние

    • BB/HS Internet Available

    • Cable Available

    • Electricity Connected

    • Natural Gas Connected

    • Public

    • Sewer Connected

    • Water Connected

  • Другая финансовая информация

    • HOA: $677

    • Частота HOA: Annually

    • Годовая сумма налога: $4,543

  • Детали источника

    • MLS ID: TB8386620

    Другие факты

    • Строительные материалы: Block / Concrete / Stucco

    • Детали фундамента: Slab

    • Особенности камина: Family Room / Wood Burning

    • Особенности прачечной: Electric Dryer Hookup / Inside / Laundry Room

    • Особенности лота: Corner Lot / City Lot / Sidewalk

    • Особенности двора и крыльца: Covered / Screened

    • Особенности бассейна: Gunite / In Ground / Lighting / Screen Enclosure

    • Особенности окна: Drapes / Rods / Shades / Shutters / Storm Window(s) / Window Treatments

    • Направленные лица: North

    • Архитектурный стиль: Mediterranean

    • Берег: Да

    • Камин: Да

    • Мест в гараже: 2

    • Прикрепленный гараж: Да

    • Гараж: Да

    • Жилая площадь: 2786

    • Источник воды: Public

    • Размеры участка: 80 x 125

    • Название подразделения: OLD HARBOR PLACE

Похожие дома

2387 HILLCREEK CIRCLE E placeholder 2387 HILLCREEK CIRCLE E
2 Дней
На продажу
Дом
$949,000
4 спален 3 ванн 2,814 кв.фт.
2387 HILLCREEK CIRCLE E
168 WOODCREEK DRIVE N placeholder 168 WOODCREEK DRIVE N
2 Дней
На продажу
Дом
$964,700
4 спален 2 ванн 2,792 кв.фт.
168 WOODCREEK DRIVE N
1830 MAIN STREET placeholder 1830 MAIN STREET
3 Дней
На продажу
Дом
$1,200,000
4 спален 2 ванн 1,950 кв.фт.
1830 MAIN STREET
37 OSPREY STREET placeholder 37 OSPREY STREET
5 Дней
На продажу
Дом
$800,000
5 спален 3 ванн 3,221 кв.фт.
37 OSPREY STREET
DELAWARE STREET placeholder DELAWARE STREET
9 Дней
На продажу
Участки / Земля
$999,000
0 room(s)
DELAWARE STREET
611 ELM STREET placeholder 611 ELM STREET
13 Дней
На продажу
Дом
$729,000
4 спален 2 ванн 1,907 кв.фт.
611 ELM STREET
2079 SWAN LANE placeholder 2079 SWAN LANE
14 Дней
На продажу
Дом
$739,000
3 спален 2 ванн 2,150 кв.фт.
2079 SWAN LANE
975 HARBOR HILL DRIVE placeholder 975 HARBOR HILL DRIVE
15 Дней
На продажу
Дом
$687,900
3 спален 3 ванн 1,703 кв.фт.
975 HARBOR HILL DRIVE

The multiple listing information is provided by the Stellar MLS from a copyrighted compilation of listings. The compilation of listings and each individual listing are ©2025-present Stellar MLS. All Rights Reserved. The information provided is for consumers' personal, noncommercial use and may not be used for any purpose other than to identify prospective properties consumers may be interested in purchasing. All properties are subject to prior sale or withdrawal. All information provided is deemed reliable but is not guaranteed accurate, and should be independently verified. Listing courtesy of: BHHS FLORIDA PROPERTIES GROUP