Недвижимость
Ознакомьтесь с нашими объявлениями
Контакты
Расскажите нам о своих потребностях

1922 SHERBOURNE STREET

Дом Под контрактом
$435,000

BTC: 5.03763752

ETH: 148.66712235

11 Дней
3 спален
2 ванн
1,717 кв.фт.
Est. Предполагаемый диапазон продаж: $0 - $0
$0

Обзор

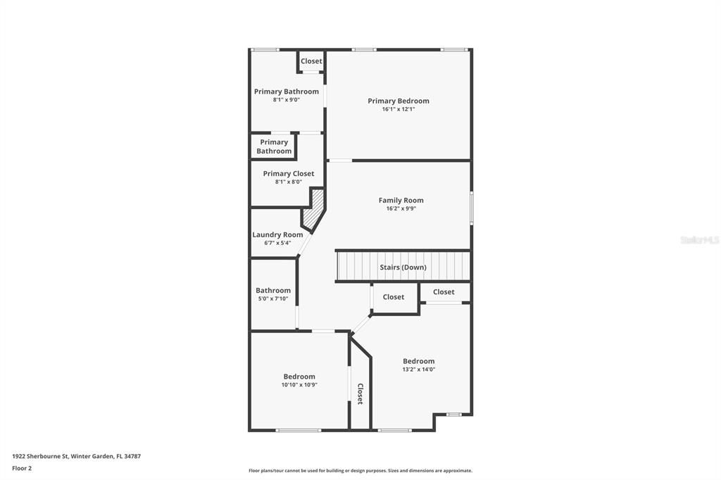
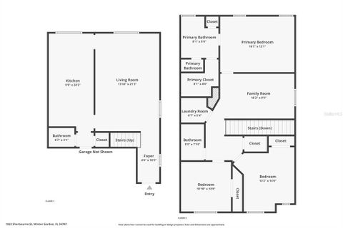
Under contract-accepting backup offers. Welcome to this beautifully maintained 3 bedroom, 2.5 bathroom, Winter Garden home in the centrally-located Stone Creek neighborhood. This fantastic home features a bright, open layout, facilitating comfort and practicality for everyday living and entertaining on the main floor. The spacious kitchen features amble counter and storage space, with upgraded stainless steel appliances. The kitchen eating area overlooks a generous, completely-fenced backyard , with a large patio and private, above ground pool for your added enjoyment. All bedrooms are upstairs with beautiful laminate wood flooring. The oversized primary bedroom provides ample space to relax and unwind and features a custom walk-in closet for added organization. The generous loft is open for your desired use. With this split floor plan, there are two nicely sized additional bedrooms and a full bathroom that has a bathtub/shower combination. This home is move-in ready, with all the major components already having been finished for you. Upgrades include a new AC (2025), new roof and rain gutters (2021) double-paned windows (2020), new water heater (2019), and the entire exterior of home fully repainted (2018). Conveniently located to restaurants, grocery stores, Winter Garden Village, as well as downtown Winter Garden, you have access to it all! Short distance to top-notch rated schools, not to mention theme parks and other entertainment options. Hop onto the 429 in minutes with a quick connection to the Florida Turnpike. Book your showing today and make this house your new home.

Локация

Факты и особенности

Тип:
Residential
Парковка:
Нет данных
Год постройки:
2006
Лот:
0.11 Акров
Отопление:
Central / Electric
Цена/кв.фут:
$253
Охлаждение:
Central Air
HOA:
$142
Больше фактов и особенностей
  • Напольное покрытие

    • Carpet

    • Ceramic Tile

    • Laminate

    Отопление

    • Central

    • Electric

    Охлаждение

    • Central Air

    Бытовая техника

    • Dishwasher

    • Disposal

    • Dryer

    • Electric Water Heater

    • Microwave

    • Range

    • Refrigerator

    • Washer

    Другие особенности интерьера

    • Ceiling Fan(s)

    • Eating Space In Kitchen

    • High Ceilings

    • PrimaryBedroom Upstairs

    • Thermostat

    • Walk-In Closet(s)

    • Window Treatments

    Спальни и ванные комнаты

    • Спальни: 3

    • Ванные: 1

    • Полные ванные комнаты: 2

  • Имущество

    • Этажи: Two

    • Частный Бассейн: Да

    • Особенности Экстерьера: Lighting / Private Mailbox / Rain Gutters / Sidewalk / Sliding Doors

    Лот

    • Лот: 0.11 Акров

    Другая Информация о Недвижимости

    • Номер Земельного Участка: 042327823021121

    • Зонирование: PUD

  • Тип и стиль

    • Тип недвижимости: Residential

    • Подтип недвижимости: Single Family Residence

  • Общественное благосостояние

    • BB/HS Internet Available

    • Cable Connected

    • Electricity Connected

    • Fiber Optics

    • Public

    • Sewer Connected

    • Street Lights

    • Water Connected

  • Другая финансовая информация

    • HOA: $142

    • Частота HOA: Quarterly

    • Годовая сумма налога: $3,732

  • Детали источника

    • MLS ID: G5104294

    Другие факты

    • Строительные материалы: Block / Stucco

    • Детали фундамента: Slab

    • Особенности прачечной: Inside / Laundry Room / Upper Level

    • Особенности лота: City Lot / Landscaped / Level / Sidewalk

    • Особенности двора и крыльца: Patio

    • Особенности бассейна: Above Ground / Vinyl

    • Особенности окна: Blinds / Double Pane Windows / Shutters / Window Treatments

    • Направленные лица: North

    • Архитектурный стиль: Traditional

    • Мест в гараже: 2

    • Прикрепленный гараж: Да

    • Гараж: Да

    • Жилая площадь: 1717

    • Источник воды: Public

    • Название подразделения: STONE CREEK 44/131

Похожие дома

2237 WINTERMERE POINTE DRIVE placeholder 2237 WINTERMERE POINTE DRIVE
1 Дней
Под контрактом
Дом
$495,000
4 спален 2 ванн 1,950 кв.фт.
2237 WINTERMERE POINTE DRIVE
13808 ANCILLA BOULEVARD placeholder 13808 ANCILLA BOULEVARD
2 Дней
Под контрактом
Таунхаус
$414,999
3 спален 2 ванн 1,461 кв.фт.
13808 ANCILLA BOULEVARD
13907 ANCILLA BOULEVARD placeholder 13907 ANCILLA BOULEVARD
3 Дней
Под контрактом
Таунхаус
$360,000
2 спален 2 ванн 1,155 кв.фт.
13907 ANCILLA BOULEVARD
13833 ANCILLA BOULEVARD placeholder 13833 ANCILLA BOULEVARD
5 Дней
Под контрактом
Таунхаус
$355,000
2 спален 2 ванн 1,155 кв.фт.
13833 ANCILLA BOULEVARD
222 LARGOVISTA DRIVE placeholder 222 LARGOVISTA DRIVE
7 Дней
Под контрактом
Дом
$499,950
4 спален 2 ванн 2,094 кв.фт.
222 LARGOVISTA DRIVE
14007 EYLEWOOD DRIVE placeholder 14007 EYLEWOOD DRIVE
7 Дней
Под контрактом
Дом
$520,000
4 спален 3 ванн 3,337 кв.фт.
14007 EYLEWOOD DRIVE
13927 BLUEBIRD POND ROAD placeholder 13927 BLUEBIRD POND ROAD
12 Дней
Под контрактом
Дом
$535,000
4 спален 3 ванн 2,345 кв.фт.
13927 BLUEBIRD POND ROAD
1182 ORANGE SEASON LANE placeholder 1182 ORANGE SEASON LANE
13 Дней
Под контрактом
Таунхаус
$525,000
3 спален 2 ванн 2,224 кв.фт.
1182 ORANGE SEASON LANE

The multiple listing information is provided by the Stellar MLS from a copyrighted compilation of listings. The compilation of listings and each individual listing are ©2025-present Stellar MLS. All Rights Reserved. The information provided is for consumers' personal, noncommercial use and may not be used for any purpose other than to identify prospective properties consumers may be interested in purchasing. All properties are subject to prior sale or withdrawal. All information provided is deemed reliable but is not guaranteed accurate, and should be independently verified. Listing courtesy of: ERA GRIZZARD REAL ESTATE