Недвижимость
Ознакомьтесь с нашими объявлениями
Контакты
Расскажите нам о своих потребностях

19787 GLADEVIEW WAY

Дом На продажу
$611,740

BTC: 7.08442386

ETH: 209.07040328

2 Дней
5 спален
4 ванн
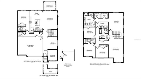
3,975 кв.фт.
Est. Предполагаемый диапазон продаж: $0 - $0
$0

Обзор

One or more photo(s) has been virtually staged. Under Construction. The builder is offering buyers up to $25,000 towards closing costs with the use of a preferred lender and title company. Located off US-41, Deerbrook showcases new homes in Land O’ Lakes. Homeowners will be a close distance to walking trails and the Suncoast Parkway biking paths, as well as nearby shopping and dining! The Tampa Premium Outlets and Wiregrass Mall are less than 30 minutes away, providing additional shopping and entertainment. Downtown Tampa is just 23 miles away, as is Tampa International Airport. Deerbrook will feature a lineup of our Express, and Tradition floorplans, providing a home for every stage of life! The area is zoned for highly rated Pasco County schools and is just minutes away from US Hwy 41. Each home is constructed with all concrete block construction on 1st and 2nd stories and D.R. Horton’s Smart Home System. Pictures, photographs, colors, features, and sizes are for illustration purposes only and will vary from the homes as built. Home and community information, including pricing, included features, terms, availability, and amenities, are subject to change and prior sale at any time without notice or obligation. Materials may vary based on availability. D.R. Horton Reserves all Rights.

Локация

Факты и особенности

Тип:
Residential
Парковка:
Нет данных
Год постройки:
2026
Лот:
0.34 Акров
Отопление:
Central
Цена/кв.фут:
$154
Охлаждение:
Central Air
HOA:
$27
Больше фактов и особенностей
  • Напольное покрытие

    • Carpet

    • Ceramic Tile

    Отопление

    • Central

    Охлаждение

    • Central Air

    Бытовая техника

    • Dishwasher

    • Microwave

    Другие особенности интерьера

    • Open Floorplan

    Спальни и ванные комнаты

    • Спальни: 5

    • Ванные: 1

    • Полные ванные комнаты: 4

  • Имущество

    • Этажи: Two

    • Особенности Экстерьера: Sliding Doors

    Лот

    • Лот: 0.34 Акров

    Другая Информация о Недвижимости

    • Номер Земельного Участка: 03 26 18 0110 01600 0010

    • Зонирование: MPUD

  • Тип и стиль

    • Тип недвижимости: Residential

    • Подтип недвижимости: Single Family Residence

  • Общественное благосостояние

    • Underground Utilities

  • Другая финансовая информация

    • HOA: $27

    • Частота HOA: Monthly

  • Детали источника

    • MLS ID: TB8458411

    Другие факты

    • Строительные материалы: Block / Stucco

    • Детали фундамента: Slab

    • Особенности прачечной: Laundry Room

    • Особенности окна: Double Pane Windows / Low-Emissivity Windows

    • Направленные лица: Southwest

    • Мест в гараже: 3

    • Прикрепленный гараж: Да

    • Гараж: Да

    • Жилая площадь: 3975

    • Источник воды: Public

    • Название подразделения: DEERBROOK

Похожие дома

4701 LAND O LAKES BOULEVARD placeholder 4701 LAND O LAKES BOULEVARD
2 Дней
На продажу
Коммерческий
$675,000
0 room(s)
4701 LAND O LAKES BOULEVARD
7101 FLINT CREEK DRIVE placeholder 7101 FLINT CREEK DRIVE
2 Дней
На продажу
Дом
$467,990
4 спален 2 ванн 2,045 кв.фт.
7101 FLINT CREEK DRIVE
7726 BOUQUET COURT placeholder 7726 BOUQUET COURT
2 Дней
На продажу
Дом
$450,000
3 спален 2 ванн 1,809 кв.фт.
7726 BOUQUET COURT
17465 VALLEYWOOD PARKWAY placeholder 17465 VALLEYWOOD PARKWAY
4 Дней
На продажу
Дом
$657,990
4 спален 4 ванн 3,278 кв.фт.
17465 VALLEYWOOD PARKWAY
17477 VALLEYWOOD PARKWAY placeholder 17477 VALLEYWOOD PARKWAY
4 Дней
На продажу
Дом
$614,990
4 спален 4 ванн 3,099 кв.фт.
17477 VALLEYWOOD PARKWAY
21396 SNOWY ORCHID TERRACE placeholder 21396 SNOWY ORCHID TERRACE
5 Дней
На продажу
Дом
$539,500
4 спален 3 ванн 2,453 кв.фт.
21396 SNOWY ORCHID TERRACE
21529 SOUTHERN CHARM DRIVE placeholder 21529 SOUTHERN CHARM DRIVE
7 Дней
На продажу
Дом
$507,500
4 спален 2 ванн 2,284 кв.фт.
21529 SOUTHERN CHARM DRIVE
7629 BROAD RIVER AVENUE placeholder 7629 BROAD RIVER AVENUE
10 Дней
На продажу
Дом
$569,900
4 спален 3 ванн 2,537 кв.фт.
7629 BROAD RIVER AVENUE

The multiple listing information is provided by the Stellar MLS from a copyrighted compilation of listings. The compilation of listings and each individual listing are ©2025-present Stellar MLS. All Rights Reserved. The information provided is for consumers' personal, noncommercial use and may not be used for any purpose other than to identify prospective properties consumers may be interested in purchasing. All properties are subject to prior sale or withdrawal. All information provided is deemed reliable but is not guaranteed accurate, and should be independently verified. Listing courtesy of: D R HORTON REALTY OF TAMPA LLC