Недвижимость
Ознакомьтесь с нашими объявлениями
Контакты
Расскажите нам о своих потребностях

2022 ASHER AVENUE

Дом Под контрактом
$559,740

BTC: 7.99628571

ETH: 272.37956204

Новое
4 спален
2 ванн
2,100 кв.фт.
Est. Предполагаемый диапазон продаж: $0 - $0
$0

Обзор

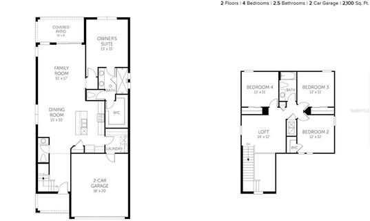
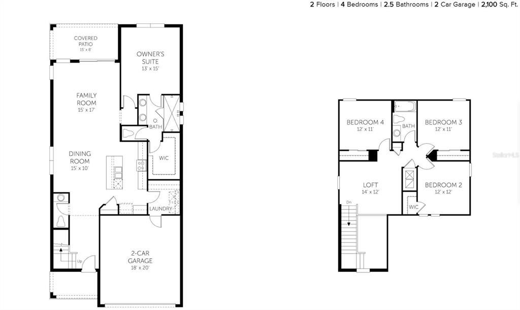
One or more photo(s) has been virtually staged. Under Construction. SAMPLE IMAGE The Magnolia floorplan offers a comfortable two-story layout featuring 4 bedrooms and 2.5 bathrooms, ideal for those seeking both space and functionality. The main floor includes a spacious family room adjacent to the dining area, with a covered patio extending from the family room for outdoor enjoyment. The kitchen provides direct access to the dining space, and a separate laundry room sits conveniently near the two-car garage entrance. The primary suite, located on the first floor, includes a private bathroom and a walk-in closet, creating a peaceful retreat. Upstairs, a versatile loft area is surrounded by three additional bedrooms, making it perfect for a cozy lounge or play area. The Magnolia balances everyday convenience with thoughtful design for a welcoming home environment.

Локация

Факты и особенности

Тип:
Residential
Парковка:
Нет данных
Год постройки:
2025
Лот:
0.16 Акров
Отопление:
Electric
Цена/кв.фут:
$267
Охлаждение:
Central Air
HOA:
$100
Больше фактов и особенностей
  • Напольное покрытие

    • Carpet

    • Tile

    Отопление

    • Electric

    Охлаждение

    • Central Air

    Бытовая техника

    • Built-In Oven

    • Convection Oven

    • Cooktop

    • Dishwasher

    • Disposal

    • Electric Water Heater

    • Ice Maker

    • Microwave

    Другие особенности интерьера

    • Eating Space In Kitchen

    • Kitchen/Family Room Combo

    • Living Room/Dining Room Combo

    • Open Floorplan

    • Primary Bedroom Main Floor

    • Split Bedroom

    • Thermostat

    • Walk-In Closet(s)

    Спальни и ванные комнаты

    • Спальни: 4

    • Ванные: 1

    • Полные ванные комнаты: 2

  • Имущество

    • Этажи: Two

    • Особенности Экстерьера: Sidewalk / Sliding Doors / Sprinkler Metered

    Лот

    • Лот: 0.16 Акров

    Другая Информация о Недвижимости

    • Номер Земельного Участка: 322126002500010100

  • Тип и стиль

    • Тип недвижимости: Residential

    • Подтип недвижимости: Single Family Residence

  • Общественное благосостояние

    • Electricity Available

    • Fiber Optics

    • Sprinkler Recycled

    • Underground Utilities

  • Другая финансовая информация

    • HOA: $100

    • Частота HOA: Annually

    • Годовая сумма налога: $375

  • Детали источника

    • MLS ID: G5102627

    Другие факты

    • Строительные материалы: Block / Stucco

    • Детали фундамента: Slab

    • Особенности прачечной: Inside / Laundry Room

    • Особенности лота: Cleared / Sidewalk

    • Особенности двора и крыльца: Enclosed / Front Porch / Rear Porch / Screened

    • Направленные лица: North

    • Архитектурный стиль: Contemporary

    • Мест в гараже: 2

    • Прикрепленный гараж: Да

    • Гараж: Да

    • Жилая площадь: 2100

    • Источник воды: Public

    • Размеры участка: 40 x 100

    • Название подразделения: HILLS OF MINNEOLA

Похожие дома

2168 SUNSHINE PEAK DRIVE placeholder 2168 SUNSHINE PEAK DRIVE
Новое
Под контрактом
Дом
$599,990
4 спален 2 ванн 2,100 кв.фт.
2168 SUNSHINE PEAK DRIVE
1571 CADENCE STREET placeholder 1571 CADENCE STREET
Новое
Под контрактом
Дом
$566,990
4 спален 3 ванн 1,654 кв.фт.
1571 CADENCE STREET
2208 KEYSTONE PASS BOULEVARD placeholder 2208 KEYSTONE PASS BOULEVARD
Новое
Под контрактом
Дом
$648,162
4 спален 3 ванн 3,038 кв.фт.
2208 KEYSTONE PASS BOULEVARD
1631 PYRAMID HILL STREET placeholder 1631 PYRAMID HILL STREET
Новое
Под контрактом
Дом
$549,990
4 спален 2 ванн 2,235 кв.фт.
1631 PYRAMID HILL STREET
2212 AXEL STREET placeholder 2212 AXEL STREET
Новое
Под контрактом
Дом
$659,985
5 спален 4 ванн 3,065 кв.фт.
2212 AXEL STREET
2149 AXEL STREET placeholder 2149 AXEL STREET
Новое
Под контрактом
Дом
$599,990
4 спален 2 ванн 2,235 кв.фт.
2149 AXEL STREET
1900 SUNSHINE PEAK DRIVE placeholder 1900 SUNSHINE PEAK DRIVE
Новое
Под контрактом
Дом
$525,495
4 спален 2 ванн 2,100 кв.фт.
1900 SUNSHINE PEAK DRIVE
1904 SUNSHINE PEAK DRIVE placeholder 1904 SUNSHINE PEAK DRIVE
Новое
Под контрактом
Дом
$625,410
4 спален 2 ванн 2,100 кв.фт.
1904 SUNSHINE PEAK DRIVE

The multiple listing information is provided by the Stellar MLS from a copyrighted compilation of listings. The compilation of listings and each individual listing are ©2026-present Stellar MLS. All Rights Reserved. The information provided is for consumers' personal, noncommercial use and may not be used for any purpose other than to identify prospective properties consumers may be interested in purchasing. All properties are subject to prior sale or withdrawal. All information provided is deemed reliable but is not guaranteed accurate, and should be independently verified. Listing courtesy of: OLYMPUS EXECUTIVE REALTY INC