Недвижимость
Ознакомьтесь с нашими объявлениями
Контакты
Расскажите нам о своих потребностях

204 CORDOVA ROAD

Дом Под контрактом
$320,000

BTC: 3.70584829

ETH: 109.36431989

-$30K (2025/11/21)
17 Дней
3 спален
2 ванн
2,436 кв.фт.
Est. Предполагаемый диапазон продаж: $0 - $0
$0

Обзор

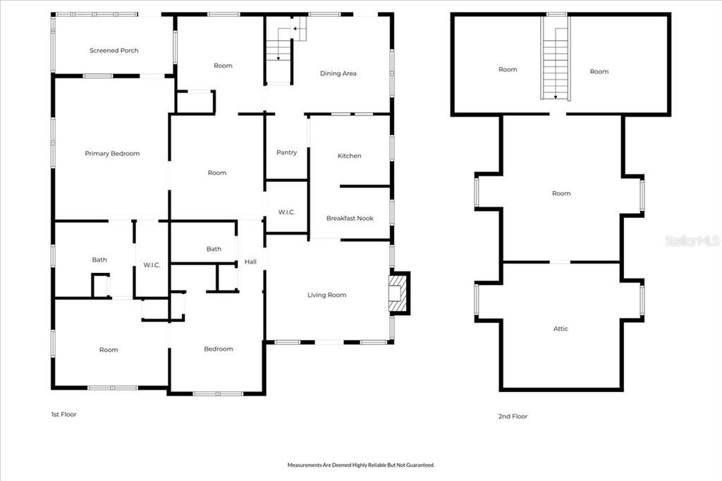
Under contract-accepting backup offers. One or more photo(s) has been virtually staged. Discover the charm of this historical 1925 home located in the heart of Auburndale, Florida. This spacious residence features three bedrooms and two bathrooms, offering over 2,400 square feet of living space with a total of 3,100 square feet. With a bit of TLC, this property could transform into a beautiful historical masterpiece, or you may choose to take advantage of its potential by subdividing the lot into 5 (.15-acre) parcels for new construction. Situated on .91 acres, this property presents a fantastic investment opportunity for builders or those looking to create their own private compound. Upon entering the front door, you are welcomed into a cozy living room complete with an electric fireplace and built-in shelving. The layout includes a private dining room, a kitchen with a dinette area, and a convenient bathroom adjacent to two large bedrooms. The expansive master bedroom measures 17 x 14 and features a spacious bathroom and a walk-in closet. Additionally, the home offers an office (12 x 12) and a bonus room (13 x 11), providing ample space for various needs. Upstairs, you'll find a generous loft with 554 square feet of unfinished space that can be customized to your liking. The property also includes a detached garage/workshop measuring over 1,300 square feet (26 x 51) and a 12 x 18 storage shed in the backyard. Conveniently located near schools, shopping, restaurants, and medical facilities, this home is just 3 miles from the Polk County Parkway, perfectly positioned between Tampa and Orlando.

Локация

Факты и особенности

Тип:
Residential
Парковка:
Driveway / On Street / Open / Parking Pad / RV Parking
Год постройки:
1925
Лот:
0.91 Акров
Отопление:
Central
Цена/кв.фут:
$131
Охлаждение:
Central Air
HOA:
Нет данных
Больше фактов и особенностей
  • Напольное покрытие

    • Carpet

    Отопление

    • Central

    Охлаждение

    • Central Air

    Бытовая техника

    • Dishwasher

    • Electric Water Heater

    • Range

    • Range Hood

    • Refrigerator

    Другие особенности интерьера

    • Built-in Features

    • Primary Bedroom Main Floor

    • Solid Wood Cabinets

    • Thermostat

    • Walk-In Closet(s)

    Спальни и ванные комнаты

    • Спальни: 3

    • Полные ванные комнаты: 2

  • Парковка

    • Driveway

    • On Street

    • Open

    • Parking Pad

    • RV Parking

    Имущество

    • Этажи: Two

    • Особенности Экстерьера: Storage

    Лот

    • Лот: 0.91 Акров

    Другая Информация о Недвижимости

    • Номер Земельного Участка: 252804319001011050

    • Зонирование: R-2

  • Тип и стиль

    • Тип недвижимости: Residential

    • Подтип недвижимости: Single Family Residence

  • Общественное благосостояние

    • BB/HS Internet Available

    • Cable Available

    • Electricity Connected

    • Public

    • Sewer Connected

    • Street Lights

    • Water Connected

  • Другая финансовая информация

    • Годовая сумма налога: $1,171

  • Детали источника

    • MLS ID: L4957074

    Другие факты

    • Строительные материалы: Vinyl Siding / Wood Frame

    • Детали фундамента: Crawlspace

    • Особенности камина: Electric / Insert / Living Room

    • Особенности прачечной: Electric Dryer Hookup / Other / Outside / Washer Hookup

    • Особенности лота: In County

    • Особенности двора и крыльца: Covered / Front Porch / Rear Porch

    • Направленные лица: East

    • Другие структуры: Shed(s) / Storage / Workshop

    • Архитектурный стиль: Historical

    • Камин: Да

    • Мест в гараже: 4

    • Гараж: Да

    • Жилая площадь: 2436

    • Источник воды: Public

    • Название подразделения: LENA VISTA SUB

Похожие дома

102 WATERVIEW CIRCLE placeholder 102 WATERVIEW CIRCLE
2 Дней
Под контрактом
Дом
$299,900
3 спален 2 ванн 1,537 кв.фт.
102 WATERVIEW CIRCLE
1521 OTTER WOODS LANE placeholder 1521 OTTER WOODS LANE
2 Дней
Под контрактом
Дом
$403,460
4 спален 2 ванн 2,005 кв.фт.
1521 OTTER WOODS LANE
609 LIME STREET placeholder 609 LIME STREET
4 Дней
Под контрактом
Дом
$265,000
4 спален 2 ванн 1,384 кв.фт.
609 LIME STREET
112 KEITH COURT placeholder 112 KEITH COURT
7 Дней
Под контрактом
Дом
$239,900
3 спален 2 ванн 1,374 кв.фт.
112 KEITH COURT
2104 BABBLING BROOK BOULEVARD placeholder 2104 BABBLING BROOK BOULEVARD
8 Дней
Под контрактом
Дом
$349,999
4 спален 2 ванн 1,974 кв.фт.
2104 BABBLING BROOK BOULEVARD
148 EAGLE POINT BOULEVARD placeholder 148 EAGLE POINT BOULEVARD
-$19K (2025/10/30)
Под контрактом
Дом
$250,000
3 спален 2 ванн 1,140 кв.фт.
148 EAGLE POINT BOULEVARD
2426 SLIPPERY ROCK STREET placeholder 2426 SLIPPERY ROCK STREET
11 Дней
Под контрактом
Дом
$358,999
4 спален 3 ванн 2,106 кв.фт.
2426 SLIPPERY ROCK STREET
2068 BABBLING BROOK BOULEVARD placeholder 2068 BABBLING BROOK BOULEVARD
15 Дней
Под контрактом
Дом
$360,999
4 спален 3 ванн 2,106 кв.фт.
2068 BABBLING BROOK BOULEVARD

The multiple listing information is provided by the Stellar MLS from a copyrighted compilation of listings. The compilation of listings and each individual listing are ©2025-present Stellar MLS. All Rights Reserved. The information provided is for consumers' personal, noncommercial use and may not be used for any purpose other than to identify prospective properties consumers may be interested in purchasing. All properties are subject to prior sale or withdrawal. All information provided is deemed reliable but is not guaranteed accurate, and should be independently verified. Listing courtesy of: LPT REALTY, LLC