Недвижимость
Ознакомьтесь с нашими объявлениями
Контакты
Расскажите нам о своих потребностях

2050 OYSTER CREEK DRIVE

Дом На продажу
$589,000

BTC: 8.74315707

ETH: 306.77083333

19 Дней
Набережная
2 спален
2 ванн
1,284 кв.фт.
Est. Предполагаемый диапазон продаж: $0 - $0
$0

Обзор

WATERFRONT PROPERTY ON OYSTER CREEK. THIS FLORIDA BUNGALOW SITS ON OVER ONE-HALF ACRE OF LAND NESTLED AGAINST A SALTWATER CANAL WITH ONLY ONE BRIDGE OUT INTO LEMON BAY AND QUICK GULF ACCESS THROUGH STUM PASS OR VENTURE SOUTH A FEW MILES TO BOCA GRANDE PASS. EITHER DIRECTION - YOU WILL HAVE A WORLD CLASS FISHING ADVENTURE! DOCK YOUR BOAT RIGHT OUT BACK UNDER YOUR COVERED BOATHOUSE, OFFERING SUPERIOR PROTECTION FROM THE ELEMENTS WITH POWER AND WATER AVAILABLE RIGHT AT YOUR PRIVATE DOCK. NEED TO PULL YOUR BOAT OUT OF THE WATER? JUST TAKE IT TO THE MEMBERSHIP ONLY COMMUNITY BOAT RAMP - RIGHT ON YOUR OWN STREET. FEE IS ONLY $100.00 PER YEAR. WHAT A GREAT CONVENIENCE. THIS TWO BEDROOM, TWO BATH HOME HAS BEEN A FAMILY TREASURE SINCE 1982 AND IS NOW AVAILABLE FOR THE NEXT OWNER TO CAPTURE THEIR OWN MOMENTS AND CREATE MEMORIES. This property is over a half-acre and has unobstructed views of Oyster Creek and a wildlife preserve. It is a beautiful morning to be able to sit out on your dock with this exclusive natural setting and view all the waterfowl surrounding you and the fish and manatees gliding by. Inside you have a large Florida room facing all the action with a bank of windows offering a perfectly clear line of sight. Plenty of room here for expansion - enlarge footprint of the home, install a luxury in-ground pool with cabana, and an outdoor kitchen. The large, sunny, and open yard is suitable for productive vegetable and flower gardens! The newer Weather King Shed is perfect to house all your tools and fishing gear. Close proximity to: Manasota Key with 11 miles of pristine sand on the Gulf of Mexico, Boca Grande with beautiful beaches, historic lighthouse and specialty restaurants and shops. There are over 40 well-designed Golf Courses within 20 miles, Waterfront Restaurants (some within walking Distance) Shopping, Grocery, and Two Spring Training Facilities - home to the Tampa Bay Rays and the Atlanta Braves (less than 30 miles). There are multiple local waterfront parks to enjoy, hiking trails and recreational parks, one with a heated swimming pool only 2 miles away. DON'T HESITATE - RARE OPPORTUNITY FOR THIS FLORIDA ESTATE HOME - CALL NOW FOR YOUR PRIVATE SHOWING.

Локация

Факты и особенности

Тип:
Residential
Парковка:
Driveway
Год постройки:
1959
Лот:
0.61 Акров
Отопление:
Central
Цена/кв.фут:
$459
Охлаждение:
Central Air
HOA:
Нет данных
Больше фактов и особенностей
  • Напольное покрытие

    • Carpet

    • Terrazzo

    Отопление

    • Central

    Охлаждение

    • Central Air

    Бытовая техника

    • Built-In Oven

    • Dishwasher

    • Microwave

    • Range

    • Refrigerator

    Другие особенности интерьера

    • Ceiling Fan(s)

    • Solid Wood Cabinets

    Спальни и ванные комнаты

    • Спальни: 2

    • Полные ванные комнаты: 2

  • Парковка

    • Driveway

    Имущество

    • Этажи: One

    • Особенности Экстерьера: Irrigation System / Storage

    Лот

    • Лот: 0.61 Акров

    Другая Информация о Недвижимости

    • Номер Земельного Участка: 412008401004

    • Зонирование: RSF5

  • Тип и стиль

    • Тип недвижимости: Residential

    • Подтип недвижимости: Single Family Residence

  • Общественное благосостояние

    • Cable Available

    • Cable Connected

  • Другая финансовая информация

    • Годовая сумма налога: $5,434

  • Детали источника

    • MLS ID: D6145219

    Другие факты

    • Строительные материалы: Block / Concrete

    • Детали фундамента: Slab

    • Особенности прачечной: In Garage

    • Особенности окна: Blinds

    • Направленные лица: South

    • Архитектурный стиль: Florida / Ranch

    • Берег: Да

    • Название водоема: OYSTER CREEK

    • Мест в гараже: 2

    • Прикрепленный гараж: Да

    • Гараж: Да

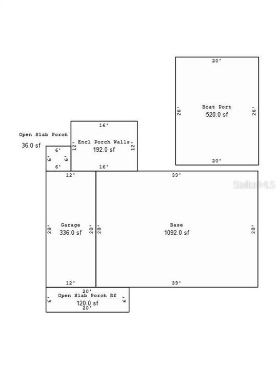
    • Жилая площадь: 1284

    • Источник воды: Public

    • Размеры участка: 84 x 314

    • Название подразделения: GROVE CITY

Похожие дома

2950 N BEACH ROAD UNIT A315 placeholder 2950 N BEACH ROAD UNIT A315
2 Дней
На продажу
Квартира
$549,000
2 спален 2 ванн 1,237 кв.фт.
2950 N BEACH ROAD UNIT A315
857 E 3RD STREET placeholder 857 E 3RD STREET
2 Дней
На продажу
Дом
$424,900
2 спален 2 ванн 1,144 кв.фт.
857 E 3RD STREET
9266 CLEWISTON TERRACE placeholder 9266 CLEWISTON TERRACE
4 Дней
На продажу
Дом
$525,000
3 спален 2 ванн 1,517 кв.фт.
9266 CLEWISTON TERRACE
1401 BEACH ROAD UNIT 303 placeholder 1401 BEACH ROAD UNIT 303
5 Дней
На продажу
Квартира
$599,900
2 спален 3 ванн 1,217 кв.фт.
1401 BEACH ROAD UNIT 303
9203 GRIGGS ROAD UNIT A302 placeholder 9203 GRIGGS ROAD UNIT A302
7 Дней
На продажу
Квартира
$629,000
3 спален 2 ванн 1,913 кв.фт.
9203 GRIGGS ROAD UNIT A302
338 BOUNDARY BOULEVARD placeholder 338 BOUNDARY BOULEVARD
10 Дней
На продажу
Многосемейный
$570,000
6 спален 2,612 кв.фт.
338 BOUNDARY BOULEVARD
9 BUNKER PLACE placeholder 9 BUNKER PLACE
11 Дней
На продажу
Дом
$419,000
3 спален 2 ванн 1,608 кв.фт.
9 BUNKER PLACE
1701 BEACH ROAD UNIT 202 placeholder 1701 BEACH ROAD UNIT 202
14 Дней
На продажу
Квартира
$550,000
2 спален 2 ванн 1,222 кв.фт.
1701 BEACH ROAD UNIT 202

The multiple listing information is provided by the Stellar MLS from a copyrighted compilation of listings. The compilation of listings and each individual listing are ©2026-present Stellar MLS. All Rights Reserved. The information provided is for consumers' personal, noncommercial use and may not be used for any purpose other than to identify prospective properties consumers may be interested in purchasing. All properties are subject to prior sale or withdrawal. All information provided is deemed reliable but is not guaranteed accurate, and should be independently verified. Listing courtesy of: MICHAEL SAUNDERS & COMPANY