Недвижимость
Ознакомьтесь с нашими объявлениями
Контакты
Расскажите нам о своих потребностях

23259 SAFARI AVENUE

Дом На продажу
$280,000

BTC: 3.07692308

ETH: 140.00000000

Новое
3 спален
2 ванн
1,958 кв.фт.
Est. Предполагаемый диапазон продаж: $0 - $0
$0

Обзор

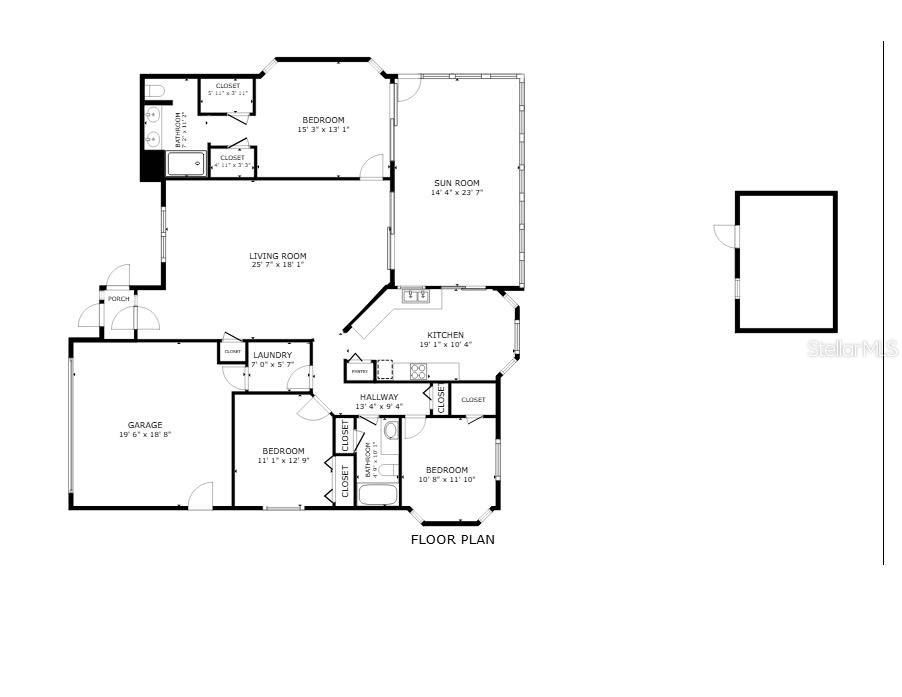
This modestly priced home offers the buyers one of the best neighborhoods in all of Port Charlotte – Section 15 (good neighbors, nicer houses, and central sewer). Be sure to check out the aerial views. Click the Tour 1 icon above for the NARRATED VIDEO VIRTUAL TOUR, not just the same repeating still photos! The screened front entry that allows for great cross-ventilation is just your start of many comfort items in this home. The cathedral ceilinged living room has a 12’ sliding glass door that opens onto the 15’X24’ Florida Room (air-conditioned when desired) which really add to the living space. Every homemaker will enjoy having a pantry closet in the kitchen and lots of room in the breakfast nook. That nook opens via a sliding glass door to the Florida Room, and the present owner used the Florida Room often for meals. The master bedroom features an 8’ sliding glass door to the Florida Room (Getting the idea about how open this floorplan is?). Its his/hers walk-in closets and a double sink vanity in the bathroom eliminate sharing – always a plus with the ladies. This comfortably sized bedroom does need new flooring. The deep sink and the clothes-hanging rod in the laundry room enhance the use of this space greatly. The garage has screening for the overhead door, a ceiling exhaust fan, and a pull-down ladder to the attic – things that a hobbyist should not have to do without. This property comes with a ONE YEAR HOME WARRANTY for the buyer. MUCH MORE INFO is attached – ask your agent for copies, especially the WARRANTY OUTLINE.

Локация

Факты и особенности

Тип:
Residential
Парковка:
Driveway / Oversized
Год постройки:
1991
Лот:
0.23 Акров
Отопление:
Central / Electric
Цена/кв.фут:
$143
Охлаждение:
Central Air
HOA:
Нет данных
Больше фактов и особенностей
  • Напольное покрытие

    • Carpet

    • Ceramic Tile

    Отопление

    • Central

    • Electric

    Охлаждение

    • Central Air

    Бытовая техника

    • Dishwasher

    • Dryer

    • Microwave

    • Range

    • Range Hood

    • Refrigerator

    • Washer

    Другие особенности интерьера

    • Cathedral Ceiling(s)

    • Ceiling Fan(s)

    • Eating Space In Kitchen

    • Split Bedroom

    • Walk-In Closet(s)

    Спальни и ванные комнаты

    • Спальни: 3

    • Полные ванные комнаты: 2

  • Парковка

    • Driveway

    • Oversized

    Имущество

    • Этажи: One

    • Особенности Экстерьера: Sliding Doors

    Лот

    • Лот: 0.23 Акров

    Другая Информация о Недвижимости

    • Номер Земельного Участка: 402201335003

    • Зонирование: RSF3.5

  • Тип и стиль

    • Тип недвижимости: Residential

    • Подтип недвижимости: Single Family Residence

  • Общественное благосостояние

    • Electricity Connected

    • Public

    • Sewer Connected

  • Другая финансовая информация

    • Годовая сумма налога: $1,864

  • Детали источника

    • MLS ID: C7518151

    Другие факты

    • Строительные материалы: Block / Stucco

    • Детали фундамента: Slab

    • Особенности прачечной: Inside / Laundry Room

    • Особенности лота: In County

    • Особенности двора и крыльца: Covered / Enclosed / Screened

    • Особенности окна: Blinds

    • Направленные лица: North

    • Другие структуры: Shed(s)

    • Мест в гараже: 2

    • Прикрепленный гараж: Да

    • Гараж: Да

    • Жилая площадь: 1958

    • Источник воды: Public

    • Размеры участка: 80 x 125

    • Название подразделения: PORT CHARLOTTE SEC 015

Похожие дома

2440 ELKCAM BOULEVARD placeholder 2440 ELKCAM BOULEVARD
Новое
На продажу
Дом
$259,000
2 спален 1 ванн 1,183 кв.фт.
2440 ELKCAM BOULEVARD
22486 OLEAN BOULEVARD placeholder 22486 OLEAN BOULEVARD
Новое
На продажу
Дом
$215,000
2 спален 2 ванн 1,217 кв.фт.
22486 OLEAN BOULEVARD
13412 SW PEMBROKE CIRCLE N placeholder 13412 SW PEMBROKE CIRCLE N
Новое
На продажу
Дом
$265,000
2 спален 2 ванн 1,449 кв.фт.
13412 SW PEMBROKE CIRCLE N
23077 HAMMOND AVENUE placeholder 23077 HAMMOND AVENUE
1 Дней
На продажу
Дом
$350,000
3 спален 2 ванн 1,818 кв.фт.
23077 HAMMOND AVENUE
25604 HERITAGE LAKE BOULEVARD UNIT 118 placeholder 25604 HERITAGE LAKE BOULEVARD UNIT 118
1 Дней
На продажу
Дом
$275,000
2 спален 2 ванн 1,306 кв.фт.
25604 HERITAGE LAKE BOULEVARD UNIT 118
22182 LARAMORE AVENUE placeholder 22182 LARAMORE AVENUE
1 Дней
На продажу
Дом
$210,000
3 спален 1 ванн 1,267 кв.фт.
22182 LARAMORE AVENUE
2100 KINGS HIGHWAY UNIT 200 placeholder 2100 KINGS HIGHWAY UNIT 200
1 Дней
На продажу
$269,000
2 спален 2 ванн 1,566 кв.фт.
2100 KINGS HIGHWAY UNIT 200
2061 ROYAL TERN CIRCLE placeholder 2061 ROYAL TERN CIRCLE
2 Дней
На продажу
Дом
$265,990
2 спален 2 ванн 1,503 кв.фт.
2061 ROYAL TERN CIRCLE

The multiple listing information is provided by the Stellar MLS from a copyrighted compilation of listings. The compilation of listings and each individual listing are ©2025-present Stellar MLS. All Rights Reserved. The information provided is for consumers' personal, noncommercial use and may not be used for any purpose other than to identify prospective properties consumers may be interested in purchasing. All properties are subject to prior sale or withdrawal. All information provided is deemed reliable but is not guaranteed accurate, and should be independently verified. Listing courtesy of: RE/MAX PALM REALTY