Недвижимость
Ознакомьтесь с нашими объявлениями
Контакты
Расскажите нам о своих потребностях

2421 29th, Fort Lauderdale, FL 33312

Дом В аренду
$6,000

BTC: 0.20000000

ETH: 3.00000000

/mo
4 Дней
3 спален
2 ванн
2,854 кв.фт.
Est. Предполагаемый диапазон продаж: $0 - $0
$0

Обзор

Welcome to this charming one-story, 3-bedroom pool home located in the hidden gem community of Riverland Woods. This beautifully maintained property offers a warm, inviting layout with spacious living areas and a bright, comfortable atmosphere throughout. The home features a large yard perfect for relaxing, gardening, or entertaining, along with a private pool that allows you to enjoy true Florida living. Ideally situated, this home is just minutes from the airport, close to shopping and dining, a short drive to downtown Fort Lauderdale, and conveniently near the beach. If you're looking for comfort, convenience, and a peaceful setting, this Riverland Woods home has it all.

Локация

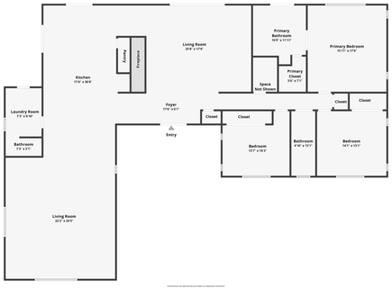
Факты и особенности

Тип:
Residential Lease
Парковка:
Нет данных
Год постройки:
1988
Лот:
365 Квадратных Футов
Отопление:
Нет данных
Цена/кв.фут:
$2
Охлаждение:
Нет данных
HOA:
Нет данных
Больше фактов и особенностей
  • Спальни и ванные комнаты

    • Спальни: 3

    • Ванные: 1

    • Полные ванные комнаты: 2

  • Имущество

    • Частный Бассейн: Да

    Лот

    • Лот: 365 Квадратных Футов

    Другая Информация о Недвижимости

    • Номер Земельного Участка: 504220340030

  • Тип и стиль

    • Тип недвижимости: Residential Lease

    • Подтип недвижимости: Single Family Residence

  • Детали источника

    • MLS ID: RX-11144513

    Другие факты

    • Мест в гараже: 2

    • Гараж: Да

    • Жилая площадь: 2854

    • Название подразделения: Riverland Woods

Похожие дома

2900 SW 16th St, Fort Lauderdale FL 33312 placeholder 2900 SW 16th St, Fort Lauderdale FL 33312
1 Дней
В аренду
Дом
$4,980 /mo
4 спален 3 ванн 1,194 кв.фт.
2900 SW 16th St, Fort Lauderdale FL 33312
2525 Gulfstream Ln # 2525, Fort Lauderdale FL 33312 placeholder 2525 Gulfstream Ln # 2525, Fort Lauderdale FL 33312
1 Дней
В аренду
Дом
$5,500 /mo
3 спален 2 ванн 1,572 кв.фт.
2525 Gulfstream Ln # 2525, Fort Lauderdale FL 33312
4681 SW 26th Ter # 0, Dania Beach FL 33312 placeholder 4681 SW 26th Ter # 0, Dania Beach FL 33312
2 Дней
В аренду
Дом
$4,700 /mo
3 спален 2 ванн 1,423 кв.фт.
4681 SW 26th Ter # 0, Dania Beach FL 33312
1402 SW 4th Ave, Fort Lauderdale FL 33315 placeholder 1402 SW 4th Ave, Fort Lauderdale FL 33315
4 Дней
В аренду
Таунхаус
$4,700 /mo
3 спален 3 ванн 2,105 кв.фт.
1402 SW 4th Ave, Fort Lauderdale FL 33315
4947 Whispering Way, Dania Beach FL 33312 placeholder 4947 Whispering Way, Dania Beach FL 33312
-$200 (2025/12/04)
В аренду
Дом
$5,800 /mo
3 спален 3 ванн 2,187 кв.фт.
4947 Whispering Way, Dania Beach FL 33312
3486 SW 51st St # 3486, Hollywood FL 33312 placeholder 3486 SW 51st St # 3486, Hollywood FL 33312
6 Дней
В аренду
Дом
$5,300 /mo
3 спален 2 ванн 2,015 кв.фт.
3486 SW 51st St # 3486, Hollywood FL 33312
3282 SW 44th St, Dania Beach FL 33312 placeholder 3282 SW 44th St, Dania Beach FL 33312
10 Дней
В аренду
Квартира
$4,500 /mo
4 спален 2 ванн 2,178 кв.фт.
3282 SW 44th St, Dania Beach FL 33312
2191 SW 27th Ln, Fort Lauderdale FL 33312 placeholder 2191 SW 27th Ln, Fort Lauderdale FL 33312
12 Дней
В аренду
Дом
$6,500 /mo
5 спален 3 ванн 2,390 кв.фт.
2191 SW 27th Ln, Fort Lauderdale FL 33312

The multiple listing information is provided by the Beaches MLS from a copyrighted compilation of listings. The compilation of listings and each individual listing are ©2025-present Beaches MLS. All Rights Reserved. The information provided is for consumers' personal, noncommercial use and may not be used for any purpose other than to identify prospective properties consumers may be interested in purchasing. All properties are subject to prior sale or withdrawal. All information provided is deemed reliable but is not guaranteed accurate, and should be independently verified. Listing courtesy of: Realty Advisors International