Недвижимость
Ознакомьтесь с нашими объявлениями
Контакты
Расскажите нам о своих потребностях

2806 POLSON DRIVE

Дом На продажу
$365,000

BTC: 12.16666667

ETH: 182.50000000

Новое
3 спален
2 ванн
2,560 кв.фт.
Est. Предполагаемый диапазон продаж: $0 - $0
$0

Обзор

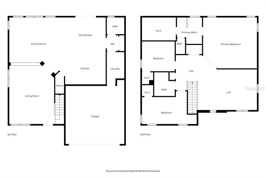
Beautiful and Spacious House in the desirable community of Hammock Trails. This beautiful house features 3 bedrooms (all upstairs) and 2.5 bathrooms (half bathroom in first floor). Spacious living space throughout the first floor, lots of natural light right when you walk-in you will feel like home. Great and large kitchen with family room combination making it perfect for family gatherings and entertainment. Laundry room in the first floor. Large fenced backyard. Spacious master bedroom with a huge walk in closet and master bathroom features tub, shower stall and his and her sinks. Secondary and Third bedroom features spacious closet and a large loft upstairs. Near major roads, highways, shopping plazas, restaurants and much more.

Локация

Факты и особенности

Тип:
Residential
Парковка:
Нет данных
Год постройки:
2008
Лот:
0.13 Акров
Отопление:
Central
Цена/кв.фут:
$143
Охлаждение:
Central Air
HOA:
$201
Больше фактов и особенностей
  • Напольное покрытие

    • Carpet

    • Ceramic Tile

    Отопление

    • Central

    Охлаждение

    • Central Air

    Бытовая техника

    • Built-In Oven

    • Cooktop

    • Dishwasher

    • Microwave

    • Refrigerator

    Другие особенности интерьера

    • Kitchen/Family Room Combo

    • Walk-In Closet(s)

    Спальни и ванные комнаты

    • Спальни: 3

    • Ванные: 1

    • Полные ванные комнаты: 2

  • Имущество

    • Этажи: Two

    • Особенности Экстерьера: Sidewalk / Sliding Doors

    Лот

    • Лот: 0.13 Акров

    Другая Информация о Недвижимости

    • Номер Земельного Участка: 242628294900010480

    • Зонирование: PD

  • Тип и стиль

    • Тип недвижимости: Residential

    • Подтип недвижимости: Single Family Residence

  • Общественное благосостояние

    • Electricity Available

  • Другая финансовая информация

    • HOA: $201

    • Частота HOA: Quarterly

    • Годовая сумма налога: $4,876

  • Детали источника

    • MLS ID: S5139898

    Другие факты

    • Строительные материалы: Stucco

    • Детали фундамента: Block

    • Особенности прачечной: Inside / Laundry Room

    • Направленные лица: East

    • Мест в гараже: 2

    • Прикрепленный гараж: Да

    • Гараж: Да

    • Жилая площадь: 2560

    • Источник воды: Public

    • Размеры участка: 50 x 110

    • Название подразделения: HAMMOCK TRAILS

Похожие дома

220 ELLSWORTH DRIVE placeholder 220 ELLSWORTH DRIVE
1 Дней
На продажу
$269,900
3 спален 2 ванн 1,334 кв.фт.
220 ELLSWORTH DRIVE
4850 Ashurst St, Kissimmee FL 34758 placeholder 4850 Ashurst St, Kissimmee FL 34758
2 Дней
На продажу
Дом
$334,900
3 спален 2 ванн 1,555 кв.фт.
4850 Ashurst St, Kissimmee FL 34758
1840 ANCESTRY TRAIL placeholder 1840 ANCESTRY TRAIL
2 Дней
На продажу
Дом
$455,000
4 спален 3 ванн 2,610 кв.фт.
1840 ANCESTRY TRAIL
4710 SEELEY STREET placeholder 4710 SEELEY STREET
3 Дней
На продажу
Дом
$360,000
4 спален 2 ванн 1,972 кв.фт.
4710 SEELEY STREET
4903 ROCKVALE DRIVE placeholder 4903 ROCKVALE DRIVE
3 Дней
На продажу
Дом
$445,000
5 спален 3 ванн 2,391 кв.фт.
4903 ROCKVALE DRIVE
2931 SAINT CLAIR STREET placeholder 2931 SAINT CLAIR STREET
3 Дней
На продажу
Дом
$335,000
4 спален 2 ванн 2,041 кв.фт.
2931 SAINT CLAIR STREET
3520 BEAU ROAD placeholder 3520 BEAU ROAD
3 Дней
На продажу
Таунхаус
$296,468
3 спален 2 ванн 2,043 кв.фт.
3520 BEAU ROAD
2938 FAIRWEATHER WAY placeholder 2938 FAIRWEATHER WAY
4 Дней
На продажу
Дом
$300,000
4 спален 2 ванн 2,207 кв.фт.
2938 FAIRWEATHER WAY

The multiple listing information is provided by the Stellar MLS from a copyrighted compilation of listings. The compilation of listings and each individual listing are ©2025-present Stellar MLS. All Rights Reserved. The information provided is for consumers' personal, noncommercial use and may not be used for any purpose other than to identify prospective properties consumers may be interested in purchasing. All properties are subject to prior sale or withdrawal. All information provided is deemed reliable but is not guaranteed accurate, and should be independently verified. Listing courtesy of: LPT REALTY, LLC