Недвижимость
Ознакомьтесь с нашими объявлениями
Контакты
Расскажите нам о своих потребностях

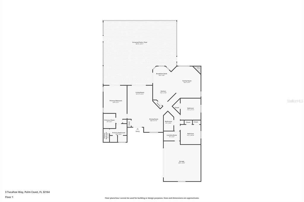
3 TUCAHOE WAY

Дом Под контрактом
$419,000

BTC: 13.96666667

ETH: 209.50000000

17 Дней
3 спален
2 ванн
1,923 кв.фт.
Est. Предполагаемый диапазон продаж: $0 - $0
$0

Обзор

Under contract-accepting backup offers. One or more photo(s) has been virtually staged. This home lives larger than its square footage suggests, welcoming you with an open-concept living and dining area, a well-appointed kitchen with a casual dining nook, and a large family room with fireplace—ideal for relaxed, everyday living and entertaining. Kitchen features high-end cabinets, granite countertop and back splash, and stainless-steel appliances. This split floor plan offers privacy and convenience, with the primary suite located on one side of the home and two additional bedrooms positioned on the opposite end. The living areas, kitchen, and primary bedroom all offer beautiful views and direct access to the covered lanai and screened-in pool through sliding glass doors. The primary suite features a spacious walk-in closet and a convenient linen closet. The oversized primary bath includes a whirlpool tub and a separate shower for added comfort and convenience. The two guest bedrooms, located on the opposite side of the home, share a full bathroom with a convenient shower/tub combination. Situated on a spacious 14,460-square-foot corner lot, this home is nestled in the sought-after Hamptons neighborhood which is surrounded by a lush living wall that offers natural privacy. The community boasts tree-lined streets, well-lit sidewalks, underground utilities, and well-maintained homes and lawns—creating a serene and welcoming environment. The neighborhood is convenient to schools, shopping, dining, medical facilities including a newly opened hospital and major highways. New HVAC-Dec 2023 – remaining 10-year warranty conveys to new owners. Schedule your private showing of 3 Tucahoe Way today!

Локация

Факты и особенности

Тип:
Residential
Парковка:
Driveway / Garage Faces Side
Год постройки:
1995
Лот:
0.33 Акров
Отопление:
Central / Heat Pump
Цена/кв.фут:
$218
Охлаждение:
Central Air
HOA:
$111
Больше фактов и особенностей
  • Напольное покрытие

    • Carpet

    • Tile

    Отопление

    • Central

    • Heat Pump

    Охлаждение

    • Central Air

    Бытовая техника

    • Dishwasher

    • Dryer

    • Microwave

    • Range

    • Refrigerator

    • Washer

    Другие особенности интерьера

    • Ceiling Fan(s)

    • Eating Space In Kitchen

    • High Ceilings

    • Kitchen/Family Room Combo

    • Solid Surface Counters

    • Solid Wood Cabinets

    • Split Bedroom

    • Walk-In Closet(s)

    Спальни и ванные комнаты

    • Спальни: 3

    • Полные ванные комнаты: 2

  • Парковка

    • Driveway

    • Garage Faces Side

    Имущество

    • Этажи: One

    • Частный Бассейн: Да

    • Особенности Экстерьера: Lighting / Private Mailbox / Rain Gutters / Sliding Doors

    Лот

    • Лот: 0.33 Акров

    Другая Информация о Недвижимости

    • Номер Земельного Участка: 2411303020000000250

    • Зонирование: SFR-2

  • Тип и стиль

    • Тип недвижимости: Residential

    • Подтип недвижимости: Single Family Residence

  • Общественное благосостояние

    • Cable Available

    • Electricity Connected

    • Public

    • Sewer Connected

    • Water Connected

    Озеленение

    • Pool

  • Другая финансовая информация

    • HOA: $111

    • Частота HOA: Monthly

    • Годовая сумма налога: $2,238

  • Детали источника

    • MLS ID: FC313960

    Другие факты

    • Строительные материалы: Block / Stucco

    • Детали фундамента: Slab

    • Особенности камина: Family Room / Gas / Insert

    • Особенности прачечной: Electric Dryer Hookup / Inside / Laundry Room / Washer Hookup

    • Особенности двора и крыльца: Covered / Patio / Screened

    • Особенности бассейна: Heated / In Ground / Salt Water / Screen Enclosure / Solar Heat

    • Направленные лица: Northeast

    • Камин: Да

    • Мест в гараже: 2

    • Прикрепленный гараж: Да

    • Гараж: Да

    • Жилая площадь: 1923

    • Источник воды: Public

    • Название подразделения: HAMPTONS SUB

Похожие дома

18 BRUSHWOOD LANE placeholder 18 BRUSHWOOD LANE
Новое
Под контрактом
Дом
$379,400
4 спален 3 ванн 2,117 кв.фт.
18 BRUSHWOOD LANE
195 WELLINGTON DRIVE placeholder 195 WELLINGTON DRIVE
1 Дней
Под контрактом
Дом
$400,000
3 спален 2 ванн 2,030 кв.фт.
195 WELLINGTON DRIVE
78 BREEZE HILL LANE placeholder 78 BREEZE HILL LANE
2 Дней
Под контрактом
Дом
$339,900
3 спален 2 ванн 1,260 кв.фт.
78 BREEZE HILL LANE
20 COUNTRY CLUB HARBOR CIRCLE placeholder 20 COUNTRY CLUB HARBOR CIRCLE
2 Дней
Под контрактом
Дом
$399,990
3 спален 3 ванн 2,057 кв.фт.
20 COUNTRY CLUB HARBOR CIRCLE
13 PRINCE PATRIC LANE UNIT 55 placeholder 13 PRINCE PATRIC LANE UNIT 55
3 Дней
Под контрактом
Дом
$304,990
3 спален 2 ванн 1,363 кв.фт.
13 PRINCE PATRIC LANE UNIT 55
10 WESTGATE LANE placeholder 10 WESTGATE LANE
5 Дней
Под контрактом
Дом
$359,900
3 спален 2 ванн 2,257 кв.фт.
10 WESTGATE LANE
22 PRINCE PATRIC LANE placeholder 22 PRINCE PATRIC LANE
5 Дней
Под контрактом
Дом
$350,000
3 спален 3 ванн 2,042 кв.фт.
22 PRINCE PATRIC LANE
16 WOODLYN LANE placeholder 16 WOODLYN LANE
7 Дней
Под контрактом
Дом
$299,875
3 спален 2 ванн 2,034 кв.фт.
16 WOODLYN LANE

The multiple listing information is provided by the Stellar MLS from a copyrighted compilation of listings. The compilation of listings and each individual listing are ©2025-present Stellar MLS. All Rights Reserved. The information provided is for consumers' personal, noncommercial use and may not be used for any purpose other than to identify prospective properties consumers may be interested in purchasing. All properties are subject to prior sale or withdrawal. All information provided is deemed reliable but is not guaranteed accurate, and should be independently verified. Listing courtesy of: TAKE ACTION PROPERTIES, LLC