Недвижимость
Ознакомьтесь с нашими объявлениями
Контакты
Расскажите нам о своих потребностях

32135 GODDARD DRIVE

Дом Под контрактом
$370,000

BTC: 5.28571429

ETH: 180.04866180

7 Дней
3 спален
2 ванн
1,754 кв.фт.
Est. Предполагаемый диапазон продаж: $0 - $0
$0

Обзор

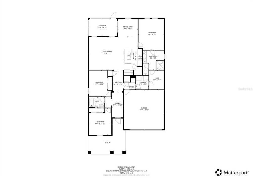
Under contract-accepting backup offers. Welcome home to 32135 Goddard Drive. This beautifully maintained 3-bedroom, 2-bath home offers comfort, style, and thoughtful upgrades throughout. A spacious tiled FRONT PORCH creates the perfect spot to relax and greet neighbors, setting the tone for the warm, welcoming feel inside. The kitchen is both functional and stylish, featuring GRANITE countertops, a large center island, pantry, touchless faucet, and pull-out shelving for added convenience. The primary suite is a private retreat with a custom walk-in closet, dual vanities, and a large walk-in shower. SLIDING GLASS DOORS lead to a large screened LANAI, ideal for enjoying Florida’s indoor-outdoor lifestyle. Additional features include NEW CARPET in bedrooms, landscaping, CROWN MOLDING, ceiling fans, rain gutters, water softener with reverse osmosis, and HYBRID water heater. Union Park residents enjoy exceptional amenities including walking trails, playgrounds, two resort-style pools, clubhouse, fitness center, dog park, sports courts, and a splash pad. This home truly has it all—don’t miss the opportunity to make it yours! https://my.matterport.com/show/?m=2vXqKkp4ECb&brand=0&mls=1&

Локация

Факты и особенности

Тип:
Residential
Парковка:
Нет данных
Год постройки:
2018
Лот:
0.14 Акров
Отопление:
Central
Цена/кв.фут:
$211
Охлаждение:
Central Air
HOA:
Нет данных
Больше фактов и особенностей
  • Напольное покрытие

    • Carpet

    • Ceramic Tile

    Отопление

    • Central

    Охлаждение

    • Central Air

    Бытовая техника

    • Cooktop

    • Dishwasher

    • Electric Water Heater

    • Microwave

    • Range

    • Refrigerator

    • Water Softener

    Другие особенности интерьера

    • Ceiling Fan(s)

    • Crown Molding

    • Eating Space In Kitchen

    • High Ceilings

    • Kitchen/Family Room Combo

    • Open Floorplan

    • Primary Bedroom Main Floor

    • Solid Wood Cabinets

    • Stone Counters

    • Thermostat

    • Tray Ceiling(s)

    • Walk-In Closet(s)

    • Window Treatments

    Спальни и ванные комнаты

    • Спальни: 3

    • Полные ванные комнаты: 2

  • Имущество

    • Этажи: One

    • Особенности Экстерьера: Irrigation System / Sidewalk / Sliding Doors

    Лот

    • Лот: 0.14 Акров

    Другая Информация о Недвижимости

    • Номер Земельного Участка: 202635009.0000.00141.0

    • Зонирование: MPUD

  • Тип и стиль

    • Тип недвижимости: Residential

    • Подтип недвижимости: Single Family Residence

  • Общественное благосостояние

    • Cable Connected

    • Electricity Connected

    • Sewer Connected

    • Street Lights

    • Water Connected

  • Другая финансовая информация

    • Годовая сумма налога: $5,506

  • Детали источника

    • MLS ID: TB8439362

    Другие факты

    • Строительные материалы: Stucco

    • Детали фундамента: Slab

    • Особенности прачечной: Inside / Laundry Room

    • Направленные лица: East

    • Мест в гараже: 2

    • Прикрепленный гараж: Да

    • Гараж: Да

    • Жилая площадь: 1754

    • Источник воды: Public

    • Название подразделения: UNION PARK PH 5C & 5D

Похожие дома

32454 WEATHERED OAK DRIVE placeholder 32454 WEATHERED OAK DRIVE
Новое
Под контрактом
Дом
$437,990
5 спален 3 ванн 2,453 кв.фт.
32454 WEATHERED OAK DRIVE
32463 WEATHERED OAK DRIVE placeholder 32463 WEATHERED OAK DRIVE
Новое
Под контрактом
Дом
$422,990
4 спален 2 ванн 2,305 кв.фт.
32463 WEATHERED OAK DRIVE
3551 OAKWOOD DRIVE placeholder 3551 OAKWOOD DRIVE
5 Дней
Под контрактом
Дом
$369,900
3 спален 2 ванн 1,512 кв.фт.
3551 OAKWOOD DRIVE
32367 EVENING GROVE COURT placeholder 32367 EVENING GROVE COURT
10 Дней
Под контрактом
Дом
$446,990
4 спален 2 ванн 2,305 кв.фт.
32367 EVENING GROVE COURT
32460 WEATHERED OAK DRIVE placeholder 32460 WEATHERED OAK DRIVE
13 Дней
Под контрактом
Дом
$436,990
5 спален 3 ванн 2,453 кв.фт.
32460 WEATHERED OAK DRIVE
32469 WEATHERED OAK DRIVE placeholder 32469 WEATHERED OAK DRIVE
16 Дней
Под контрактом
Дом
$435,990
5 спален 3 ванн 2,453 кв.фт.
32469 WEATHERED OAK DRIVE
31225 CLARIDGE PLACE placeholder 31225 CLARIDGE PLACE
+$30K (2025/12/26)
Под контрактом
Таунхаус
$275,000
4 спален 3 ванн 1,612 кв.фт.
31225 CLARIDGE PLACE
32508 MIDSUMMER NIGHT LANE placeholder 32508 MIDSUMMER NIGHT LANE
-$14K (2025/11/25)
Под контрактом
Таунхаус
$299,990
3 спален 2 ванн 1,464 кв.фт.
32508 MIDSUMMER NIGHT LANE

The multiple listing information is provided by the Stellar MLS from a copyrighted compilation of listings. The compilation of listings and each individual listing are ©2026-present Stellar MLS. All Rights Reserved. The information provided is for consumers' personal, noncommercial use and may not be used for any purpose other than to identify prospective properties consumers may be interested in purchasing. All properties are subject to prior sale or withdrawal. All information provided is deemed reliable but is not guaranteed accurate, and should be independently verified. Listing courtesy of: BHHS FLORIDA PROPERTIES GROUP