Недвижимость
Ознакомьтесь с нашими объявлениями
Контакты
Расскажите нам о своих потребностях

3426 CHANNELSIDE COURT

Дом На продажу
$1,799,999

BTC: 26.71931067

ETH: 937.49947917

-$99K (2025/11/22)
107 Дней
Набережная
4 спален
4 ванн
3,488 кв.фт.
Est. Предполагаемый диапазон продаж: $0 - $0
$0

Обзор

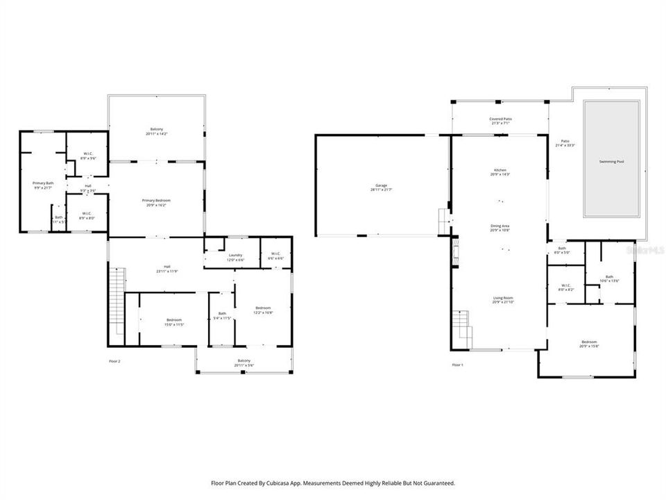
Price just adjusted by 100K! Welcome to 3426 Channelside in Safety Harbor and this exceptional brand-new custom residence that was just completed and ready to move into! Located mins from Mease Hospital. Perfectly situated on a spacious 0.25-acre lot on a tranquil canal in one of Tampa Bay’s most desirable towns—Safety Harbor. Offering over 3,448 sq. ft. of living space with 4 bedrooms, 4 full baths and 3 car garage with more than 5,000 sq. ft. under roof, this home was designed with both elegance and functionality in mind. Built high and dry to the latest building and safety codes, it features energy-efficient hurricane-rated windows, sliders, and doors throughout. The thoughtful floor plan includes two expansive primary suites, 2 additional bedrooms, and four full bathrooms across two levels, creating an ideal setting for multi-generational living or those seeking a luxurious retreat. As you arrive, you’ll be captivated by the home’s impressive curb appeal—complete with a large driveway accented by California design stone inlay, lush landscaping, and a three-car garage. The travertine walkway leads to large front porch and double front doors beneath a striking tongue-and-groove wood ceiling, complemented by cable railing systems and travertine porches that hint at the craftsmanship inside. Step into the open-concept great room where soaring beam-accented ceilings and a stacked-stone electric fireplace create a stunning focal point. Engineered hardwood flooring flows seamlessly into the chef’s kitchen, which showcases a massive waterfall quartzite island with backlit LED accents, abundant custom cabinetry, designer tile backsplash, and top-of-the-line GE Café refrigerator, a built-in oven, microwave, electric cooktop with pot filler, and custom vent hood. The adjoining dining area opens through sliders to the pool deck, covered porch area and backyard, creating effortless indoor-outdoor living. On the main level, one of two primary suites offers a serene escape with a spacious walk-in closet, spa-like en suite featuring double vanities, designer tile, oversized shower, water closet, and a private laundry area with full size washer and dryer hookups. A full pool bath with deck access adds convenience. Upstairs, a stylish loft leads to the second primary suite, complete with sliders to a private deck overlooking the canal, two walk-in closets with custom cabinetry, and a luxurious en suite with double vanities, designer finishes, freestanding tub, oversized European-tiled shower with dual showerheads, and a smart toilet. Two additional upstairs bedrooms share a well-appointed bathroom and each enjoy walk-in closets, ceiling fans, and access to a front balcony. Outdoor living is equally impressive with a sparkling pool and expansive travertine deck, ideal for entertaining or quiet relaxation. This prime location is just minutes from Mease Countryside Hospital, top-rated schools, waterfront parks, Safety Harbor Resort & Spa, vibrant downtown shops and restaurants, and only 20 minutes to Honeymoon Island and St. Pete–Clearwater Airport, with Tampa International just 25 minutes away. This extraordinary property offers peace of mind, modern efficiency, and a one-of-a-kind lifestyle on arguably the best lot in the neighborhood. Don’t miss the opportunity to own a luxury brand new Safety Harbor home that truly has it all—schedule your private showing today!

Локация

Факты и особенности

Тип:
Residential
Парковка:
Driveway
Год постройки:
2025
Лот:
0.25 Акров
Отопление:
Central / Electric
Цена/кв.фут:
$516
Охлаждение:
Central Air
HOA:
$200
Больше фактов и особенностей
  • Напольное покрытие

    • Tile

    • Hardwood

    Отопление

    • Central

    • Electric

    Охлаждение

    • Central Air

    Бытовая техника

    • Built-In Oven

    • Cooktop

    • Dishwasher

    • Electric Water Heater

    • Microwave

    • Range

    • Range Hood

    • Refrigerator

    Другие особенности интерьера

    • Ceiling Fan(s)

    • Open Floorplan

    • Primary Bedroom Main Floor

    • PrimaryBedroom Upstairs

    • Split Bedroom

    • Stone Counters

    • Walk-In Closet(s)

    Спальни и ванные комнаты

    • Спальни: 4

    • Полные ванные комнаты: 4

  • Парковка

    • Driveway

    Имущество

    • Этажи: Two

    • Частный Бассейн: Да

    • Особенности Экстерьера: Balcony / Rain Gutters / Sidewalk / Sliding Doors

    Лот

    • Лот: 0.25 Акров

    Другая Информация о Недвижимости

    • Номер Земельного Участка: 162816248120010010

  • Тип и стиль

    • Тип недвижимости: Residential

    • Подтип недвижимости: Single Family Residence

  • Общественное благосостояние

    • Electricity Connected

    • Public

    • Street Lights

    • Underground Utilities

    • Water Connected

  • Другая финансовая информация

    • HOA: $200

    • Частота HOA: Monthly

    • Годовая сумма налога: $2,539

  • Детали источника

    • MLS ID: TB8430033

    Другие факты

    • Строительные материалы: Block / Stone / Stucco / Wood Frame

    • Детали фундамента: Slab

    • Особенности камина: Electric / Family Room

    • Особенности прачечной: Inside / Laundry Room

    • Особенности лота: Sidewalk

    • Особенности двора и крыльца: Covered / Front Porch / Patio / Rear Porch

    • Особенности бассейна: Gunite / In Ground / Lighting / Outside Bath Access

    • Направленные лица: West

    • Берег: Да

    • Камин: Да

    • Мест в гараже: 3

    • Прикрепленный гараж: Да

    • Гараж: Да

    • Жилая площадь: 3488

    • Источник воды: Public

    • Название подразделения: EDGE WATER RESERVE

Похожие дома

3684 TAMPA ROAD UNIT 101 placeholder 3684 TAMPA ROAD UNIT 101
37 Дней
На продажу
Коммерческий
$1,795,000
0 room(s) 3,850 кв.фт.
3684 TAMPA ROAD UNIT 101
2151 DIAMOND COURT placeholder 2151 DIAMOND COURT
-$75K (2025/12/19)
На продажу
Дом
$1,425,000
4 спален 3 ванн 3,850 кв.фт.
2151 DIAMOND COURT
2729 STATE ROAD 580 placeholder 2729 STATE ROAD 580
77 Дней
На продажу
Коммерческий
$1,300,000
0 room(s) 3,968 кв.фт.
2729 STATE ROAD 580
3110 PHILIPPE PARKWAY placeholder 3110 PHILIPPE PARKWAY
-$43K (2025/11/12)
На продажу
Коммерческий
$2,047,000
0 room(s) 3,106 кв.фт.
3110 PHILIPPE PARKWAY
325 MEARS BOULEVARD UNIT 100 placeholder 325 MEARS BOULEVARD UNIT 100
-$110K (2025/12/29)
На продажу
Коммерческий
$1,750,000
0 room(s) 6,100 кв.фт.
325 MEARS BOULEVARD UNIT 100
316 SHORE DRIVE E placeholder 316 SHORE DRIVE E
-$100K (2025/12/19)
На продажу
Дом
$1,475,000
4 спален 3 ванн 2,496 кв.фт.
316 SHORE DRIVE E
3420 CHANNELSIDE COURT placeholder 3420 CHANNELSIDE COURT
233 Дней
На продажу
Дом
$2,035,000
5 спален 4 ванн 3,890 кв.фт.
3420 CHANNELSIDE COURT
3484 SHORE DRIVE placeholder 3484 SHORE DRIVE
-$24K (2025/09/24)
На продажу
Дом
$1,975,000
4 спален 3 ванн 3,415 кв.фт.
3484 SHORE DRIVE

The multiple listing information is provided by the Stellar MLS from a copyrighted compilation of listings. The compilation of listings and each individual listing are ©2026-present Stellar MLS. All Rights Reserved. The information provided is for consumers' personal, noncommercial use and may not be used for any purpose other than to identify prospective properties consumers may be interested in purchasing. All properties are subject to prior sale or withdrawal. All information provided is deemed reliable but is not guaranteed accurate, and should be independently verified. Listing courtesy of: EXP REALTY