Недвижимость
Ознакомьтесь с нашими объявлениями
Контакты
Расскажите нам о своих потребностях

36 BASS LAKE DRIVE

Дом На продажу
$475,000

BTC: 7.05093312

ETH: 247.39583333

20 Дней
Набережная
4 спален
2 ванн
2,240 кв.фт.
Est. Предполагаемый диапазон продаж: $0 - $0
$0

Обзор

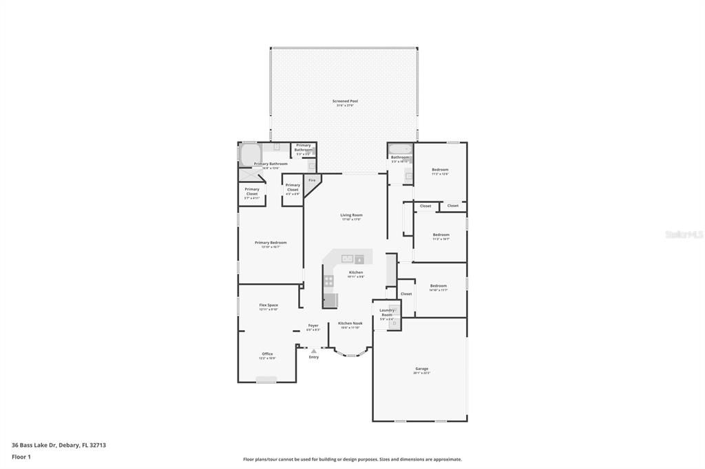
Welcome to 36 Bass Lake, a beautifully maintained 4-bedroom, 2-bath brick POOL home perfectly situated on an oversized 0.43-acre corner lot with LAKE VIEWS and LOW HOA in the very desirable subdivision of Woodbound Lakes. From the moment you arrive, the new circular driveway, side-entry garage, lush landscaping, and professional outdoor lighting set the tone for this exceptional home. Inside, you’ll find a FRESHLY PAINTED home with high ceilings, elegant crown molding, recessed lighting, and engineered bamboo wood flooring throughout the main living areas and bedrooms. The living room is both inviting and impressive, featuring a gas fireplace and expansive sliding glass doors that fully open, seamlessly blending indoor and outdoor living while showcasing the lake view. The kitchen is thoughtfully designed with quartz countertops, a new backsplash, soft-close cabinetry with pull-out drawers, new microwave and dishwasher, tile flooring, and a cozy breakfast nook.The oversized primary suite offers his-and-hers closets, his and hers vanities, a garden tub, and a separate shower. Additional highlights include granite countertops in the guest bathroom, a huge linen and storage closet, and plantation shutters through main areas of the home. Step outside to your screened-in pool with lake views, complete with a new pool pump, and gutters. Major upgrades include BRAND NEW Renewal by Anderson windows, Water Heater (2024), Roof (2019) and NEW attic insulation, adding both comfort and efficiency. This home offers the perfect blend of space, upgrades, and peaceful lakefront living all in a great location in DeBary. Schedule your private tour today. This home may be under audio or visual surveillance.

Локация

Факты и особенности

Тип:
Residential
Парковка:
Garage Faces Rear / Garage Faces Side
Год постройки:
1996
Лот:
0.43 Акров
Отопление:
Central / Electric
Цена/кв.фут:
$212
Охлаждение:
Central Air
HOA:
$135
Больше фактов и особенностей
  • Напольное покрытие

    • Bamboo

    • Ceramic Tile

    Отопление

    • Central

    • Electric

    Охлаждение

    • Central Air

    Бытовая техника

    • Dishwasher

    • Disposal

    • Electric Water Heater

    • Range

    Другие особенности интерьера

    • Ceiling Fan(s)

    • Crown Molding

    • Eating Space In Kitchen

    • High Ceilings

    • Kitchen/Family Room Combo

    • Open Floorplan

    • Primary Bedroom Main Floor

    • Smart Home

    • Split Bedroom

    • Tray Ceiling(s)

    Спальни и ванные комнаты

    • Спальни: 4

    • Полные ванные комнаты: 2

  • Парковка

    • Garage Faces Rear

    • Garage Faces Side

    Имущество

    • Этажи: One

    • Частный Бассейн: Да

    • Особенности Экстерьера: Irrigation System / Private Mailbox / Rain Gutters

    Лот

    • Лот: 0.43 Акров

    Другая Информация о Недвижимости

    • Номер Земельного Участка: 35183002000530

    • Зонирование: R4

  • Тип и стиль

    • Тип недвижимости: Residential

    • Подтип недвижимости: Single Family Residence

  • Общественное благосостояние

    • Public

  • Другая финансовая информация

    • HOA: $135

    • Частота HOA: Annually

    • Годовая сумма налога: $2,666

  • Детали источника

    • MLS ID: V4946371

    Другие факты

    • Строительные материалы: Brick / Stucco

    • Детали фундамента: Slab

    • Особенности камина: Family Room / Gas

    • Особенности прачечной: Laundry Room

    • Особенности лота: In County

    • Особенности бассейна: Child Safety Fence / In Ground / Outside Bath Access / Screen Enclosure

    • Особенности окна: Shutters

    • Направленные лица: East

    • Берег: Да

    • Камин: Да

    • Название водоема: BASS LAKE

    • Мест в гараже: 2

    • Прикрепленный гараж: Да

    • Гараж: Да

    • Жилая площадь: 2240

    • Источник воды: Public

    • Название подразделения: WOODBOUND LAKES SUB

Похожие дома

386 HAVERSHAM ROAD placeholder 386 HAVERSHAM ROAD
6 Дней
На продажу
Дом
$480,000
5 спален 2 ванн 2,662 кв.фт.
386 HAVERSHAM ROAD
24 PLANTATION ROAD placeholder 24 PLANTATION ROAD
6 Дней
На продажу
Дом
$399,500
3 спален 2 ванн 1,570 кв.фт.
24 PLANTATION ROAD
961 MILLENBECK AVENUE placeholder 961 MILLENBECK AVENUE
8 Дней
На продажу
Дом
$355,000
4 спален 2 ванн 1,666 кв.фт.
961 MILLENBECK AVENUE
24 MONROE AVENUE placeholder 24 MONROE AVENUE
10 Дней
На продажу
Дом
$332,900
3 спален 2 ванн 1,370 кв.фт.
24 MONROE AVENUE
808 BAYLOR DRIVE placeholder 808 BAYLOR DRIVE
20 Дней
На продажу
Дом
$360,000
4 спален 2 ванн 1,828 кв.фт.
808 BAYLOR DRIVE
439 FOXHILL DRIVE placeholder 439 FOXHILL DRIVE
22 Дней
На продажу
Дом
$410,000
3 спален 2 ванн 1,901 кв.фт.
439 FOXHILL DRIVE
390 FOXHILL DRIVE placeholder 390 FOXHILL DRIVE
27 Дней
На продажу
Дом
$375,000
3 спален 2 ванн 1,688 кв.фт.
390 FOXHILL DRIVE
551 ORIENT AVENUE placeholder 551 ORIENT AVENUE
+$5K (2025/12/10)
На продажу
Дом
$361,865
3 спален 2 ванн 1,639 кв.фт.
551 ORIENT AVENUE

The multiple listing information is provided by the Stellar MLS from a copyrighted compilation of listings. The compilation of listings and each individual listing are ©2026-present Stellar MLS. All Rights Reserved. The information provided is for consumers' personal, noncommercial use and may not be used for any purpose other than to identify prospective properties consumers may be interested in purchasing. All properties are subject to prior sale or withdrawal. All information provided is deemed reliable but is not guaranteed accurate, and should be independently verified. Listing courtesy of: LIVELY REAL ESTATE