Недвижимость
Ознакомьтесь с нашими объявлениями
Контакты
Расскажите нам о своих потребностях

3614 NIGHT STAR TERRACE

Дом На продажу
$482,397

BTC: 16.07990000

ETH: 241.19850000

Новое
4 спален
3 ванн
2,397 кв.фт.
Est. Предполагаемый диапазон продаж: $0 - $0
$0

Обзор

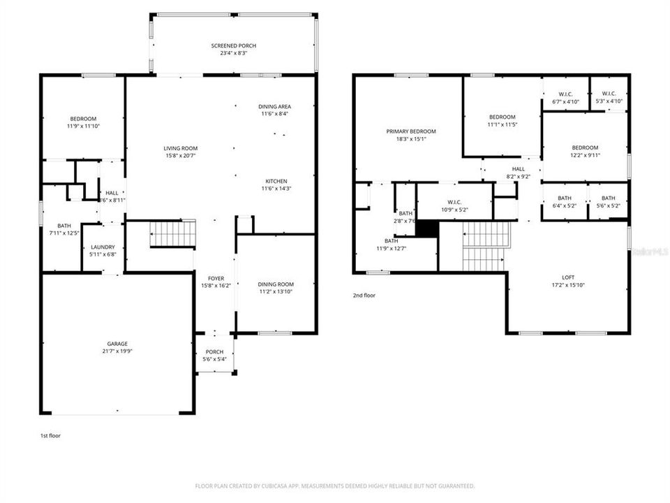
One or more photo(s) has been virtually staged. Move Over Lakewood Ranch—Rye Ranch Has Arrived with Unbeatable Pricing!Welcome to an exciting, fast-growing community offering exceptional value that won’t last once the word gets out. Ideally located near abundant shopping, dining, and entertainment, and directly across the street from highly rated schools—this home is perfectly positioned for both convenience and lifestyle. This spacious Executive Series Amalfi floor plan features a thoughtfully designed two-story layout. The first floor offers an open-concept living space with a bright breakfast nook, modern kitchen, and expansive Great Room—all flowing seamlessly to the impressive covered, screened-in lanai for true indoor/outdoor living while overlooking the lake. A private secondary bedroom on the main level is perfect for guests, along with a formal dining room that can easily flex as a home office, sitting room, or additional living space. Upstairs, you’ll find three additional bedrooms, including a generous owner’s suite designed for comfort and relaxation, plus a versatile bonus room ideal for a media room, playroom, or second office. Enjoy low-maintenance living with Rye Ranch HOA fees covering lawn care, irrigation, and amenities. The community will feature three shared amenity centers, including a resort-style pool, splash pad, clubhouse, pickleball courts, fire pits, a tot lot, e-bike rentals, and more—all supported by an activities director known for creating fun, connection, and a true neighborhood feel. Opportunity like this don't last. Secure your place in this highly desirable, growing community now—before rising demand drives prices higher.

Локация

Факты и особенности

Тип:
Residential
Парковка:
Нет данных
Год постройки:
2025
Лот:
0.15 Акров
Отопление:
Central
Цена/кв.фут:
$201
Охлаждение:
Central Air
HOA:
$455
Больше фактов и особенностей
  • Напольное покрытие

    • Ceramic Tile

    Отопление

    • Central

    Охлаждение

    • Central Air

    Бытовая техника

    • Cooktop

    • Dishwasher

    • Microwave

    • Refrigerator

    • Washer

    Другие особенности интерьера

    • Open Floorplan

    • PrimaryBedroom Upstairs

    • Stone Counters

    Спальни и ванные комнаты

    • Спальни: 4

    • Полные ванные комнаты: 3

  • Имущество

    • Этажи: Two

    • Особенности Экстерьера: Rain Gutters / Sidewalk / Sliding Doors

    Лот

    • Лот: 0.15 Акров

    Другая Информация о Недвижимости

    • Номер Земельного Участка: 513339809

    • Зонирование: PD-MU

  • Тип и стиль

    • Тип недвижимости: Residential

    • Подтип недвижимости: Single Family Residence

  • Общественное благосостояние

    • Cable Available

    • Electricity Available

  • Другая финансовая информация

    • HOA: $455

    • Частота HOA: Monthly

  • Детали источника

    • MLS ID: A4674065

    Другие факты

    • Строительные материалы: Block

    • Детали фундамента: Slab

    • Особенности прачечной: Electric Dryer Hookup / Inside

    • Направленные лица: North

    • Мест в гараже: 2

    • Прикрепленный гараж: Да

    • Гараж: Да

    • Жилая площадь: 2397

    • Источник воды: Public

    • Название подразделения: RYE RANCH

Похожие дома

14924 SORA WAY placeholder 14924 SORA WAY
3 Дней
На продажу
Дом
$450,000
3 спален 2 ванн 1,753 кв.фт.
14924 SORA WAY
16524 66TH LANE E placeholder 16524 66TH LANE E
9 Дней
На продажу
Дом
$489,900
4 спален 2 ванн 2,320 кв.фт.
16524 66TH LANE E
17178 JAMES TRAIL placeholder 17178 JAMES TRAIL
+$1K (2025/12/03)
На продажу
Дом
$543,990
4 спален 3 ванн 2,787 кв.фт.
17178 JAMES TRAIL
17432 WHISKEY CREEK TRAIL placeholder 17432 WHISKEY CREEK TRAIL
13 Дней
На продажу
Дом
$482,990
5 спален 3 ванн 2,490 кв.фт.
17432 WHISKEY CREEK TRAIL
17806 CANE PATCH COURT placeholder 17806 CANE PATCH COURT
13 Дней
На продажу
Дом
$571,000
5 спален 4 ванн 3,283 кв.фт.
17806 CANE PATCH COURT
1904 146TH TERRACE E placeholder 1904 146TH TERRACE E
14 Дней
На продажу
Дом
$549,900
4 спален 3 ванн 2,139 кв.фт.
1904 146TH TERRACE E
16311 66TH LANE E placeholder 16311 66TH LANE E
16 Дней
На продажу
Дом
$406,100
3 спален 2 ванн 1,970 кв.фт.
16311 66TH LANE E
16507 66TH LANE E placeholder 16507 66TH LANE E
17 Дней
На продажу
Дом
$384,805
3 спален 2 ванн 1,600 кв.фт.
16507 66TH LANE E

The multiple listing information is provided by the Stellar MLS from a copyrighted compilation of listings. The compilation of listings and each individual listing are ©2025-present Stellar MLS. All Rights Reserved. The information provided is for consumers' personal, noncommercial use and may not be used for any purpose other than to identify prospective properties consumers may be interested in purchasing. All properties are subject to prior sale or withdrawal. All information provided is deemed reliable but is not guaranteed accurate, and should be independently verified. Listing courtesy of: FINE PROPERTIES