Недвижимость
Ознакомьтесь с нашими объявлениями
Контакты
Расскажите нам о своих потребностях

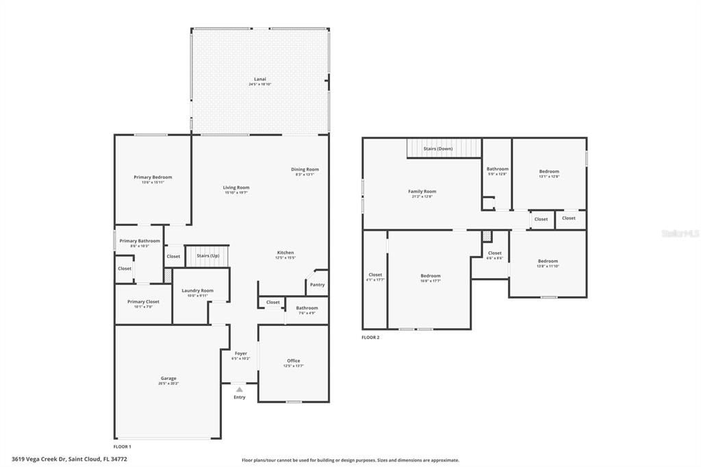
3619 VEGA CREEK DRIVE

Дом На продажу
$470,000

BTC: 5.44296468

ETH: 160.62884484

-$15K (2025/10/19)
75 Дней
5 спален
3 ванн
2,820 кв.фт.
Est. Предполагаемый диапазон продаж: $0 - $0
$0

Обзор

Welcome to 3619 Vega Creek Dr — a beautifully maintained home offering 5 bedrooms, 3 full bathrooms, and a spacious loft. From its inviting curb appeal to the extended screened and covered lanai, every detail of this home has been designed for comfort and convenience. Step inside to an open and bright layout featuring modern finishes and stylish touches throughout. The living room showcases a beautiful accent wall with an electric fireplace, creating a warm and elegant focal point for gatherings. The kitchen includes stainless steel appliances, a separate filtered water tap, and ample cabinetry for effortless meal prep and entertaining. The primary suite is conveniently located on the first floor, while upstairs you’ll find a large loft and another oversized bedroom that can easily serve as a second master suite. Recent updates include fresh exterior paint, interior touch-ups, and upgraded lighting. Outdoor living is a dream with a fully fenced backyard and a screened, covered lanai, perfect for relaxing or hosting family and friends. For peace of mind, the home features a 24kW standby generator with a 250-gallon LP tank, a premium upgrade valued at over $20,000 — providing backup power during any outage. Located in a desirable community close to top-rated schools, shopping, and major highways, this home truly offers the best of Florida living. ? Highlights: 5 Bedrooms + Loft | 3 Full Baths First-Floor Primary Suite Electric Fireplace Feature Wall Extended Screened & Covered Lanai Fresh Exterior Paint & Interior Touch-Ups Filtered Water Tap in Kitchen Fully Fenced Backyard 24kW Standby Generator + 250-Gallon LP Tank Your perfect blend of comfort, style, and functionality awaits — schedule your showing today!

Локация

Факты и особенности

Тип:
Residential
Парковка:
Нет данных
Год постройки:
2019
Лот:
0.17 Акров
Отопление:
Central
Цена/кв.фут:
$167
Охлаждение:
Central Air
HOA:
$99
Больше фактов и особенностей
  • Напольное покрытие

    • Carpet

    • Tile

    Отопление

    • Central

    Охлаждение

    • Central Air

    Бытовая техника

    • Dishwasher

    • Disposal

    • Microwave

    • Range

    • Refrigerator

    Другие особенности интерьера

    • Primary Bedroom Main Floor

    • Walk-In Closet(s)

    Спальни и ванные комнаты

    • Спальни: 5

    • Полные ванные комнаты: 3

  • Имущество

    • Этажи: Two

    • Особенности Экстерьера: Balcony / Sliding Doors

    Лот

    • Лот: 0.17 Акров

    Другая Информация о Недвижимости

    • Номер Земельного Участка: 352630096600012190

    • Зонирование: X

  • Тип и стиль

    • Тип недвижимости: Residential

    • Подтип недвижимости: Single Family Residence

  • Общественное благосостояние

    • Cable Available

    • Cable Connected

    • Electricity Connected

  • Другая финансовая информация

    • HOA: $99

    • Частота HOA: Monthly

    • Годовая сумма налога: $6,077

  • Детали источника

    • MLS ID: S5136047

    Другие факты

    • Строительные материалы: Block / Stucco / Wood Frame

    • Детали фундамента: Slab

    • Особенности камина: Electric

    • Особенности прачечной: Laundry Room

    • Направленные лица: West

    • Камин: Да

    • Мест в гараже: 2

    • Прикрепленный гараж: Да

    • Гараж: Да

    • Жилая площадь: 2820

    • Источник воды: Public

    • Название подразделения: WHALEYS CREEK PH 3

Похожие дома

742 CHAMBERLIN TRAIL placeholder 742 CHAMBERLIN TRAIL
1 Дней
На продажу
Дом
$489,990
4 спален 2 ванн 2,276 кв.фт.
742 CHAMBERLIN TRAIL
3622 CAPE COURT placeholder 3622 CAPE COURT
4 Дней
На продажу
Дом
$529,000
5 спален 3 ванн 3,316 кв.фт.
3622 CAPE COURT
4071 FLOWERING PEACH LANE placeholder 4071 FLOWERING PEACH LANE
5 Дней
На продажу
Дом
$500,000
5 спален 2 ванн 3,367 кв.фт.
4071 FLOWERING PEACH LANE
486 PINE TREE BRIDGE TRAIL placeholder 486 PINE TREE BRIDGE TRAIL
5 Дней
На продажу
Дом
$389,990
4 спален 2 ванн 1,845 кв.фт.
486 PINE TREE BRIDGE TRAIL
3838 WHITETAIL COURT placeholder 3838 WHITETAIL COURT
6 Дней
На продажу
Дом
$367,000
3 спален 2 ванн 1,537 кв.фт.
3838 WHITETAIL COURT
4909 W FOUNTAINWOOD DRIVE placeholder 4909 W FOUNTAINWOOD DRIVE
7 Дней
На продажу
Дом
$519,000
3 спален 3 ванн 2,365 кв.фт.
4909 W FOUNTAINWOOD DRIVE
5121 FOUR STRAND COURT placeholder 5121 FOUR STRAND COURT
8 Дней
На продажу
Дом
$385,000
4 спален 2 ванн 1,950 кв.фт.
5121 FOUR STRAND COURT
4716 HOMESTEAD TRAIL placeholder 4716 HOMESTEAD TRAIL
8 Дней
На продажу
Дом
$380,000
3 спален 2 ванн 1,678 кв.фт.
4716 HOMESTEAD TRAIL

The multiple listing information is provided by the Stellar MLS from a copyrighted compilation of listings. The compilation of listings and each individual listing are ©2025-present Stellar MLS. All Rights Reserved. The information provided is for consumers' personal, noncommercial use and may not be used for any purpose other than to identify prospective properties consumers may be interested in purchasing. All properties are subject to prior sale or withdrawal. All information provided is deemed reliable but is not guaranteed accurate, and should be independently verified. Listing courtesy of: ROBERT SLACK LLC