Недвижимость
Ознакомьтесь с нашими объявлениями
Контакты
Расскажите нам о своих потребностях

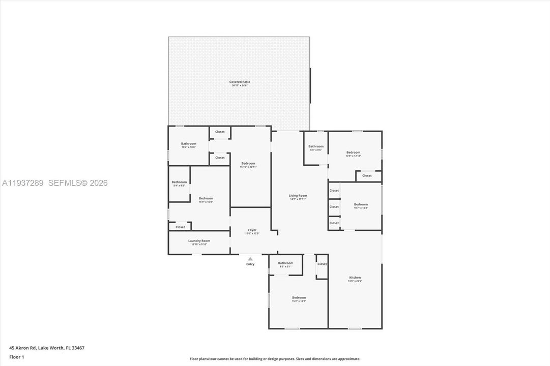
45 Akron Rd, Lake Worth FL 33467

Дом Под контрактом
$649,000

BTC: 9.45621655

ETH: 322.15631282

4 Дней
5 спален
4 ванн
Est. Предполагаемый диапазон продаж: $0 - $0
$0

Обзор

This gorgeous home with huge yard has been fully and tastefully upgraded in and out. Plenty of parking in expansive new driveway, with plenty of additional fenced space on the side that could accommodate RV or boat. The home features a nice and cozy foyer entrance with functional floor plan, porcelain floors throughout, crown molding, gorgeous updated open kitchen with sitting island and breakfast/dining area, spacious living room overlooking the yard, 5 bedrooms, 4 updated bathrooms, laundry room, high impact windows(2021), new A/C(2023), new roof(2023), solar panels, new large pergola covering back patio perfect for gatherings; storage shed, and over half acre of land offers incredible backyard possibilities. No HOA!! Located close to shopping, dining, entertainment, schools, airport and major highways!

Локация

Факты и особенности

Тип:
Residential
Парковка:
Circular Driveway / Driveway / Rv/Boat Parking
Год постройки:
1961
Лот:
26136 Квадратных Футов
Отопление:
Central
Цена/кв.фут:
Нет данных
Охлаждение:
Central Air
HOA:
Нет данных
Больше фактов и особенностей
  • Отопление

    • Central

    Охлаждение

    • Central Air

    Бытовая техника

    • Dishwasher

    • Disposal

    • Dryer

    • Microwave

    • Electric Range

    • Refrigerator

    • Washer

    Другие особенности интерьера

    • First Floor Entry

    • Entrance Foyer

    • Laundry Tub

    • Split Bedroom

    • Separate Guest/In-Law Quarters

    • Utility Room/Laundry

    Спальни и ванные комнаты

    • Спальни: 5

    • Полные ванные комнаты: 4

  • Парковка

    • Circular Driveway

    • Driveway

    • Rv/Boat Parking

    Лот

    • Лот: 26136 Квадратных Футов

    Другая Информация о Недвижимости

    • Номер Земельного Участка: 00424428010000730

    • Зонирование: RS

  • Тип и стиль

    • Тип недвижимости: Residential

    • Подтип недвижимости: Single Family Residence

  • Озеленение

    • Solar Panels

  • Другая финансовая информация

    • Годовая сумма налога: $7,105

  • Детали источника

    • MLS ID: A11937289

    Другие факты

    • Строительные материалы: CBS Construction

    • Особенности прачечной: Laundry Tub / Utility Room/Laundry

    • Особенности лота: 1/2 To Less Than 3/4 Acre Lot / Oversized Lot

    • Особенности двора и крыльца: Open Porch / Patio

    • Особенности окна: Complete Impact Glass / Blinds / High Impact Windows

    • Направленные лица: West

    • Другие структуры: Extra Building/Shed / Shed(s)

    • Архитектурный стиль: Detached / One Story

    • Источник воды: Municipal Water

    • Название подразделения: FLORIDA GARDENS 1,FLORIDA GARDENS

Похожие дома

4454 Serpens, Lake Worth, FL 33467 placeholder 4454 Serpens, Lake Worth, FL 33467
3 Дней
Под контрактом
Таунхаус
$640,000
3 спален 2 ванн 2,317 кв.фт.
4454 Serpens, Lake Worth, FL 33467
7906 Rockport, Lake Worth, FL 33467 placeholder 7906 Rockport, Lake Worth, FL 33467
4 Дней
Под контрактом
Дом
$565,000
3 спален 2 ванн 1,861 кв.фт.
7906 Rockport, Lake Worth, FL 33467
10105 Clubhouse Turn, Lake Worth, FL 33449 placeholder 10105 Clubhouse Turn, Lake Worth, FL 33449
5 Дней
Под контрактом
Дом
$550,000
3 спален 2 ванн 1,798 кв.фт.
10105 Clubhouse Turn, Lake Worth, FL 33449
7759 Oak Grove, Lake Worth, FL 33467 placeholder 7759 Oak Grove, Lake Worth, FL 33467
5 Дней
Под контрактом
Дом
$649,000
4 спален 2 ванн 2,558 кв.фт.
7759 Oak Grove, Lake Worth, FL 33467
9684 San Vittore, Lake Worth, FL 33467 placeholder 9684 San Vittore, Lake Worth, FL 33467
6 Дней
Под контрактом
Дом
$649,900
4 спален 2 ванн 2,798 кв.фт.
9684 San Vittore, Lake Worth, FL 33467
109 Palmetto, Lake Worth, FL 33467 placeholder 109 Palmetto, Lake Worth, FL 33467
8 Дней
Под контрактом
Дом
$530,000
3 спален 2 ванн 1,668 кв.фт.
109 Palmetto, Lake Worth, FL 33467
6784 Columbia, Lake Worth, FL 33467 placeholder 6784 Columbia, Lake Worth, FL 33467
9 Дней
Под контрактом
Дом
$675,000
4 спален 2 ванн 2,558 кв.фт.
6784 Columbia, Lake Worth, FL 33467
19 Arch, Lake Worth, FL 33467 placeholder 19 Arch, Lake Worth, FL 33467
9 Дней
Под контрактом
Дом
$550,000
3 спален 2 ванн 2,028 кв.фт.
19 Arch, Lake Worth, FL 33467

The multiple listing information is provided by the Miami Association of REALTORS® from a copyrighted compilation of listings. The compilation of listings and each individual listing are ©2026-present Miami Association of REALTORS®. All Rights Reserved. The information provided is for consumers' personal, noncommercial use and may not be used for any purpose other than to identify prospective properties consumers may be interested in purchasing. All properties are subject to prior sale or withdrawal. All information provided is deemed reliable but is not guaranteed accurate, and should be independently verified. Listing courtesy of: Luxe Properties