Недвижимость
Ознакомьтесь с нашими объявлениями
Контакты
Расскажите нам о своих потребностях

485 NW 89th St, El Portal FL 33150

Дом Недавно продано
$930,000

BTC: 9.78947368

ETH: 300.00000000

Дата продажи: 2025-07-30
63 Дней
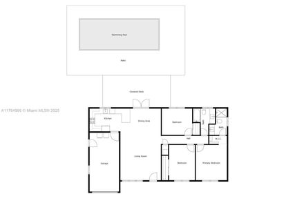
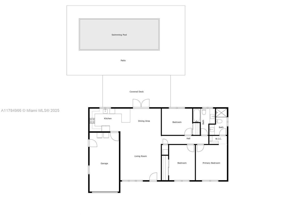
3 спален
2 ванн
1,268 кв.фт.
Est. Предполагаемый диапазон продаж: $0 - $0
$0

Обзор

Welcome to Casa Plumeria. Live large in this truly turnkey, three bedroom-two bath tropical midcentury modern pool home in the sanctuary of El Portal. Enter from the covered front porch into the open-flow great room with dining and designer eat-in kitchen, with French doors to the covered lanai overlooking the sparkling heated saltwater pool with spa and lush gardens with expansive grassy areas, great for entertaining and relaxation. Sleep easy with three spacious bedrooms including the main ensuite retreat with walk-in closet. Great features: vaulted ceilings, terrazzo floors, modern updated kitchen and baths, impact windows-doors, new roof, and a one-car garage. Just look for the blooming front yard Plumeria-Frangipani tree with its beautiful yellow flowers, and you’ll know you’re home!

Локация

Факты и особенности

Тип:
Residential
Парковка:
Driveway
Год постройки:
1955
Лот:
8987 Квадратных Футов
Отопление:
Central
Цена/кв.фут:
$748
Охлаждение:
Central Air
HOA:
Нет данных
Больше фактов и особенностей
  • Напольное покрытие

    • Terrazzo

    • Tile

    • Vinyl

    Отопление

    • Central

    Охлаждение

    • Central Air

    Бытовая техника

    • Dishwasher

    • Disposal

    • Dryer

    • Microwave

    • Electric Range

    • Refrigerator

    • Washer

    Другие особенности интерьера

    • First Floor Entry

    • Closet Cabinetry

    • Vaulted Ceiling(s)

    • Utility/Laundry In Garage

    Спальни и ванные комнаты

    • Спальни: 3

    • Полные ванные комнаты: 2

  • Парковка

    • Driveway

    Имущество

    • Особенности Экстерьера: Fruit Trees

    Лот

    • Лот: 8987 Квадратных Футов

    Другая Информация о Недвижимости

    • Номер Земельного Участка: 18-31-01-037-0270

    • Зонирование: 0100

  • Тип и стиль

    • Тип недвижимости: Residential

    • Подтип недвижимости: Single Family Residence

  • Другая финансовая информация

    • Годовая сумма налога: $16,633

  • Детали источника

    • MLS ID: A11784966

    Другие факты

    • Строительные материалы: CBS Construction

    • Особенности прачечной: In Garage

    • Особенности лота: Less Than 1/4 Acre Lot

    • Особенности двора и крыльца: Patio

    • Особенности бассейна: In Ground

    • Особенности окна: Complete Impact Glass / Blinds / Drapes / High Impact Windows

    • Направленные лица: South

    • Архитектурный стиль: Detached / One Story

    • Мест в гараже: 1

    • Прикрепленный гараж: Да

    • Гараж: Да

    • Жилая площадь: 1268

    • Источник воды: Municipal Water

    • Название подразделения: GLENDALE MANOR

Похожие дома

9305 NE 9th Ave, Miami Shores FL 33138 placeholder 9305 NE 9th Ave, Miami Shores FL 33138
Новое
Недавно продано
Дом
$950,000
3 спален 2 ванн 2,082 кв.фт.
9305 NE 9th Ave, Miami Shores FL 33138
820 NE 80TH STREET placeholder 820 NE 80TH STREET
Новое
Недавно продано
Дом
$1,102,500
2 спален 2 ванн 2,638 кв.фт.
820 NE 80TH STREET
739 NE 111th St, Biscayne Park FL 33161 placeholder 739 NE 111th St, Biscayne Park FL 33161
Новое
Недавно продано
Участки / Земля
$690,000
0 room(s)
739 NE 111th St, Biscayne Park FL 33161
437 NE 70th St, Miami FL 33138 placeholder 437 NE 70th St, Miami FL 33138
Новое
Недавно продано
Дом
$800,000
4 спален 3 ванн 1,566 кв.фт.
437 NE 70th St, Miami FL 33138
739 NE 111th St, Biscayne Park FL 33161 placeholder 739 NE 111th St, Biscayne Park FL 33161
Новое
Недавно продано
Дом
$690,000
2 спален 2 ванн 1,591 кв.фт.
739 NE 111th St, Biscayne Park FL 33161
53 NE 106th St, Miami Shores FL 33138 placeholder 53 NE 106th St, Miami Shores FL 33138
Новое
Недавно продано
Дом
$690,000
3 спален 2 ванн 1,376 кв.фт.
53 NE 106th St, Miami Shores FL 33138
1431 NE 102nd St, Miami Shores FL 33138 placeholder 1431 NE 102nd St, Miami Shores FL 33138
Новое
Недавно продано
Дом
$1,250,000
3 спален 3 ванн 2,108 кв.фт.
1431 NE 102nd St, Miami Shores FL 33138
1566 NE Quayside Ter # D14, Miami FL 33138 placeholder 1566 NE Quayside Ter # D14, Miami FL 33138
Новое
Недавно продано
Таунхаус
$945,750
4 спален 4 ванн 3,711 кв.фт.
1566 NE Quayside Ter # D14, Miami FL 33138

The multiple listing information is provided by the Miami Association of REALTORS® from a copyrighted compilation of listings. The compilation of listings and each individual listing are ©2026-present Miami Association of REALTORS®. All Rights Reserved. The information provided is for consumers' personal, noncommercial use and may not be used for any purpose other than to identify prospective properties consumers may be interested in purchasing. All properties are subject to prior sale or withdrawal. All information provided is deemed reliable but is not guaranteed accurate, and should be independently verified. Listing courtesy of: Graber Realty Group LLC