Недвижимость
Ознакомьтесь с нашими объявлениями
Контакты
Расскажите нам о своих потребностях

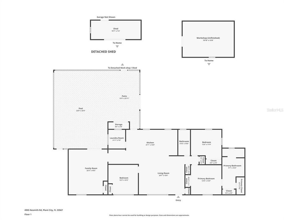
4905 NESMITH ROAD

Дом На продажу
$524,900

BTC: 17.49666667

ETH: 262.45000000

-$25K (2025/11/06)
61 Дней
Набережная
4 спален
2 ванн
1,588 кв.фт.
Est. Предполагаемый диапазон продаж: $0 - $0
$0

Обзор

One or more photo(s) has been virtually staged. Completely Remodeled Country Retreat on 5 Acres with Pool & Creek. Welcome to your dream oasis! Nestled on 5 serene acres with no HOA, this beautifully remodeled home offers the perfect blend of modern luxury and peaceful country living. Step inside to discover brand-new luxury plank flooring throughout, fresh interior and exterior paint, and updated lighting that enhances every room. You will absolutely love the 4th bedroom/bonus room with shiplap vaulted ceilings with a sliding door to the pool/patio area. Its a beautiful room with lots of possibilities. The heart of the home is a stunning new kitchen featuring quartz countertops, sleek stainless steel appliances, custom cabinetry, and a stylish backsplash. The spacious master suite boasts a spa-like bathroom with a standalone soaking tub, a glass-enclosed step-in shower, and a double vanity. Enjoy year-round outdoor living with a resurfaced pool, new pump, timer, and filter, plus a covered patio and a fully equipped outdoor kitchen with a built-in sink—ideal for entertaining. The property also includes a carport, oversized garage, and a storage shed for all your toys and tools. Boat storage, RV parking, farm animals are all welcome - In-law suite additional homes are also allowed. Nature lovers will appreciate the flowing creek, mature trees, and tranquil surroundings. 2.6 acres upland + 2.4 acres wetland to provide a beautiful property to enjoy nature. If you are planning for cows, they will can enjoy this space also. With a new AC system, new drainfield, and charming touches like a cottage-style front door and new baseboards, this home is truly move-in ready. There are 2 really nice parks a bike ride's distance away for nice afternoons. Don’t miss this rare opportunity to own a private slice of paradise just minutes from town!

Локация

Факты и особенности

Тип:
Residential
Парковка:
Нет данных
Год постройки:
1960
Лот:
4.99 Акров
Отопление:
Central
Цена/кв.фут:
$331
Охлаждение:
Central Air
HOA:
Нет данных
Больше фактов и особенностей
  • Напольное покрытие

    • Ceramic Tile

    • Luxury Vinyl

    Отопление

    • Central

    Охлаждение

    • Central Air

    Бытовая техника

    • Convection Oven

    • Dishwasher

    • Microwave

    • Refrigerator

    Другие особенности интерьера

    • Kitchen/Family Room Combo

    • Open Floorplan

    Спальни и ванные комнаты

    • Спальни: 4

    • Полные ванные комнаты: 2

  • Имущество

    • Этажи: One

    • Частный Бассейн: Да

    • Особенности Экстерьера: Storage

    Лот

    • Лот: 4.99 Акров

    Другая Информация о Недвижимости

    • Номер Земельного Участка: U232922ZZZ00000504190.0

    • Зонирование: AS-1

  • Тип и стиль

    • Тип недвижимости: Residential

    • Подтип недвижимости: Single Family Residence

  • Общественное благосостояние

    • Cable Connected

  • Другая финансовая информация

    • Годовая сумма налога: $2,743

  • Детали источника

    • MLS ID: TB8434560

    Другие факты

    • Строительные материалы: Block

    • Детали фундамента: Slab

    • Особенности прачечной: Inside / Laundry Room

    • Особенности бассейна: Gunite

    • Особенности окна: Blinds

    • Направленные лица: East

    • Берег: Да

    • Мест в гараже: 1

    • Гараж: Да

    • Жилая площадь: 1588

    • Источник воды: Well

    • Название подразделения: UNPLATTED

Похожие дома

5614 LAZY CREEK DRIVE placeholder 5614 LAZY CREEK DRIVE
6 Дней
На продажу
Дом
$620,000
3 спален 2 ванн 2,081 кв.фт.
5614 LAZY CREEK DRIVE
5301 CORONET ROAD placeholder 5301 CORONET ROAD
13 Дней
На продажу
Дом
$429,000
3 спален 2 ванн 1,606 кв.фт.
5301 CORONET ROAD
5440 SILTSTONE STREET placeholder 5440 SILTSTONE STREET
16 Дней
На продажу
Дом
$429,000
4 спален 2 ванн 1,854 кв.фт.
5440 SILTSTONE STREET
2806 60 Hwy A, Plant City, FL 33567 placeholder 2806 60 Hwy A, Plant City, FL 33567
+$50K (2025/10/31)
На продажу
Дом
$475,000
7 спален 4 ванн 2,480 кв.фт.
2806 60 Hwy A, Plant City, FL 33567
6625 S COUNTY LINE ROAD placeholder 6625 S COUNTY LINE ROAD
49 Дней
На продажу
$525,000
6 спален 4 ванн 1,404 кв.фт.
6625 S COUNTY LINE ROAD
2210 TOMBERLIN GROVE LANE placeholder 2210 TOMBERLIN GROVE LANE
-$25K (2025/11/03)
На продажу
Дом
$499,900
3 спален 2 ванн 2,244 кв.фт.
2210 TOMBERLIN GROVE LANE
5109 HORTON ROAD placeholder 5109 HORTON ROAD
71 Дней
На продажу
Дом
$369,000
4 спален 2 ванн 1,935 кв.фт.
5109 HORTON ROAD
1552 AVONDALE RIDGE DRIVE placeholder 1552 AVONDALE RIDGE DRIVE
-$19K (2025/10/30)
На продажу
Дом
$679,900
4 спален 3 ванн 2,427 кв.фт.
1552 AVONDALE RIDGE DRIVE

The multiple listing information is provided by the Stellar MLS from a copyrighted compilation of listings. The compilation of listings and each individual listing are ©2025-present Stellar MLS. All Rights Reserved. The information provided is for consumers' personal, noncommercial use and may not be used for any purpose other than to identify prospective properties consumers may be interested in purchasing. All properties are subject to prior sale or withdrawal. All information provided is deemed reliable but is not guaranteed accurate, and should be independently verified. Listing courtesy of: BLUE SUN REALTY LLC