Недвижимость
Ознакомьтесь с нашими объявлениями
Контакты
Расскажите нам о своих потребностях

517 MIRABAY BOULEVARD

Дом В аренду
$8,000

BTC: 0.11875256

ETH: 4.16666667

/mo
84 Дней
Набережная
4 спален
4 ванн
4,089 кв.фт.
Est. Предполагаемый диапазон продаж: $0 - $0
$0

Обзор

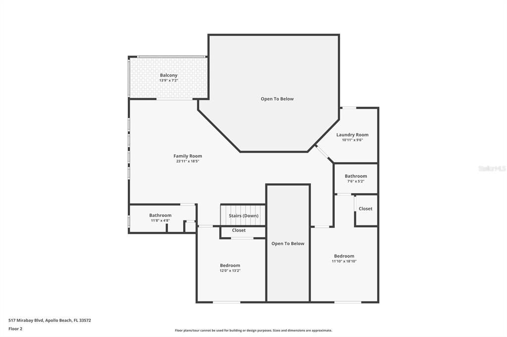
517 MiraBay Blvd | 4 Beds | 4 Baths | 4,089 Sq Ft (5840 Total under Roof) | Waterfront Pool Home | Custom Hannah Bartoletta Build WOW!! EXCEPTIONAL WATERFRONT LIVING — This one-of-a-kind custom Hannah Bartoletta Mediterranean-style pool home offers one of the best canal long canal views in MiraBay, a highly desired gated boating community. Situated on a premium lot with a private dock and lift, you’ll enjoy long, open water views from nearly every room. Outdoor Living at Its Finest: The screened lanai features a heated saltwater pool and spa, outdoor fireplace with TV hookup, and a full summer kitchen with grill, fridge, and sink. With an extraordinary amount of covered outdoor space for entertaining, this is Florida living at its best! Just off your outdoor oasis, you will find a boat dock with 10,000 pound lift for up to a 28ft boat. Inside the Home: The great room showcases soaring ceilings and stunning water views. The chef’s kitchen includes high-end appliances, subzero fridge, double ovens, granite countertops, and a large island perfect for entertaining. A custom wine cellar adds an elegant touch. and is centrally located between the indoor and outdoor recreation area. Open up those fully pocketing sliding doors and the entertainment possibilities are endless Owner’s Retreat: The first-floor primary suite overlooks the pool and canal and includes dual walk-in closets and a spa-style ensuite bath with a jacuzzi brand soaking tub and multi-head shower. Upstairs, a loft and two additional bedrooms provides flexible space for guests, an office, or a media room. Additional Highlights: Whole-house generator, 3-car garage, newly cleaned tile roof, and custom woodwork throughout. Community Perks: MiraBay residents enjoy resort-style amenities—clubhouse with poolside bar and food service, tennis, pickleball, fitness center, and kayak launch. Conveniently located near shopping, dining, and waterfront restaurants, with easy access to Tampa Bay. Experience luxury waterfront living in MiraBay—schedule your private showing today!

Локация

Факты и особенности

Тип:
Residential Lease
Парковка:
Driveway / Garage Door Opener / Off Street
Год постройки:
2005
Лот:
0.24 Акров
Отопление:
Central
Цена/кв.фут:
$2
Охлаждение:
Central Air
HOA:
Нет данных
Больше фактов и особенностей
  • Напольное покрытие

    • Tile

    Отопление

    • Central

    Охлаждение

    • Central Air

    Бытовая техника

    • Bar Fridge

    • Built-In Oven

    • Cooktop

    • Dishwasher

    • Disposal

    • Dryer

    • Exhaust Fan

    Другие особенности интерьера

    • Ceiling Fan(s)

    • Coffered Ceiling(s)

    • Crown Molding

    • Dry Bar

    • Eating Space In Kitchen

    • High Ceilings

    • Kitchen/Family Room Combo

    • Living Room/Dining Room Combo

    • Open Floorplan

    • Primary Bedroom Main Floor

    • Solid Wood Cabinets

    • Split Bedroom

    • Stone Counters

    • Thermostat

    • Tray Ceiling(s)

    • Vaulted Ceiling(s)

    • Walk-In Closet(s)

    • Window Treatments

    Спальни и ванные комнаты

    • Спальни: 4

    • Полные ванные комнаты: 4

  • Парковка

    • Driveway

    • Garage Door Opener

    • Off Street

    Имущество

    • Этажи: Two

    • Частный Бассейн: Да

    Лот

    • Лот: 0.24 Акров

    Другая Информация о Недвижимости

    • Номер Земельного Участка: U29311964800002100001.0

  • Тип и стиль

    • Тип недвижимости: Residential Lease

    • Подтип недвижимости: Single Family Residence

  • Общественное благосостояние

    • Cable Connected

    • Electricity Connected

    • Natural Gas Connected

    • Sewer Connected

    • Street Lights

    • Water Connected

  • Детали источника

    • MLS ID: TB8435390

    Другие факты

    • Особенности прачечной: Electric Dryer Hookup / Inside / Laundry Room / Washer Hookup

    • Особенности бассейна: Heated / In Ground / Outside Bath Access / Screen Enclosure / Solar Cover / Solar Heat / Tile

    • Особенности окна: Tinted Windows / Window Treatments

    • Берег: Да

    • Мест в гараже: 3

    • Прикрепленный гараж: Да

    • Гараж: Да

    • Жилая площадь: 4089

    • Источник воды: Public

    • Название подразделения: MIRABAY PH 1B-1/2A-1/3B-1

Похожие дома

1329 JUMANA LOOP placeholder 1329 JUMANA LOOP
6 Дней
В аренду
Дом
$6,500 /mo
4 спален 3 ванн 4,967 кв.фт.
1329 JUMANA LOOP
1224 ACAPPELLA LANE placeholder 1224 ACAPPELLA LANE
26 Дней
В аренду
Дом
$7,000 /mo
4 спален 3 ванн 3,911 кв.фт.
1224 ACAPPELLA LANE
718 PINCKNEY DRIVE placeholder 718 PINCKNEY DRIVE
70 Дней
В аренду
Дом
$7,500 /mo
5 спален 5 ванн 4,355 кв.фт.
718 PINCKNEY DRIVE
5305 WISHING ARCH DRIVE placeholder 5305 WISHING ARCH DRIVE
-$755 (2026/01/06)
В аренду
Дом
$5,995 /mo
4 спален 3 ванн 2,993 кв.фт.
5305 WISHING ARCH DRIVE
539 TREVISO DRIVE placeholder 539 TREVISO DRIVE
-$480 (2025/06/26)
В аренду
Дом
$7,495 /mo
4 спален 3 ванн 2,777 кв.фт.
539 TREVISO DRIVE
910 CHIPAWAY DRIVE placeholder 910 CHIPAWAY DRIVE
-$2K (2025/10/10)
В аренду
Дом
$5,600 /mo
3 спален 2 ванн 1,791 кв.фт.
910 CHIPAWAY DRIVE

The multiple listing information is provided by the Stellar MLS from a copyrighted compilation of listings. The compilation of listings and each individual listing are ©2026-present Stellar MLS. All Rights Reserved. The information provided is for consumers' personal, noncommercial use and may not be used for any purpose other than to identify prospective properties consumers may be interested in purchasing. All properties are subject to prior sale or withdrawal. All information provided is deemed reliable but is not guaranteed accurate, and should be independently verified. Listing courtesy of: 27NORTH REALTY