Недвижимость
Ознакомьтесь с нашими объявлениями
Контакты
Расскажите нам о своих потребностях

521 NE 119th St, Biscayne Park FL 33161

Дом Под контрактом
$1,479,000

BTC: 21.54968302

ETH: 734.15899332

-$120K (2025/09/18)
55 Дней
3 спален
2 ванн
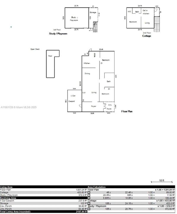
2,197 кв.фт.
Est. Предполагаемый диапазон продаж: $0 - $0
$0

Обзор

Welcome to Casa Del Sol, a charming Mediterranean Revival home in Biscayne Park. The main house features 2 bedrooms, 1 bath, a cozy living room with a working fireplace, arched windows, and timeless architectural details. A versatile two-story guest house offers an upstairs apartment and a downstairs office/studio—ideal for guests, work, or creative space. Step outside to a large pool and lush yard perfect for entertaining or relaxing under the palms. With its barrel-tile roof, stucco exterior, and classic Spanish-inspired design, this residence blends historic charm with modern comfort in one of Miami’s most desirable neighborhoods.

Локация

Факты и особенности

Тип:
Residential
Парковка:
Driveway / On Street
Год постройки:
1919
Лот:
11550 Квадратных Футов
Отопление:
Central
Цена/кв.фут:
$673
Охлаждение:
Ceiling Fan(s) / Central Air
HOA:
Нет данных
Больше фактов и особенностей
  • Напольное покрытие

    • Tile

    • Wood

    Отопление

    • Central

    Охлаждение

    • Ceiling Fan(s)

    • Central Air

    Бытовая техника

    • Dishwasher

    • Dryer

    • Refrigerator

    • Washer

    Другие особенности интерьера

    • First Floor Entry

    • Cooking Island

    • Entrance Foyer

    • Separate Guest/In-Law Quarters

    Спальни и ванные комнаты

    • Спальни: 3

    • Полные ванные комнаты: 2

  • Парковка

    • Driveway

    • On Street

    Имущество

    • Особенности Экстерьера: Lighting / Fruit Trees

    Лот

    • Лот: 11550 Квадратных Футов

    Другая Информация о Недвижимости

    • Номер Земельного Участка: 17-22-30-031-0480

    • Зонирование: 0100

  • Тип и стиль

    • Тип недвижимости: Residential

    • Подтип недвижимости: Single Family Residence

  • Другая финансовая информация

    • Годовая сумма налога: $8,590

  • Детали источника

    • MLS ID: A11861728

    Другие факты

    • Строительные материалы: CBS Construction

    • Особенности камина: Fireplace

    • Особенности лота: Less Than 1/4 Acre Lot

    • Особенности двора и крыльца: Deck

    • Особенности бассейна: In Ground

    • Направленные лица: South

    • Другие структуры: Guest House

    • Архитектурный стиль: Attached / One Story / Two Story

    • Камин: Да

    • Жилая площадь: 2197

    • Источник воды: Municipal Water

    • Название подразделения: BISCAYNE PARK ESTATES

Похожие дома

173 NW 107th St, Miami Shores FL 33168 placeholder 173 NW 107th St, Miami Shores FL 33168
Новое
Под контрактом
Дом
$1,250,000
3 спален 2 ванн 1,581 кв.фт.
173 NW 107th St, Miami Shores FL 33168
11770 Griffing Blvd, Biscayne Park FL 33161 placeholder 11770 Griffing Blvd, Biscayne Park FL 33161
12 Дней
Под контрактом
Дом
$1,090,000
4 спален 4 ванн 2,519 кв.фт.
11770 Griffing Blvd, Biscayne Park FL 33161
53 NW 107th St, Miami Shores FL 33168 placeholder 53 NW 107th St, Miami Shores FL 33168
17 Дней
Под контрактом
Дом
$1,180,000
3 спален 3 ванн 1,562 кв.фт.
53 NW 107th St, Miami Shores FL 33168
14000 N Miami Ave, Miami FL 33168 placeholder 14000 N Miami Ave, Miami FL 33168
24 Дней
Под контрактом
Дом
$1,340,000
4 спален 3 ванн 2,882 кв.фт.
14000 N Miami Ave, Miami FL 33168
535 NW 90 St, El Portal FL 33150 placeholder 535 NW 90 St, El Portal FL 33150
26 Дней
Под контрактом
Многосемейный
$1,200,000
0 room(s) 4,886 кв.фт.
535 NW 90 St, El Portal FL 33150
535 NW 90th St, El Portal FL 33150 placeholder 535 NW 90th St, El Portal FL 33150
26 Дней
Под контрактом
Коммерческий
$1,200,000
0 room(s)
535 NW 90th St, El Portal FL 33150
535 NW 90th St, El Portal FL 33150 placeholder 535 NW 90th St, El Portal FL 33150
26 Дней
Под контрактом
Дом
$1,200,000
3 спален 3 ванн 4,886 кв.фт.
535 NW 90th St, El Portal FL 33150
8440 NE 1st Ave, Miami FL 33138 placeholder 8440 NE 1st Ave, Miami FL 33138
28 Дней
Под контрактом
Коммерческий
$1,875,000
0 room(s)
8440 NE 1st Ave, Miami FL 33138

The multiple listing information is provided by the Miami Association of REALTORS® from a copyrighted compilation of listings. The compilation of listings and each individual listing are ©2026-present Miami Association of REALTORS®. All Rights Reserved. The information provided is for consumers' personal, noncommercial use and may not be used for any purpose other than to identify prospective properties consumers may be interested in purchasing. All properties are subject to prior sale or withdrawal. All information provided is deemed reliable but is not guaranteed accurate, and should be independently verified. Listing courtesy of: Maggi Realty Group