Недвижимость
Ознакомьтесь с нашими объявлениями
Контакты
Расскажите нам о своих потребностях

557 WINDERMERE DRIVE

Дом На продажу
$265,000

BTC: 3.06890562

ETH: 90.56732741

-$60K (2025/08/09)
235 Дней
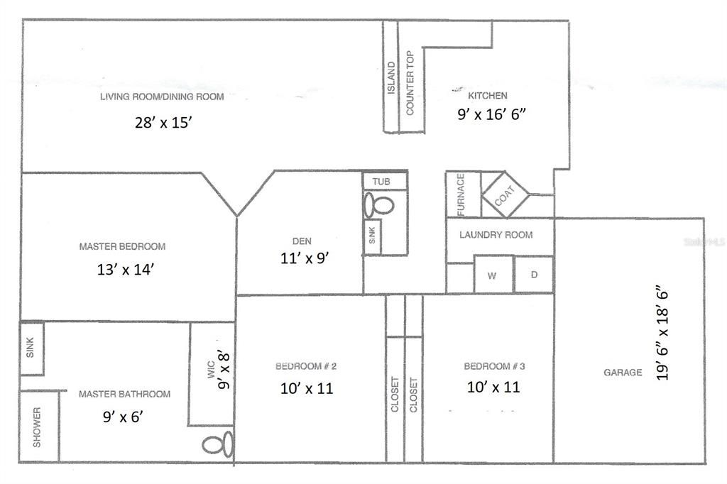
3 спален
2 ванн
1,770 кв.фт.
Est. Предполагаемый диапазон продаж: $0 - $0
$0

Обзор

Country Living Without the HOA Headaches! Buying or just need to rent a place? We got you covered and this home goes both ways! Tired of nosy neighbors and HOA rules longer than a CVS receipt? Welcome to your slice of freedom. This spacious 3-bedroom, 2-bath home features a large office that moonlights as a 4th bedroom—perfect for guests, hobbies, or that home gym you swear you'll use. Step into a massive living room where everyone can finally sit comfortably during game night or movie marathons. The kitchen includes an eat-in area, so you can enjoy breakfast with a view instead of crumbs in your bed (we won’t judge either way). Comfort is key—ceiling fans in all main rooms (that’s bedrooms, living room, and the office) keep the air moving and the energy bills friendly. No fans in the kitchen, laundry, or bathrooms… because, well, let’s just say some rooms are better with vents than fans. Upgrades? You bet: Well system replaced just over two years ago Brand new water heater and well pump Ample garage storage for your tools, toys, and questionable holiday decor Recently serviced and cleaned HVAC with a "slime guard" system installed to prevent build up issues in the HVAC drain line All of this sits on a private country lot just 15 minutes from Lehigh Acres shopping and 30 minutes to Fort Myers, so you're never too far from civilization—or a decent taco. No HOA. No nonsense. No nosy neighbors. Just good living. Trade in your stress for sunsets and starry skies and peaceful nights. If you just want to rent this place give us a call and we can give you the details.

Локация

Факты и особенности

Тип:
Residential
Парковка:
Нет данных
Год постройки:
2007
Лот:
0.23 Акров
Отопление:
Heat Pump
Цена/кв.фут:
$150
Охлаждение:
Central Air
HOA:
Нет данных
Больше фактов и особенностей
  • Напольное покрытие

    • Laminate

    Отопление

    • Heat Pump

    Охлаждение

    • Central Air

    Бытовая техника

    • Dishwasher

    • Microwave

    • Range

    Другие особенности интерьера

    • Ceiling Fan(s)

    Спальни и ванные комнаты

    • Спальни: 3

    • Полные ванные комнаты: 2

  • Имущество

    • Этажи: One

    • Особенности Экстерьера: Irrigation System

    Лот

    • Лот: 0.23 Акров

    Другая Информация о Недвижимости

    • Номер Земельного Участка: 054427L429197.0020

    • Зонирование: RS-1

  • Тип и стиль

    • Тип недвижимости: Residential

    • Подтип недвижимости: Single Family Residence

  • Общественное благосостояние

    • Electricity Connected

    • Public

    • Sewer Connected

    • Water Connected

  • Другая финансовая информация

    • Годовая сумма налога: $2,997

  • Детали источника

    • MLS ID: TB8382022

    Другие факты

    • Строительные материалы: Block / Stucco

    • Детали фундамента: Slab

    • Особенности прачечной: Laundry Room

    • Особенности двора и крыльца: Rear Porch

    • Направленные лица: North

    • Мест в гараже: 2

    • Прикрепленный гараж: Да

    • Гараж: Да

    • Жилая площадь: 1770

    • Источник воды: Well

    • Название подразделения: GREENBRIAR

Похожие дома

2810 64TH ST, Lehigh Acres FL 33971 placeholder 2810 64TH ST, Lehigh Acres FL 33971
1 Дней
На продажу
Дом
$289,999
3 спален 2 ванн
2810 64TH ST, Lehigh Acres FL 33971
644 Woodcrest DR, Lehigh Acres FL 33972 placeholder 644 Woodcrest DR, Lehigh Acres FL 33972
31 Дней
На продажу
Дом
$288,000
3 спален 2 ванн
644 Woodcrest DR, Lehigh Acres FL 33972
2802 73RD STREET W placeholder 2802 73RD STREET W
41 Дней
На продажу
Дом
$190,000
3 спален 1 ванн 1,144 кв.фт.
2802 73RD STREET W
2615 40th St W, Lehigh Acres FL 33971 placeholder 2615 40th St W, Lehigh Acres FL 33971
42 Дней
На продажу
Дом
$340,000
4 спален 2 ванн
2615 40th St W, Lehigh Acres FL 33971
2713 56th st w, Lehigh Acres FL 33971 placeholder 2713 56th st w, Lehigh Acres FL 33971
44 Дней
На продажу
Дом
$299,000
3 спален 2 ванн 1,600 кв.фт.
2713 56th st w, Lehigh Acres FL 33971
2614 70th, Lehigh Acres, FL 33971 placeholder 2614 70th, Lehigh Acres, FL 33971
-$20K (2025/12/03)
На продажу
Дом
$260,000
3 спален 2 ванн 1,042 кв.фт.
2614 70th, Lehigh Acres, FL 33971
2503 51ST STREET W placeholder 2503 51ST STREET W
50 Дней
На продажу
Дом
$279,900
3 спален 2 ванн 1,408 кв.фт.
2503 51ST STREET W
2615 68th st w, Lehigh Acres FL 33971 placeholder 2615 68th st w, Lehigh Acres FL 33971
55 Дней
На продажу
Дом
$299,000
3 спален 2 ванн 1,600 кв.фт.
2615 68th st w, Lehigh Acres FL 33971

The multiple listing information is provided by the Stellar MLS from a copyrighted compilation of listings. The compilation of listings and each individual listing are ©2025-present Stellar MLS. All Rights Reserved. The information provided is for consumers' personal, noncommercial use and may not be used for any purpose other than to identify prospective properties consumers may be interested in purchasing. All properties are subject to prior sale or withdrawal. All information provided is deemed reliable but is not guaranteed accurate, and should be independently verified. Listing courtesy of: PALM LIFE REALTY