Недвижимость
Ознакомьтесь с нашими объявлениями
Контакты
Расскажите нам о своих потребностях

575 Lake, Palm Beach, FL 33480

Дом На продажу
$7,495,000

BTC: 249.83333333

ETH: 3,747.50000000

41 Дней
3 спален
4 ванн
3,038 кв.фт.
Est. Предполагаемый диапазон продаж: $0 - $0
$0

Обзор

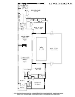
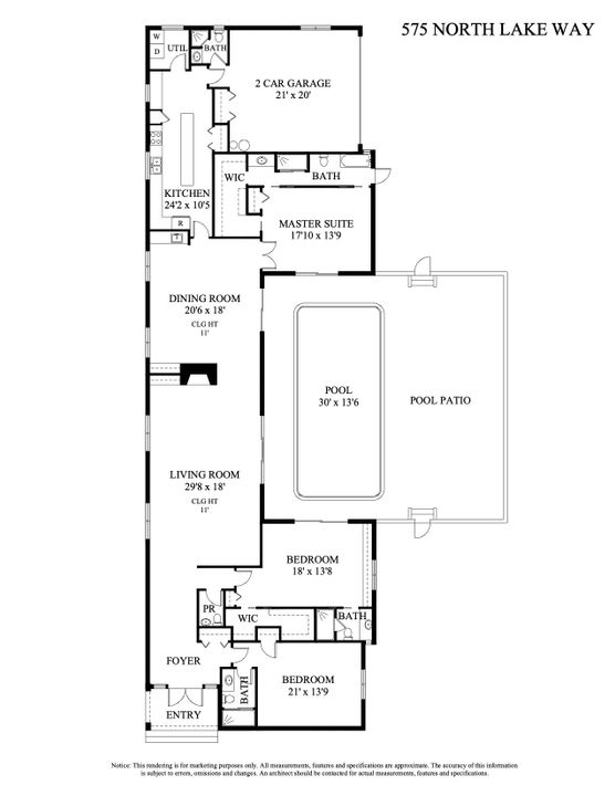
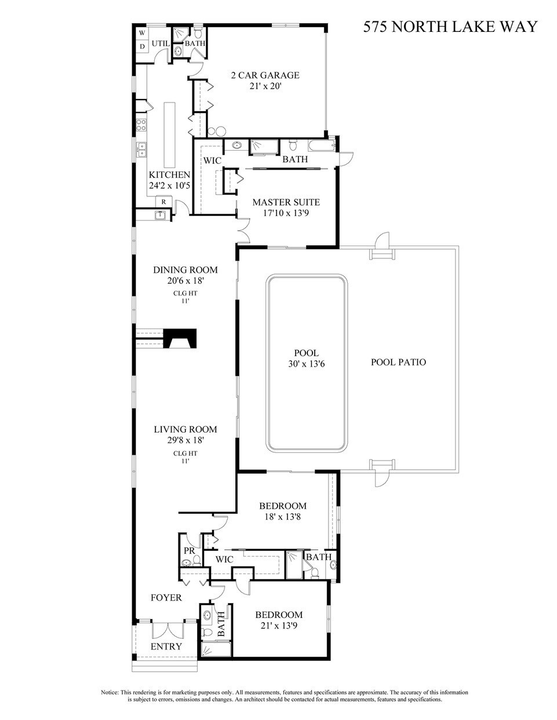
Located on North Lake Way and South Woods Road, this North End property sits on a generous 11,761+/- square-foot corner lot.The residence offers 3,826+/- total square feet with 3 bedrooms, 4 and a half bathrooms, a large pool and 2-car garage. The home's layout is designed around the south facing pool allowing for an abundance of natural light throughout. The living room has vaulted ceilings and a modern fireplace with sliding glass doors out to the pool terrace. The dining room has a wet bar, easy access to the kitchen, as well as doors to the pool. The eat-in kitchen features an island, ample storage, and a built-in desk.The primary bedroom is located on the east side of the house for added privacy and features doors to the pool, a walk-in closet, and an ensuite bath with a

Локация

Факты и особенности

Тип:
Residential
Парковка:
2+ Spaces / Driveway / Garage - Attached
Год постройки:
1981
Лот:
11761 Квадратных Футов
Отопление:
Central
Цена/кв.фут:
$2,467
Охлаждение:
Central
HOA:
Нет данных
Больше фактов и особенностей
  • Напольное покрытие

    • Marble

    • Tile

    • Vinyl Floor

    • Wood Floor

    Отопление

    • Central

    Охлаждение

    • Central

    Бытовая техника

    • Auto Garage Open

    • Central Vacuum

    • Dishwasher

    • Disposal

    • Dryer

    • Freezer

    • Ice Maker

    • Microwave

    • Range - Gas

    • Refrigerator

    • Washer

    Другие особенности интерьера

    • Built-in Shelves

    • Entry Lvl Lvng Area

    • Fireplace(s)

    • Foyer

    • Split Bedroom

    • Volume Ceiling

    • Walk-in Closet

    Спальни и ванные комнаты

    • Спальни: 3

    • Ванные: 1

    • Полные ванные комнаты: 4

  • Парковка

    • 2+ Spaces

    • Driveway

    • Garage - Attached

    Имущество

    • Частный Бассейн: Да

    • Особенности Экстерьера: Fence / Open Patio / Zoned Sprinkler

    Лот

    • Лот: 11761 Квадратных Футов

    Другая Информация о Недвижимости

    • Номер Земельного Участка: 50434310030000142

    • Зонирование: R-B-Low Density

  • Тип и стиль

    • Тип недвижимости: Residential

    • Подтип недвижимости: Single Family Residence

  • Общественное благосостояние

    • Cable

    • Electric

    • Gas Natural

    • Public Sewer

    • Public Water

  • Другая финансовая информация

    • Годовая сумма налога: $40,495

  • Детали источника

    • MLS ID: RX-11135990

    Другие факты

    • Строительные материалы: CBS

    • Особенности двора и крыльца: Patio

    • Особенности бассейна: Inground

    • Направленные лица: Left on Bradley Place, which turns into North Lake Way. Home will be on the Right

    • Мест в гараже: 2

    • Гараж: Да

    • Жилая площадь: 3038

    • Размеры участка: 129 x 73 x 155

    • Название подразделения: Woods Landing

Похожие дома

2 Breakers, Palm Beach, FL 33480 placeholder 2 Breakers, Palm Beach, FL 33480
2 Дней
На продажу
Квартира
$7,500,000
3 спален 3 ванн 3,020 кв.фт.
2 Breakers, Palm Beach, FL 33480
259 Queens, Palm Beach, FL 33480 placeholder 259 Queens, Palm Beach, FL 33480
5 Дней
На продажу
Дом
$8,950,000
4 спален 4 ванн 3,172 кв.фт.
259 Queens, Palm Beach, FL 33480
1717 Flagler, West Palm Beach, FL 33407 placeholder 1717 Flagler, West Palm Beach, FL 33407
9 Дней
На продажу
Квартира
$6,601,900
3 спален 3 ванн 3,244 кв.фт.
1717 Flagler, West Palm Beach, FL 33407
1717 Flagler, West Palm Beach, FL 33407 placeholder 1717 Flagler, West Palm Beach, FL 33407
9 Дней
На продажу
Квартира
$7,547,900
4 спален 4 ванн 11,960 кв.фт.
1717 Flagler, West Palm Beach, FL 33407
1717 Flagler, West Palm Beach, FL 33407 placeholder 1717 Flagler, West Palm Beach, FL 33407
9 Дней
На продажу
Квартира
$5,822,900
3 спален 3 ванн 11,960 кв.фт.
1717 Flagler, West Palm Beach, FL 33407
272 Sandpiper, Palm Beach, FL 33480 placeholder 272 Sandpiper, Palm Beach, FL 33480
13 Дней
На продажу
Дом
$8,950,000
3 спален 3 ванн 3,120 кв.фт.
272 Sandpiper, Palm Beach, FL 33480
200 Arkona, West Palm Beach, FL 33401 placeholder 200 Arkona, West Palm Beach, FL 33401
16 Дней
На продажу
Квартира
$9,495,000
3 спален 3 ванн 3,834 кв.фт.
200 Arkona, West Palm Beach, FL 33401
261 El Dorado, Palm Beach, FL 33480 placeholder 261 El Dorado, Palm Beach, FL 33480
16 Дней
На продажу
Дом
$9,495,000
3 спален 3 ванн 2,738 кв.фт.
261 El Dorado, Palm Beach, FL 33480

The multiple listing information is provided by the Beaches MLS from a copyrighted compilation of listings. The compilation of listings and each individual listing are ©2025-present Beaches MLS. All Rights Reserved. The information provided is for consumers' personal, noncommercial use and may not be used for any purpose other than to identify prospective properties consumers may be interested in purchasing. All properties are subject to prior sale or withdrawal. All information provided is deemed reliable but is not guaranteed accurate, and should be independently verified. Listing courtesy of: Sotheby's Intl. Realty, Inc.