Недвижимость
Ознакомьтесь с нашими объявлениями
Контакты
Расскажите нам о своих потребностях

6751 PORTSIDE LANE

Дом На продажу
$1,195,000

BTC: 17.73866332

ETH: 622.39583333

12 Дней
3 спален
3 ванн
3,156 кв.фт.
Est. Предполагаемый диапазон продаж: $0 - $0
$0

Обзор

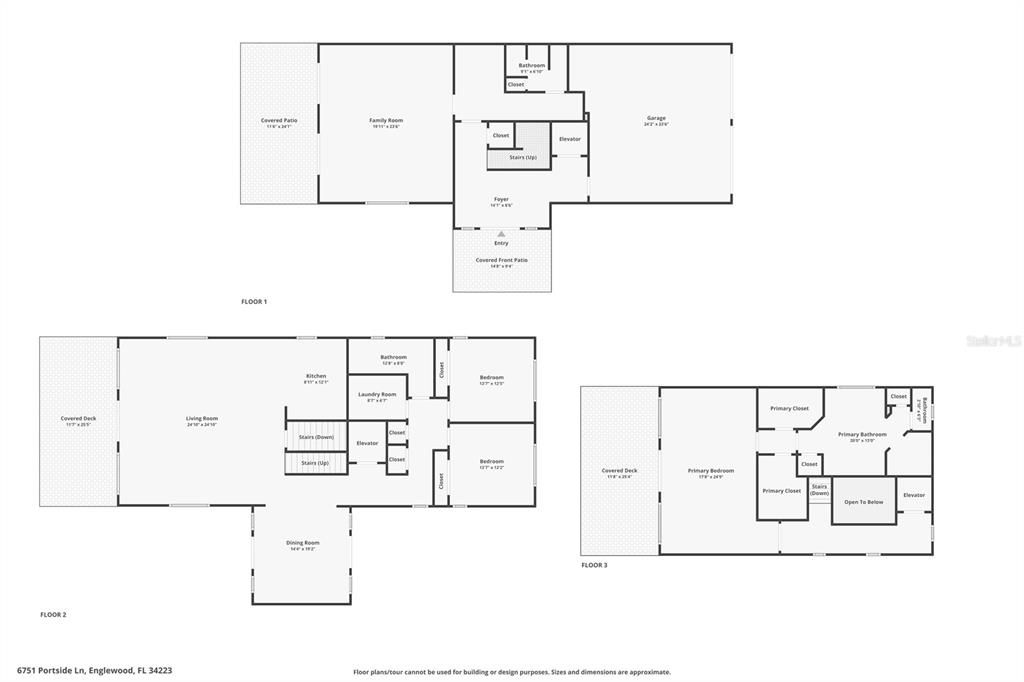
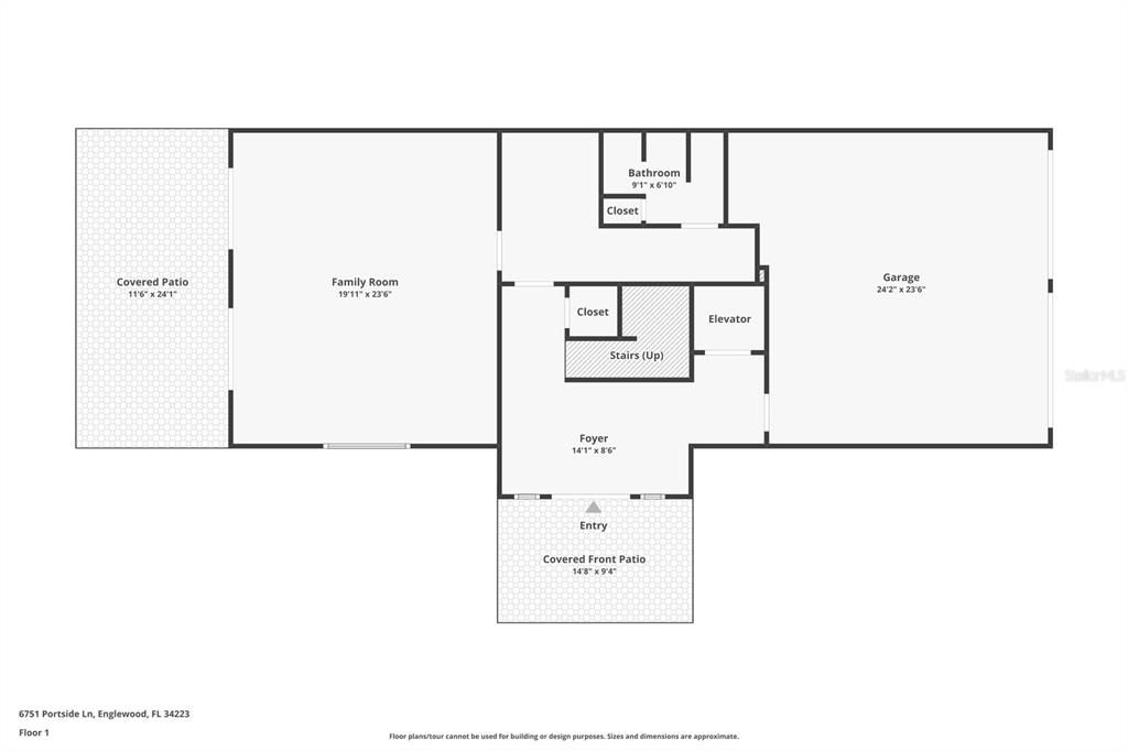
Welcome to Paradise on Earth, conveniently located in the heart of Englewood, Florida! This stunning KEY WEST style estate features one of the most beautiful SUNSET WATER VIEWS you'll find in all of SWFL. Enjoy the view of the INTERCOASTAL WATERWAY from three different spacious BALCONIES across THREE stories that offer plenty of room for relaxation. You'll notice tons of NATURAL LIGHT in each room of the property giving you a space that screams FLORIDA! The 1st floor features a foyer, access to the elevator, a large two-car garage (BRING YOUR TOYS) with epoxy flooring, fully updated bathroom with a washlet toilet, storage area, and a LARGE flex space under air that can be used as a living room, den, bedroom, office, gym, etc that leads to a covered patio with WATER VIEWS and ROOM FOR A HOT TUB. The 2nd floor that features a very large open living space combined with a gourmet kitchen outfitted with quartz countertops, stainless steel appliances, wine cooler, ice maker and stylish wood cabinetry. The space leads to a charming FORMAL DINING ROOM that is perfect for entertaining. You'll notice three CUSTOM SHELL CHANDLIERS throughout the property that tie the space together. The 2nd floor is also where you will find the two large guest bedrooms, updated bathroom, laundry room and elevator space that can take you back to the 1st floor or up to the 3rd floor. The open living space itself has enough room for a living room as well as an informal dining space and more as seen in the photos. The balcony on the 2nd floor is HUGE and is the perfect place to lounge with a STUNNING WATER & SUNSET VIEW and features ZINGAS blinds on both sides granting full privacy. The 3rd floor serves as a MASSIVE private primary suite with its own private balcony that grants an even better view of the Intercoastal Waterway. The primary bathroom features high quality quartz countertops, walk-in shower, jacuzzi tub and water closet as well as LED mirrors and two large walk-in closets just outside the bathroom space. You'll notice updated lighting and fans throughout the home offering a very modern Florida feel as well as crown molding and a custom tray ceiling in the formal dining room. Other features that stand out are the HURRICANE WINDOWS throughout the home, 50 YEAR METAL ROOF, updated air conditioning units and water heaters and more. This property has been super WELL MAINTAINED and has been REPAINTED inside and out for the new owner's convenience. The exterior features MULTIPLE outside spaces and is set up with a working irrigation system. The community of Mariners Landing is a gated community that offers a HEATED POOL and TWO COMMUNITY DOCKS that grant WATER ACCESS to the Gulf of Mexico/America through the nearby Stump Pass, as well as the Intercoastal Waterway and many hidden barrier islands and gems to explore such as Palm Island. This property is just around the corner from the famous Englewood Beach and Manasota Key Beach, Englewood Hospital, The Historic Dearborn Street, and tons of AMAZING restaurants, places to shop and more. You'll quickly notice that Englewood has tons of things to do, and so much nature to explore BUT WITHOUT the traffic that other areas on the coast of Florida have so getting around is very easy. Be sure to view the 3D Virtual Tour, view the floorplans and ask for the Feature Sheet. Schedule your showing TODAY!

Локация

Факты и особенности

Тип:
Residential
Парковка:
Нет данных
Год постройки:
2008
Лот:
0.19 Акров
Отопление:
Central
Цена/кв.фут:
$379
Охлаждение:
Central Air
HOA:
$320
Больше фактов и особенностей
  • Напольное покрытие

    • Carpet

    • Concrete

    • Laminate

    • Tile

    Отопление

    • Central

    Охлаждение

    • Central Air

    Бытовая техника

    • Convection Oven

    • Cooktop

    • Dishwasher

    • Dryer

    • Electric Water Heater

    • Microwave

    • Refrigerator

    • Tankless Water Heater

    • Washer

    Другие особенности интерьера

    • Ceiling Fan(s)

    • Crown Molding

    • Living Room/Dining Room Combo

    • Open Floorplan

    • PrimaryBedroom Upstairs

    • Stone Counters

    • Thermostat

    • Tray Ceiling(s)

    • Walk-In Closet(s)

    Спальни и ванные комнаты

    • Спальни: 3

    • Полные ванные комнаты: 3

  • Имущество

    • Этажи: Three Or More

    • Особенности Экстерьера: Irrigation System

    Лот

    • Лот: 0.19 Акров

    Другая Информация о Недвижимости

    • Номер Земельного Участка: 412006404011

    • Зонирование: RSF3.5

  • Тип и стиль

    • Тип недвижимости: Residential

    • Подтип недвижимости: Single Family Residence

  • Общественное благосостояние

    • BB/HS Internet Available

    • Cable Available

    • Electricity Connected

    • Public

    • Sewer Connected

    • Water Connected

  • Другая финансовая информация

    • HOA: $320

    • Частота HOA: Monthly

    • Годовая сумма налога: $12,935

  • Детали источника

    • MLS ID: C7519349

    Другие факты

    • Строительные материалы: Block / Stucco

    • Детали фундамента: Slab

    • Особенности прачечной: Laundry Room

    • Особенности двора и крыльца: Covered

    • Особенности окна: Storm Window(s)

    • Направленные лица: East

    • Архитектурный стиль: Key West

    • Мест в гараже: 2

    • Прикрепленный гараж: Да

    • Гараж: Да

    • Жилая площадь: 3156

    • Источник воды: Public

    • Название подразделения: MARINERS LNDG A

Похожие дома

16 SOUTHWIND DRIVE placeholder 16 SOUTHWIND DRIVE
Новое
На продажу
Участки / Земля
$900,000
0 room(s)
16 SOUTHWIND DRIVE
5056 N BEACH ROAD UNIT 202 placeholder 5056 N BEACH ROAD UNIT 202
6 Дней
На продажу
Квартира
$1,399,900
3 спален 2 ванн 2,639 кв.фт.
5056 N BEACH ROAD UNIT 202
4065 N BEACH ROAD UNIT A placeholder 4065 N BEACH ROAD UNIT A
10 Дней
На продажу
Дом
$839,000
2 спален 2 ванн 1,118 кв.фт.
4065 N BEACH ROAD UNIT A
2950 N BEACH ROAD UNIT B522 placeholder 2950 N BEACH ROAD UNIT B522
23 Дней
На продажу
Квартира
$1,200,000
3 спален 3 ванн 1,590 кв.фт.
2950 N BEACH ROAD UNIT B522
1120 SHORE VIEW DRIVE UNIT D placeholder 1120 SHORE VIEW DRIVE UNIT D
23 Дней
На продажу
Участки / Земля
$1,375,000
0 room(s)
1120 SHORE VIEW DRIVE UNIT D
1360 HOLIDAY DRIVE UNIT A & B placeholder 1360 HOLIDAY DRIVE UNIT A & B
23 Дней
На продажу
Многосемейный
$850,000
3 спален 1,320 кв.фт.
1360 HOLIDAY DRIVE UNIT A & B
3030 N BEACH ROAD UNIT C placeholder 3030 N BEACH ROAD UNIT C
27 Дней
На продажу
Дом
$1,300,000
2 спален 2 ванн 1,261 кв.фт.
3030 N BEACH ROAD UNIT C
7089 PINEBAY BOULEVARD placeholder 7089 PINEBAY BOULEVARD
28 Дней
На продажу
Дом
$995,000
3 спален 2 ванн 1,570 кв.фт.
7089 PINEBAY BOULEVARD

The multiple listing information is provided by the Stellar MLS from a copyrighted compilation of listings. The compilation of listings and each individual listing are ©2026-present Stellar MLS. All Rights Reserved. The information provided is for consumers' personal, noncommercial use and may not be used for any purpose other than to identify prospective properties consumers may be interested in purchasing. All properties are subject to prior sale or withdrawal. All information provided is deemed reliable but is not guaranteed accurate, and should be independently verified. Listing courtesy of: ERA ADVANTAGE REALTY, INC.