Недвижимость
Ознакомьтесь с нашими объявлениями
Контакты
Расскажите нам о своих потребностях

8566 SAINT KITTS CIRCLE

Дом На продажу
$549,000

BTC: 8.14939428

ETH: 285.93750000

21 Дней
4 спален
2 ванн
2,239 кв.фт.
Est. Предполагаемый диапазон продаж: $0 - $0
$0

Обзор

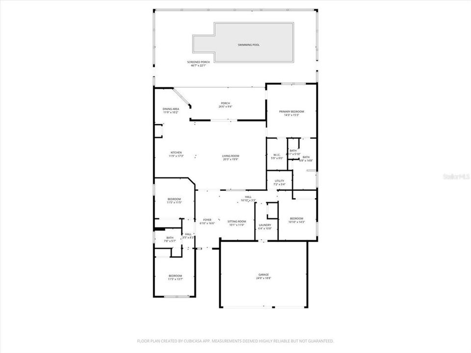
Located within the gated community of Island Lakes at Coco Bay, this beautifully appointed 4-bedroom, 2-bath residence offers 2,244 square feet of thoughtfully designed living space paired with serene outdoor views. The home features a heated pool overlooking a pristine pond with a protected preserve backdrop, creating a private and tranquil setting rarely found so close to the Gulf beaches. Inside, the layout balances openness and functionality, ideal for both everyday living and entertaining. Situated in an X500 flood zone, the property offers added peace of mind while maintaining proximity to coastal amenities. Residents of Island Lakes enjoy access to an impressive amenity center featuring four pickleball courts, a resort-style heated pool, fitness center, pavilion, and playground. A refined opportunity to enjoy Florida living with privacy, security, and convenience—all just minutes from Englewood’s beaches, dining, and shopping.

Локация

Факты и особенности

Тип:
Residential
Парковка:
Нет данных
Год постройки:
2024
Лот:
0.22 Акров
Отопление:
Central / Electric
Цена/кв.фут:
$245
Охлаждение:
Central Air
HOA:
$897
Больше фактов и особенностей
  • Напольное покрытие

    • Ceramic Tile

    Отопление

    • Central

    • Electric

    Охлаждение

    • Central Air

    Бытовая техника

    • Dishwasher

    • Dryer

    • Microwave

    • Range

    • Refrigerator

    • Washer

    Другие особенности интерьера

    • Built-in Features

    • Ceiling Fan(s)

    • Eating Space In Kitchen

    • Kitchen/Family Room Combo

    • Living Room/Dining Room Combo

    • Open Floorplan

    • Primary Bedroom Main Floor

    • Split Bedroom

    • Stone Counters

    • Thermostat

    • Tray Ceiling(s)

    • Walk-In Closet(s)

    Спальни и ванные комнаты

    • Спальни: 4

    • Полные ванные комнаты: 2

  • Имущество

    • Этажи: One

    • Частный Бассейн: Да

    • Особенности Экстерьера: Lighting / Rain Gutters / Sidewalk / Sliding Doors

    Лот

    • Лот: 0.22 Акров

    Другая Информация о Недвижимости

    • Номер Земельного Участка: 412016308007

    • Зонирование: RMF3.5

  • Тип и стиль

    • Тип недвижимости: Residential

    • Подтип недвижимости: Single Family Residence

  • Общественное благосостояние

    • BB/HS Internet Available

    • Cable Available

    • Electricity Connected

    • Public

    • Sewer Connected

    • Underground Utilities

    • Water Connected

  • Другая финансовая информация

    • HOA: $897

    • Частота HOA: Quarterly

    • Годовая сумма налога: $8,344

  • Детали источника

    • MLS ID: A4675318

    Другие факты

    • Строительные материалы: Stucco

    • Детали фундамента: Slab

    • Особенности прачечной: Inside / Laundry Room

    • Особенности лота: Unincorporated

    • Особенности двора и крыльца: Covered / Deck / Patio / Screened

    • Особенности бассейна: In Ground / Screen Enclosure

    • Направленные лица: Southeast

    • Архитектурный стиль: Florida

    • Мест в гараже: 3

    • Прикрепленный гараж: Да

    • Гараж: Да

    • Жилая площадь: 2239

    • Источник воды: Public

    • Название подразделения: COCO BAY

Похожие дома

248 ROTONDA CIRCLE placeholder 248 ROTONDA CIRCLE
1 Дней
На продажу
Дом
$409,900
3 спален 2 ванн 1,542 кв.фт.
248 ROTONDA CIRCLE
7096 TICONDEROGA STREET placeholder 7096 TICONDEROGA STREET
1 Дней
На продажу
Дом
$384,900
3 спален 2 ванн 1,759 кв.фт.
7096 TICONDEROGA STREET
8571 AMBERJACK CIRCLE UNIT 402 placeholder 8571 AMBERJACK CIRCLE UNIT 402
2 Дней
На продажу
Квартира
$629,000
4 спален 3 ванн 2,856 кв.фт.
8571 AMBERJACK CIRCLE UNIT 402
857 E 3RD STREET placeholder 857 E 3RD STREET
2 Дней
На продажу
Дом
$424,900
2 спален 2 ванн 1,144 кв.фт.
857 E 3RD STREET
9266 CLEWISTON TERRACE placeholder 9266 CLEWISTON TERRACE
4 Дней
На продажу
Дом
$525,000
3 спален 2 ванн 1,517 кв.фт.
9266 CLEWISTON TERRACE
1401 BEACH ROAD UNIT 303 placeholder 1401 BEACH ROAD UNIT 303
5 Дней
На продажу
Квартира
$599,900
2 спален 3 ванн 1,217 кв.фт.
1401 BEACH ROAD UNIT 303
9203 GRIGGS ROAD UNIT A302 placeholder 9203 GRIGGS ROAD UNIT A302
7 Дней
На продажу
Квартира
$629,000
3 спален 2 ванн 1,913 кв.фт.
9203 GRIGGS ROAD UNIT A302
443 ROTONDA CIRCLE placeholder 443 ROTONDA CIRCLE
9 Дней
На продажу
Дом
$428,000
3 спален 2 ванн 1,871 кв.фт.
443 ROTONDA CIRCLE

The multiple listing information is provided by the Stellar MLS from a copyrighted compilation of listings. The compilation of listings and each individual listing are ©2026-present Stellar MLS. All Rights Reserved. The information provided is for consumers' personal, noncommercial use and may not be used for any purpose other than to identify prospective properties consumers may be interested in purchasing. All properties are subject to prior sale or withdrawal. All information provided is deemed reliable but is not guaranteed accurate, and should be independently verified. Listing courtesy of: EXP REALTY LLC