Недвижимость
Ознакомьтесь с нашими объявлениями
Контакты
Расскажите нам о своих потребностях

935 CHICKADEE DRIVE

Дом Под контрактом
$325,000

BTC: 3.76375217

ETH: 111.07313739

5 Дней
3 спален
2 ванн
1,558 кв.фт.
Est. Предполагаемый диапазон продаж: $0 - $0
$0

Обзор

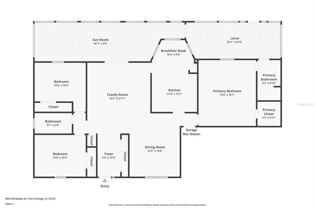
Multiple offer situation. Seller is asking for HIGHEST and BEST by Monday, 11/24/25, 10 AM. Welcome to your new home in Cypress Cove, a well-established Port Orange neighborhood where comfort and convenience come together. This single-story ranch-style home sits on a spacious .26 acre lot and offers valuable recent upgrades, including a NEW ROOF in 2024 and a NEW AC system in 2022. ONLY 4 miles from the beach! The floor plan is designed for easy everyday living. As you enter through the foyer, the home opens into a large family room with tall ceiling heights and natural light that creates an open and inviting feel. The family room flows into the dining area, giving you plenty of space to gather and entertain. The kitchen sits at the center of the home and includes a breakfast nook overlooking the sunroom. The split bedroom layout places the primary suite on its own side of the home for privacy. From the primary bedroom, you can step directly into the lanai, creating a private indoor-outdoor retreat. The additional bedrooms are positioned on the opposite side with convenient access to the second bathroom. Enjoy two separate indoor flex spaces along the back of the home. The sun room spans nearly the full width of the house, and the adjoining lanai gives you even more opportunities to relax or entertain. Outside, the lot provides generous yard space with room to garden, play, or simply unwind. The landscaping has been lovingly maintained and reflects true pride of ownership. Cypress Cove is known for its quiet streets, strong neighborhood value, and steady demand. You are close to excellent schools, shopping, major roads, and the beach. Everything that makes the Port Orange and Daytona Beach lifestyle so enjoyable is just minutes away. Come experience the comfort, location, and easy Florida living this home has to offer, and make this home your next move!

Локация

Факты и особенности

Тип:
Residential
Парковка:
Нет данных
Год постройки:
1988
Лот:
0.26 Акров
Отопление:
Central
Цена/кв.фут:
$209
Охлаждение:
Central Air
HOA:
Нет данных
Больше фактов и особенностей
  • Напольное покрытие

    • Carpet

    • Tile

    Отопление

    • Central

    Охлаждение

    • Central Air

    Бытовая техника

    • Dishwasher

    • Disposal

    • Dryer

    • Microwave

    • Range

    • Refrigerator

    • Washer

    Другие особенности интерьера

    • High Ceilings

    • Skylight(s)

    • Split Bedroom

    • Walk-In Closet(s)

    • Window Treatments

    Спальни и ванные комнаты

    • Спальни: 3

    • Полные ванные комнаты: 2

  • Имущество

    • Этажи: One

    • Особенности Экстерьера: Irrigation System / Rain Gutters / Sidewalk

    Лот

    • Лот: 0.26 Акров

    Другая Информация о Недвижимости

    • Номер Земельного Участка: 631705000280

    • Зонирование: 16R10SF

  • Тип и стиль

    • Тип недвижимости: Residential

    • Подтип недвижимости: Single Family Residence

  • Общественное благосостояние

    • BB/HS Internet Available

    • Cable Available

    • Electricity Connected

    • Sewer Connected

    • Water Connected

  • Другая финансовая информация

    • Годовая сумма налога: $1,667

  • Детали источника

    • MLS ID: O6361572

    Другие факты

    • Строительные материалы: Block / Stucco

    • Детали фундамента: Slab

    • Особенности прачечной: In Garage

    • Направленные лица: West

    • Мест в гараже: 2

    • Прикрепленный гараж: Да

    • Гараж: Да

    • Жилая площадь: 1558

    • Источник воды: Public

    • Название подразделения: CYPRESS COVE PH 01 REP

Похожие дома

1242 THOMASINA DRIVE placeholder 1242 THOMASINA DRIVE
6 Дней
Под контрактом
Дом
$364,900
3 спален 2 ванн 1,308 кв.фт.
1242 THOMASINA DRIVE
871 SUGAR HOUSE DRIVE placeholder 871 SUGAR HOUSE DRIVE
6 Дней
Под контрактом
Дом
$325,000
3 спален 2 ванн 1,753 кв.фт.
871 SUGAR HOUSE DRIVE
1093 OAK FOREST CIRCLE placeholder 1093 OAK FOREST CIRCLE
8 Дней
Под контрактом
Дом
$235,000
2 спален 2 ванн 1,154 кв.фт.
1093 OAK FOREST CIRCLE
3769 GROVE VIEW LANE placeholder 3769 GROVE VIEW LANE
10 Дней
Под контрактом
Дом
$350,000
3 спален 2 ванн 1,769 кв.фт.
3769 GROVE VIEW LANE
1626 WOODACRES COURT placeholder 1626 WOODACRES COURT
12 Дней
Под контрактом
Дом
$289,900
3 спален 2 ванн 1,284 кв.фт.
1626 WOODACRES COURT
2941 LANTERN DRIVE placeholder 2941 LANTERN DRIVE
42 Дней
Под контрактом
Дом
$333,800
3 спален 2 ванн 1,272 кв.фт.
2941 LANTERN DRIVE
5585 LANCEWOOD CIRCLE S placeholder 5585 LANCEWOOD CIRCLE S
-$39K (2025/11/19)
Под контрактом
Дом
$250,000
3 спален 2 ванн 1,408 кв.фт.
5585 LANCEWOOD CIRCLE S
224 BOB WHITE COURT UNIT 224 placeholder 224 BOB WHITE COURT UNIT 224
51 Дней
Под контрактом
Квартира
$240,000
3 спален 2 ванн 1,668 кв.фт.
224 BOB WHITE COURT UNIT 224

The multiple listing information is provided by the Stellar MLS from a copyrighted compilation of listings. The compilation of listings and each individual listing are ©2025-present Stellar MLS. All Rights Reserved. The information provided is for consumers' personal, noncommercial use and may not be used for any purpose other than to identify prospective properties consumers may be interested in purchasing. All properties are subject to prior sale or withdrawal. All information provided is deemed reliable but is not guaranteed accurate, and should be independently verified. Listing courtesy of: KELLER WILLIAMS ADVANTAGE REALTY