Недвижимость
Ознакомьтесь с нашими объявлениями
Контакты
Расскажите нам о своих потребностях

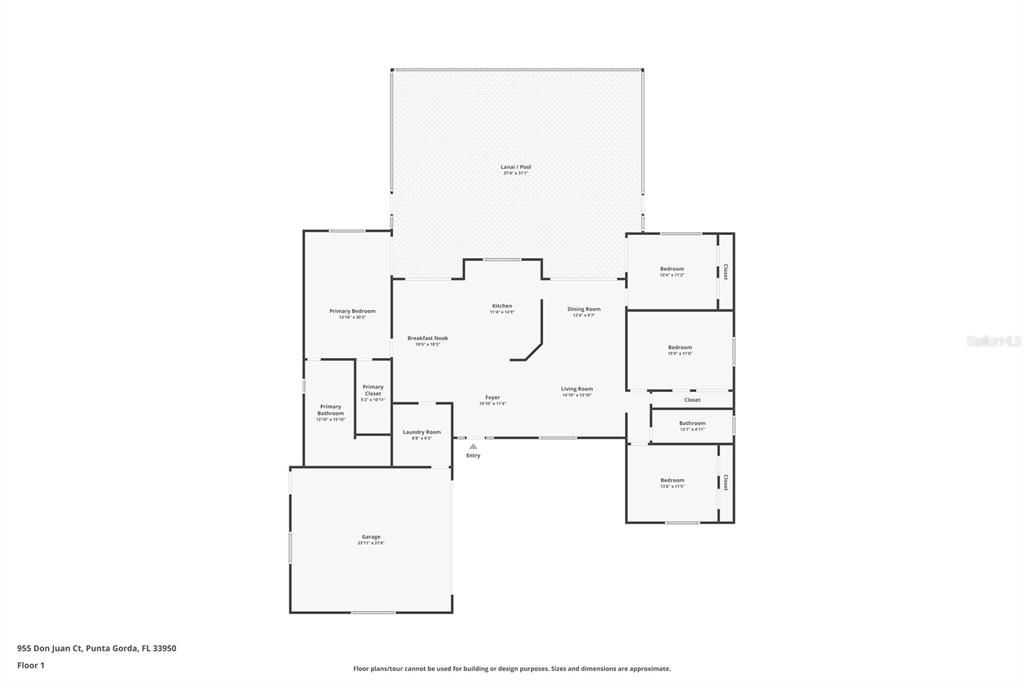
955 DON JUAN COURT

Дом На продажу
$564,000

BTC: 5.93684211

ETH: 181.93548387

-$66K (2025/10/01)
289 Дней
Набережная
4 спален
2 ванн
1,932 кв.фт.
Est. Предполагаемый диапазон продаж: $0 - $0
$0

Обзор

Welcome to this beautifully maintained single-family home nestled in Punta Gorda Isles. This inviting home offers a perfect balance of comfort, style, and convenience, making it the ideal choice for those looking to settle in a peaceful yet vibrant community. This home features a spacious 2,017 square feet of living space, thoughtfully designed to provide both functionality and warmth. With 4 generously sized bedrooms and 2 full bathrooms, the home is perfect for families, retirees, or anyone seeking an idyllic Florida lifestyle. Built in 1974, the home has been well-maintained and updated to offer modern amenities while preserving its charming character. Upon entering, you are greeted by a bright and open floor plan that seamlessly connects the living, dining, and kitchen areas. Large windows throughout the home allow for plenty of natural light, creating a welcoming and airy atmosphere. The neutral tones and elegant tile flooring add a touch of sophistication to the interior, while also providing a low-maintenance and durable surface perfect for the Florida lifestyle. The spacious kitchen is a chef’s dream, featuring ample counter space, plenty of cabinetry, and modern appliances, making it ideal for preparing meals and entertaining guests. Whether you're hosting a dinner party or preparing a quiet meal for the family, this kitchen provides the perfect setting. Adjacent to the kitchen is a cozy breakfast nook, offering a lovely spot to enjoy morning coffee while overlooking the lush backyard. The master suite is a tranquil retreat, complete with a generous walk-in closet and an en-suite bathroom for added privacy and convenience. The master bathroom features dual sinks, a large vanity, and a spacious shower, providing a relaxing environment to unwind after a long day. The two additional bedrooms are equally spacious, each offering plenty of closet space and easy access to the second full bathroom. One of the standout features of this home is its outdoor living space. Step outside onto the patio, where you can enjoy the warm Florida weather in your sparkling POOL and entertain guests in a private setting. The backyard offers plenty of room for gardening, pets, or simply relaxing under the Florida sun. The oversized lot ensures you have the space to create your own oasis, whether it’s adding a pool, outdoor kitchen, or additional landscaping. In addition to the spacious interior and beautiful outdoor spaces, 955 Don Juan Court also offers a two-car garage, providing secure parking and extra storage space. The home is surrounded by lush landscaping, contributing to the overall curb appeal and creating a serene environment. Located in the heart of Punta Gorda, this home offers exceptional convenience. You’re just minutes away from the best local dining, shopping, and recreational options the area has to offer.

Локация

Факты и особенности

Тип:
Residential
Парковка:
Driveway / Garage Faces Side
Год постройки:
1974
Лот:
0.29 Акров
Отопление:
Central / Electric
Цена/кв.фут:
$292
Охлаждение:
Central Air
HOA:
Нет данных
Больше фактов и особенностей
  • Напольное покрытие

    • Tile

    Отопление

    • Central

    • Electric

    Охлаждение

    • Central Air

    Бытовая техника

    • Cooktop

    • Dishwasher

    • Dryer

    • Electric Water Heater

    • Microwave

    • Refrigerator

    • Washer

    Другие особенности интерьера

    • Ceiling Fan(s)

    • High Ceilings

    • Living Room/Dining Room Combo

    • Open Floorplan

    • Primary Bedroom Main Floor

    Спальни и ванные комнаты

    • Спальни: 4

    • Полные ванные комнаты: 2

  • Парковка

    • Driveway

    • Garage Faces Side

    Имущество

    • Этажи: One

    • Частный Бассейн: Да

    • Особенности Экстерьера: Lighting / Private Mailbox

    Лот

    • Лот: 0.29 Акров

    Другая Информация о Недвижимости

    • Номер Земельного Участка: 412213153014

    • Зонирование: GS-3.5

  • Тип и стиль

    • Тип недвижимости: Residential

    • Подтип недвижимости: Single Family Residence

  • Общественное благосостояние

    • BB/HS Internet Available

    • Electricity Connected

    • Sewer Connected

    • Water Connected

  • Другая финансовая информация

    • Годовая сумма налога: $11,326

  • Детали источника

    • MLS ID: C7507258

    Другие факты

    • Строительные материалы: Block / Stucco

    • Детали фундамента: Slab

    • Особенности прачечной: Inside / Laundry Room

    • Особенности лота: Cul-De-Sac / Oversized Lot

    • Особенности двора и крыльца: Enclosed / Front Porch / Rear Porch / Screened

    • Особенности бассейна: In Ground

    • Особенности окна: Drapes

    • Направленные лица: Northeast

    • Берег: Да

    • Мест в гараже: 2

    • Прикрепленный гараж: Да

    • Гараж: Да

    • Жилая площадь: 1932

    • Источник воды: Public

    • Название подразделения: PUNTA GORDA ISLES SEC 14

Похожие дома

901 DON JUAN COURT placeholder 901 DON JUAN COURT
-$4K (2026/01/07)
На продажу
Дом
$594,000
3 спален 2 ванн 1,621 кв.фт.
901 DON JUAN COURT
200 CAPRI ISLES COURT placeholder 200 CAPRI ISLES COURT
Новое
На продажу
Дом
$599,000
3 спален 2 ванн 2,061 кв.фт.
200 CAPRI ISLES COURT
1765 JAMAICA WAY UNIT 101 placeholder 1765 JAMAICA WAY UNIT 101
Новое
На продажу
Квартира
$545,000
2 спален 2 ванн 2,129 кв.фт.
1765 JAMAICA WAY UNIT 101
1109 APPIAN DRIVE placeholder 1109 APPIAN DRIVE
1 Дней
На продажу
Дом
$725,000
3 спален 2 ванн 1,748 кв.фт.
1109 APPIAN DRIVE
25188 MARION AVENUE UNIT E301 placeholder 25188 MARION AVENUE UNIT E301
1 Дней
На продажу
Квартира
$399,000
3 спален 2 ванн 1,912 кв.фт.
25188 MARION AVENUE UNIT E301
4077 LA COSTA ISLAND COURT placeholder 4077 LA COSTA ISLAND COURT
2 Дней
На продажу
Дом
$595,000
3 спален 2 ванн 1,976 кв.фт.
4077 LA COSTA ISLAND COURT
95 N MARION COURT UNIT 233 placeholder 95 N MARION COURT UNIT 233
3 Дней
На продажу
Квартира
$510,000
3 спален 2 ванн 2,225 кв.фт.
95 N MARION COURT UNIT 233
2921 GUADALUPE DRIVE placeholder 2921 GUADALUPE DRIVE
4 Дней
На продажу
Дом
$499,900
2 спален 2 ванн 1,471 кв.фт.
2921 GUADALUPE DRIVE

The multiple listing information is provided by the Stellar MLS from a copyrighted compilation of listings. The compilation of listings and each individual listing are ©2026-present Stellar MLS. All Rights Reserved. The information provided is for consumers' personal, noncommercial use and may not be used for any purpose other than to identify prospective properties consumers may be interested in purchasing. All properties are subject to prior sale or withdrawal. All information provided is deemed reliable but is not guaranteed accurate, and should be independently verified. Listing courtesy of: GRANT TEAM REAL ESTATE, LLC