Недвижимость
Ознакомьтесь с нашими объявлениями
Контакты
Расскажите нам о своих потребностях

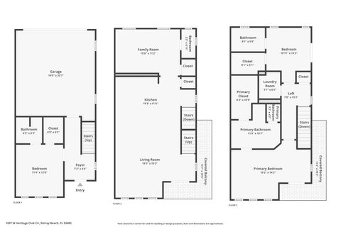
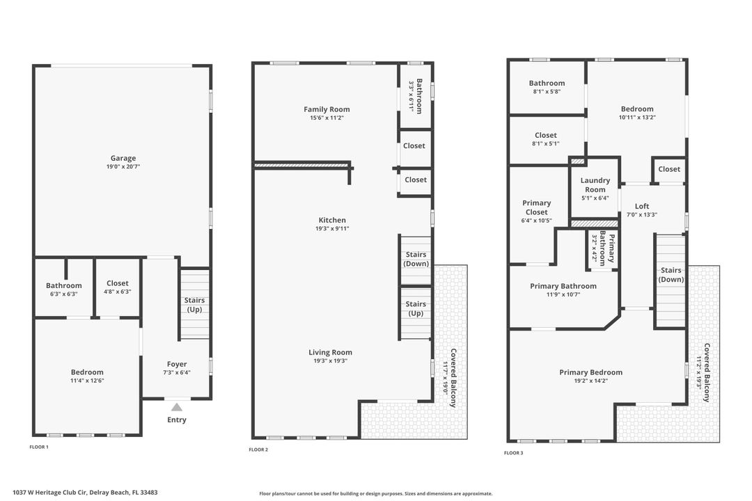
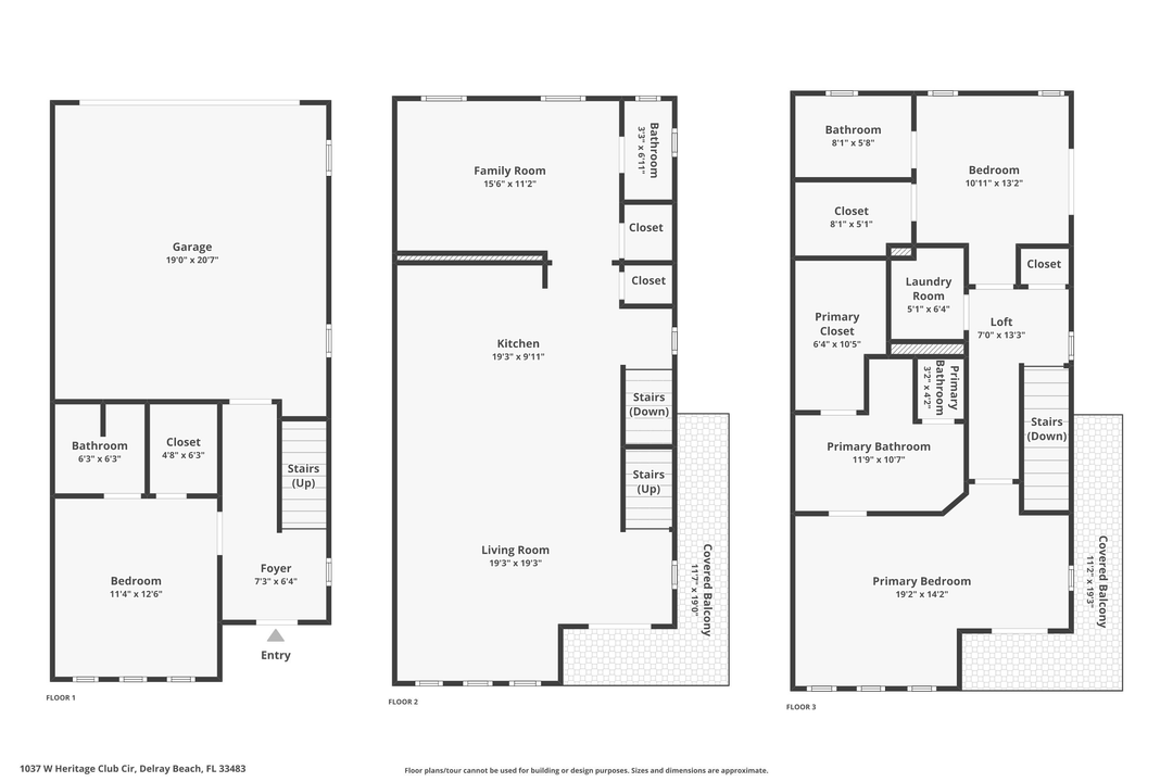
1037 Heritage Club, Delray Beach, FL 33483

Таунхаус На продажу
$800,000

BTC: 12.57861635

ETH: 421.05263158

2 Дней
3 спален
3 ванн
2,097 кв.фт.
Est. Предполагаемый диапазон продаж: $0 - $0
$0

Обзор

Hurry to see this Modern East Delray Corner Unit Townhouse conveniently located off Federal Hwy Between Atlantic and Linton. New in 2025- Roof, A/C, Bedroom Carpets, Kitchen Cabinets and Quartz Countertops/Backsplashes. Exterior is scheduled to be painted in 2026. All Three Bedrooms Boast Private Bathrooms and Walk in Closets. Impact Windows Throughout. Located Close to Beach and Atlantic Ave. Heritage Club Offers Community Pool, Dog Park, Playground, Basketball and Putting Green. The Charleston Model was Designed with a Formal Dining Room which is currently used as a Family Room.

Локация

Факты и особенности

Тип:
Residential
Парковка:
Garage - Attached
Год постройки:
2005
Лот:
1485 Квадратных Футов
Отопление:
Central / Electric
Цена/кв.фут:
$381
Охлаждение:
Central
HOA:
Нет данных
Больше фактов и особенностей
  • Напольное покрытие

    • Carpet

    • Tile

    • Wood Floor

    Отопление

    • Central

    • Electric

    Охлаждение

    • Central

    Бытовая техника

    • Auto Garage Open

    • Dishwasher

    • Dryer

    • Ice Maker

    • Microwave

    • Range - Electric

    • Refrigerator

    • Smoke Detector

    Другие особенности интерьера

    • Closet Cabinets

    • Fire Sprinkler

    • Split Bedroom

    • Walk-in Closet

    Спальни и ванные комнаты

    • Спальни: 3

    • Ванные: 1

    • Полные ванные комнаты: 3

  • Парковка

    • Garage - Attached

    Имущество

    • Особенности Экстерьера: Auto Sprinkler / Covered Balcony / Open Balcony / Wrap-Around Balcony

    Лот

    • Лот: 1485 Квадратных Футов

    Другая Информация о Недвижимости

    • Номер Земельного Участка: 12434621760000390

    • Зонирование: RM(cit

  • Тип и стиль

    • Тип недвижимости: Residential

    • Подтип недвижимости: Townhouse

  • Общественное благосостояние

    • Electric

    • Public Sewer

    • Public Water

  • Другая финансовая информация

    • Годовая сумма налога: $6,806

  • Детали источника

    • MLS ID: RX-11151786

    Другие факты

    • Строительные материалы: CBS

    • Особенности прачечной: Washer and Dryer

    • Особенности лота: < 1/4 Acre / Sidewalks

    • Особенности двора и крыльца: Balcony

    • Направленные лица: From Federal Hwy between Atlantic Ave and Linton go west on SE 10th. Heritage Club is 1st left west of Federal Hwy. The community is one circle. Okay to park on street in front of house when showing.

    • Мест в гараже: 2

    • Гараж: Да

    • Жилая площадь: 2097

    • Название подразделения: HERITAGE CLUB

Похожие дома

1286 Audubon, Delray Beach, FL 33444 placeholder 1286 Audubon, Delray Beach, FL 33444
1 Дней
На продажу
Дом
$595,000
2 спален 2 ванн 1,392 кв.фт.
1286 Audubon, Delray Beach, FL 33444
400 Seasage, Delray Beach, FL 33483 placeholder 400 Seasage, Delray Beach, FL 33483
2 Дней
На продажу
Квартира
$975,000
2 спален 2 ванн 1,760 кв.фт.
400 Seasage, Delray Beach, FL 33483
315 Venetian, Delray Beach, FL 33483 placeholder 315 Venetian, Delray Beach, FL 33483
2 Дней
На продажу
Квартира
$799,000
2 спален 2 ванн 1,170 кв.фт.
315 Venetian, Delray Beach, FL 33483
2604 Florida, Delray Beach, FL 33483 placeholder 2604 Florida, Delray Beach, FL 33483
2 Дней
На продажу
Таунхаус
$649,000
3 спален 2 ванн 1,845 кв.фт.
2604 Florida, Delray Beach, FL 33483
4143 2nd, Delray Beach, FL 33445 placeholder 4143 2nd, Delray Beach, FL 33445
3 Дней
На продажу
Дом
$825,000
3 спален 3 ванн 2,151 кв.фт.
4143 2nd, Delray Beach, FL 33445
3015 Ocean, Highland Beach, FL 33487 placeholder 3015 Ocean, Highland Beach, FL 33487
4 Дней
На продажу
Квартира
$975,000
3 спален 2 ванн 2,120 кв.фт.
3015 Ocean, Highland Beach, FL 33487
3958 Redondo, Boca Raton, FL 33487 placeholder 3958 Redondo, Boca Raton, FL 33487
6 Дней
На продажу
Дом
$670,000
3 спален 2 ванн 1,609 кв.фт.
3958 Redondo, Boca Raton, FL 33487
3300 Ocean, Highland Beach, FL 33487 placeholder 3300 Ocean, Highland Beach, FL 33487
6 Дней
На продажу
Квартира
$565,000
2 спален 2 ванн 1,201 кв.фт.
3300 Ocean, Highland Beach, FL 33487

The multiple listing information is provided by the Beaches MLS from a copyrighted compilation of listings. The compilation of listings and each individual listing are ©2026-present Beaches MLS. All Rights Reserved. The information provided is for consumers' personal, noncommercial use and may not be used for any purpose other than to identify prospective properties consumers may be interested in purchasing. All properties are subject to prior sale or withdrawal. All information provided is deemed reliable but is not guaranteed accurate, and should be independently verified. Listing courtesy of: Siegel Real Estate LLC