Недвижимость
Ознакомьтесь с нашими объявлениями
Контакты
Расскажите нам о своих потребностях

17706 BROADLEAF LOOP

Таунхаус На продажу
$396,294

BTC: 13.20980000

ETH: 198.14700000

72 Дней
3 спален
2 ванн
1,706 кв.фт.
Est. Предполагаемый диапазон продаж: $0 - $0
$0

Обзор

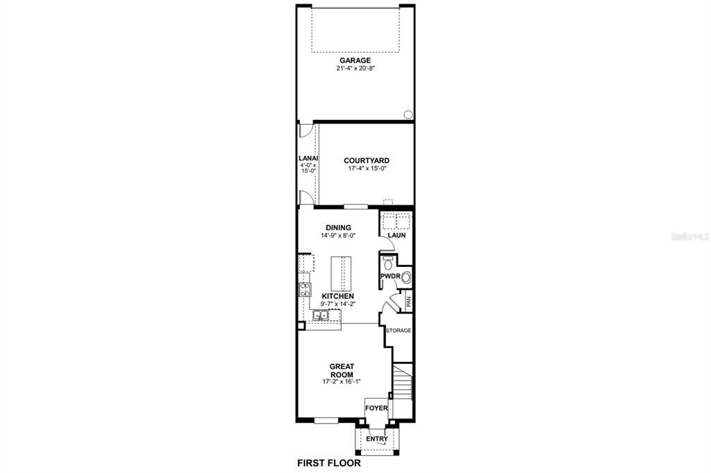
Under Construction. PRICED TO SELL! Welcome home to the Foxtail model, the latest Townhome built by M/I Homes. This beautiful home features 3 bedrooms, 2 1/2 bathrooms, an open concept great-room and kitchen and a 2-car garage. You'll enjoy the large owner's suite with walk-in closet as one of the highlights of this home. As you walk into the main living area, a spacious kitchen greets you with a large center island and additional counter space with quartz counter tops. The dining area provides a casual dining space, and a spacious great room is perfect for entertaining. Palmera at Wellen Park offers a wide array of resort-style amenities anchored by a stunning, coastal-inspired clubhouse including Golf Simulator, Fitness Center, Pickleball, Resort-Style Pool & Lap Lanes, Splash Pad, Playground, Fireside Lounge, Clubhouse, Gathering Lawn, and On-Site Dining. Visit us today! *Photos show pictures of a previous model, not all features are the same.

Локация

Факты и особенности

Тип:
Residential
Парковка:
Нет данных
Год постройки:
2025
Лот:
0.07 Акров
Отопление:
Electric
Цена/кв.фут:
$232
Охлаждение:
Central Air
HOA:
$380
Больше фактов и особенностей
  • Напольное покрытие

    • Carpet

    • Laminate

    • Tile

    • Hardwood

    Отопление

    • Electric

    Охлаждение

    • Central Air

    Бытовая техника

    • Dishwasher

    • Microwave

    • Range

    Другие особенности интерьера

    • High Ceilings

    • Open Floorplan

    • PrimaryBedroom Upstairs

    • Stone Counters

    • Walk-In Closet(s)

    Спальни и ванные комнаты

    • Спальни: 3

    • Ванные: 1

    • Полные ванные комнаты: 2

  • Имущество

    • Этажи: Two

    • Особенности Экстерьера: Irrigation System

    Лот

    • Лот: 0.07 Акров

    Другая Информация о Недвижимости

    • Номер Земельного Участка: 0805070117

  • Тип и стиль

    • Тип недвижимости: Residential

    • Подтип недвижимости: Townhouse

  • Общественное благосостояние

    • Cable Available

    • Electricity Available

    • Electricity Connected

    • Sewer Available

    • Sewer Connected

    • Water Available

    • Water Connected

  • Другая финансовая информация

    • HOA: $380

    • Частота HOA: Monthly

  • Детали источника

    • MLS ID: R4909983

    Другие факты

    • Строительные материалы: Block / Stucco

    • Детали фундамента: Slab

    • Особенности прачечной: Inside / Laundry Room

    • Особенности окна: Storm Window(s)

    • Направленные лица: West

    • Мест в гараже: 2

    • Прикрепленный гараж: Да

    • Гараж: Да

    • Жилая площадь: 1706

    • Источник воды: Public

    • Название подразделения: PALMERA AT WELLEN PARK

Похожие дома

19220 ISADORA STREET placeholder 19220 ISADORA STREET
2 Дней
На продажу
Дом
$425,000
3 спален 2 ванн 1,437 кв.фт.
19220 ISADORA STREET
13852 VADINI STREET placeholder 13852 VADINI STREET
3 Дней
На продажу
Дом
$459,000
2 спален 2 ванн 1,611 кв.фт.
13852 VADINI STREET
20181 RAGAZZA CIRCLE UNIT 101 placeholder 20181 RAGAZZA CIRCLE UNIT 101
3 Дней
На продажу
Квартира
$377,000
3 спален 2 ванн 1,706 кв.фт.
20181 RAGAZZA CIRCLE UNIT 101
295 FAREHAM DRIVE placeholder 295 FAREHAM DRIVE
5 Дней
На продажу
Дом
$387,500
4 спален 2 ванн 1,996 кв.фт.
295 FAREHAM DRIVE
20080 RAGAZZA CIRCLE UNIT 202 placeholder 20080 RAGAZZA CIRCLE UNIT 202
6 Дней
На продажу
Квартира
$399,000
3 спален 2 ванн 2,187 кв.фт.
20080 RAGAZZA CIRCLE UNIT 202
10768 TROPHY DRIVE placeholder 10768 TROPHY DRIVE
6 Дней
На продажу
Дом
$450,000
3 спален 2 ванн 1,858 кв.фт.
10768 TROPHY DRIVE
18002 FRANKLIN PARK COURT placeholder 18002 FRANKLIN PARK COURT
6 Дней
На продажу
Дом
$399,000
2 спален 2 ванн 1,524 кв.фт.
18002 FRANKLIN PARK COURT
17475 OPAL SAND DRIVE UNIT 103 placeholder 17475 OPAL SAND DRIVE UNIT 103
6 Дней
На продажу
Квартира
$419,900
2 спален 2 ванн 1,366 кв.фт.
17475 OPAL SAND DRIVE UNIT 103

The multiple listing information is provided by the Stellar MLS from a copyrighted compilation of listings. The compilation of listings and each individual listing are ©2025-present Stellar MLS. All Rights Reserved. The information provided is for consumers' personal, noncommercial use and may not be used for any purpose other than to identify prospective properties consumers may be interested in purchasing. All properties are subject to prior sale or withdrawal. All information provided is deemed reliable but is not guaranteed accurate, and should be independently verified. Listing courtesy of: M/I HOMES SWFL, LLC