Недвижимость
Ознакомьтесь с нашими объявлениями
Контакты
Расскажите нам о своих потребностях

203 46TH AVENUE

Таунхаус На продажу
$885,000

BTC: 9.95107109

ETH: 302.46069720

-$34K (2025/09/02)
165 Дней
3 спален
3 ванн
2,435 кв.фт.
Est. Предполагаемый диапазон продаж: $0 - $0
$0

Обзор

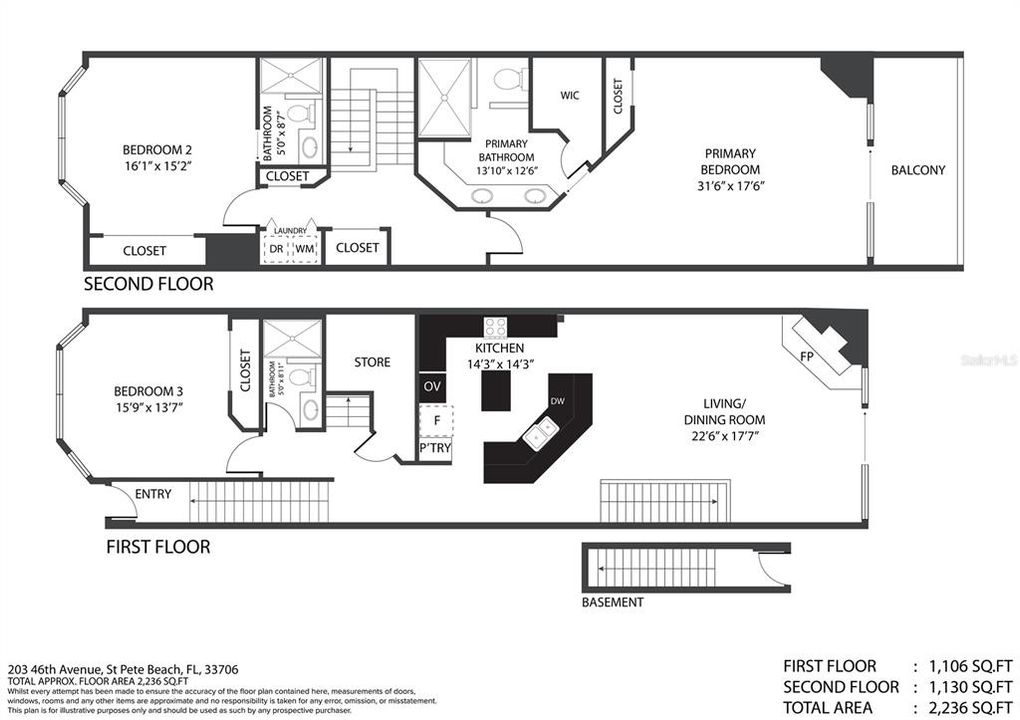
Tucked into the sought-after Dolphin Cove neighborhood just a block from St. Pete Beach, this spacious 3BR/3BA townhouse offers over 2,400 sqft of thoughtfully updated living space. With only 7 units in this complex, low association fees, and quiet neighborhood, this home is truly a dream! Recent improvements include a new roof (2025), new Boesch dishwasher (2025), fresh carpet in all bedrooms and stairs (2024 and 2025), new electrical junction box, up to code doors on first level, a new garage door (2024), and new Hardy board siding in the garage and first level storage. Also featuring a first floor water protected garage and storage -hardy board and tile walls and floor. The exterior has been upgraded with a brand-new deck (2025) leads to the pool area—complete with a doggy door for four-legged companions. Inside, enjoy a bright open layout with coffered ceilings, a fireplace, and a chef’s kitchen. A bonus room opens to a private patio surrounded by tropical landscaping. Upstairs, the primary suite features a private balcony, beautiful water views, and a custom walk-in closet. Additional features include impact resistant doors and windows. Located near World Famous Don Cesar, Starbucks, restaurants, Publix, Walgreens, and the beach. Come experience the charm, comfort, and character of this beachside retreat—you may not want to leave!

Локация

Факты и особенности

Тип:
Residential
Парковка:
Garage Door Opener / Under Building
Год постройки:
1993
Лот:
0.03 Акров
Отопление:
Central / Electric
Цена/кв.фут:
$363
Охлаждение:
Central Air
HOA:
$600
Больше фактов и особенностей
  • Напольное покрытие

    • Carpet

    • Tile

    Отопление

    • Central

    • Electric

    Охлаждение

    • Central Air

    Бытовая техника

    • Built-In Oven

    • Cooktop

    • Dishwasher

    • Disposal

    • Electric Water Heater

    • Microwave

    • Refrigerator

    Другие особенности интерьера

    • Ceiling Fan(s)

    • Crown Molding

    • Open Floorplan

    • Solid Wood Cabinets

    • Stone Counters

    • Tray Ceiling(s)

    • Vaulted Ceiling(s)

    Спальни и ванные комнаты

    • Спальни: 3

    • Полные ванные комнаты: 3

  • Парковка

    • Garage Door Opener

    • Under Building

    Имущество

    • Этажи: Three Or More

    • Особенности Экстерьера: Balcony / Lighting / Sliding Doors

    Лот

    • Лот: 0.03 Акров

    Другая Информация о Недвижимости

    • Номер Земельного Участка: 063216218110000020

  • Тип и стиль

    • Тип недвижимости: Residential

    • Подтип недвижимости: Townhouse

  • Общественное благосостояние

    • Cable Available

    • Electricity Available

    • Public

  • Другая финансовая информация

    • HOA: $600

    • Частота HOA: Quarterly

    • Годовая сумма налога: $8,880

  • Детали источника

    • MLS ID: TB8407129

    Другие факты

    • Строительные материалы: Other

    • Детали фундамента: Slab / Stem Wall

    • Особенности камина: Living Room / Non Wood Burning

    • Особенности прачечной: Inside

    • Особенности двора и крыльца: Covered / Enclosed / Porch / Rear Porch / Screened

    • Особенности бассейна: Gunite / In Ground

    • Направленные лица: Southwest

    • Камин: Да

    • Мест в гараже: 1

    • Прикрепленный гараж: Да

    • Гараж: Да

    • Жилая площадь: 2435

    • Источник воды: Public

    • Название подразделения: DOLPHIN COVE ST PETE BEACH

Похожие дома

5279 ISLA KEY BOULEVARD S UNIT 417 placeholder 5279 ISLA KEY BOULEVARD S UNIT 417
1 Дней
На продажу
Квартира
$949,000
2 спален 2 ванн 1,325 кв.фт.
5279 ISLA KEY BOULEVARD S UNIT 417
120 1ST STREET E UNIT 108 placeholder 120 1ST STREET E UNIT 108
3 Дней
На продажу
Таунхаус
$629,000
3 спален 3 ванн 2,205 кв.фт.
120 1ST STREET E UNIT 108
3207 W MARITANA DRIVE placeholder 3207 W MARITANA DRIVE
4 Дней
На продажу
Участки / Земля
$1,100,000
0 room(s)
3207 W MARITANA DRIVE
2962 E VINA DEL MAR BOULEVARD placeholder 2962 E VINA DEL MAR BOULEVARD
5 Дней
На продажу
Дом
$1,150,000
3 спален 2 ванн 1,690 кв.фт.
2962 E VINA DEL MAR BOULEVARD
7100 SUNSET WAY UNIT 405 placeholder 7100 SUNSET WAY UNIT 405
6 Дней
На продажу
Квартира
$670,000
2 спален 2 ванн 1,180 кв.фт.
7100 SUNSET WAY UNIT 405
4608 MIRABELLA COURT placeholder 4608 MIRABELLA COURT
7 Дней
На продажу
Таунхаус
$695,000
4 спален 4 ванн 2,275 кв.фт.
4608 MIRABELLA COURT
1101 80TH STREET COURT S placeholder 1101 80TH STREET COURT S
7 Дней
На продажу
Дом
$999,500
4 спален 2 ванн 2,613 кв.фт.
1101 80TH STREET COURT S
6855 GULF WINDS DRIVE placeholder 6855 GULF WINDS DRIVE
9 Дней
На продажу
Многосемейный
$1,050,000
5 спален 2,012 кв.фт.
6855 GULF WINDS DRIVE

The multiple listing information is provided by the Stellar MLS from a copyrighted compilation of listings. The compilation of listings and each individual listing are ©2025-present Stellar MLS. All Rights Reserved. The information provided is for consumers' personal, noncommercial use and may not be used for any purpose other than to identify prospective properties consumers may be interested in purchasing. All properties are subject to prior sale or withdrawal. All information provided is deemed reliable but is not guaranteed accurate, and should be independently verified. Listing courtesy of: REDFIN CORPORATION