Недвижимость
Ознакомьтесь с нашими объявлениями
Контакты
Расскажите нам о своих потребностях

3092 New York St # A1, Miami FL 33133

Таунхаус Недавно арендовано
$7,000

BTC: 0.08059873

ETH: 3.50000000

/mo
Дата продажи: 2025-05-10
21 Дней
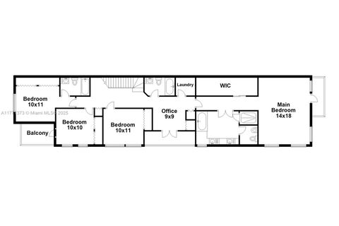
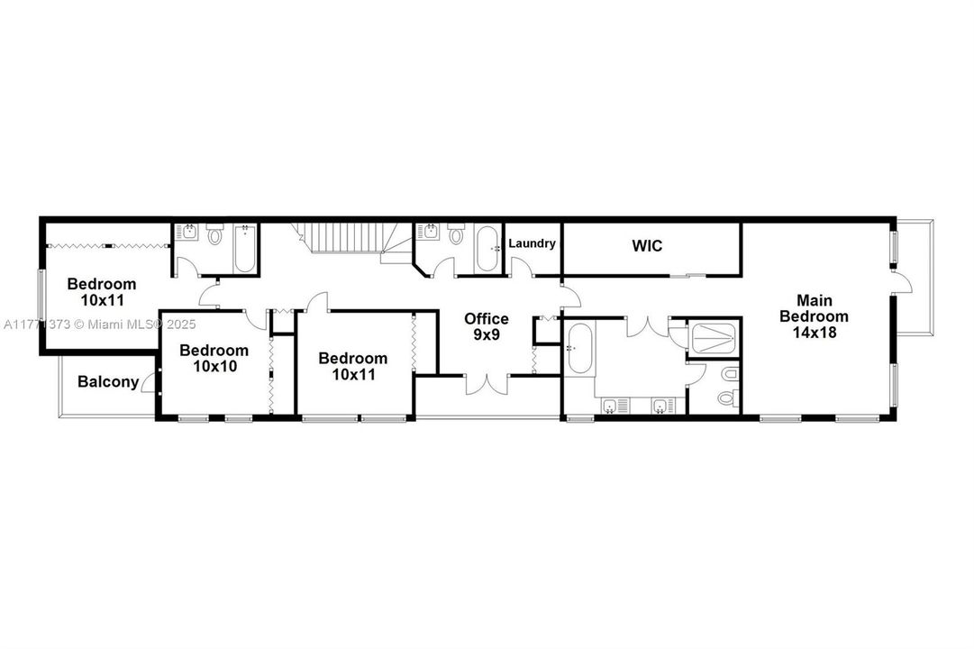
4 спален
3 ванн
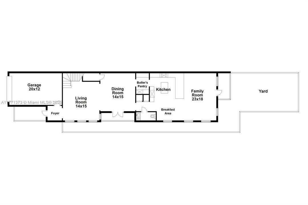
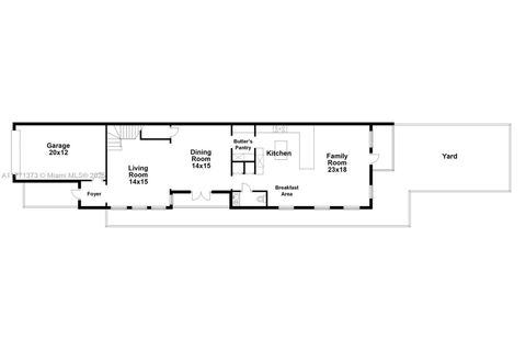
3,330 кв.фт.
Est. Предполагаемый диапазон продаж: $0 - $0
$0

Обзор

Gorgeous Coconut Grove Townhome with plenty of room for everyone. This gated townhome on a quiet street offers 3,330 sq ft, 4/3.5 + den/loft area, spacious & bright living areas, gourmet kitchen with butler’s pantry & 2 wine coolers. The kitchen opens to the large family room, which leads to the tropical patio surrounded by trees & lush vegetation, and it is perfect for entertaining. The grand primary bedroom has separate sitting area, balcony, walk-in California closet & luxurious bathroom. Additional features include 1-car garage with gated driveway, W/D upstairs, 2 AC units, impact doors & windows, 3 upstairs balconies, 10-foot ceilings, plenty of closet & storage spaces. Located a short walk, bike ride or drive to CocoWalk. Live the Grove lifestyle!

Локация

Факты и особенности

Тип:
Residential Lease
Парковка:
On Street
Год постройки:
2008
Лот:
Нет данных
Отопление:
Central / Electric
Цена/кв.фут:
$2
Охлаждение:
Central Air
HOA:
Нет данных
Больше фактов и особенностей
  • Напольное покрытие

    • Wood

    Отопление

    • Central

    • Electric

    Охлаждение

    • Central Air

    Бытовая техника

    • Electric Water Heater

    • Dishwasher

    • Dryer

    • Microwave

    • Electric Range

    • Refrigerator

    • Washer

    Другие особенности интерьера

    • First Floor Entry

    • Built-in Features

    • Closet Cabinetry

    • Cooking Island

    • Pantry

    • Roman Tub

    • Split Bedroom

    • Volume Ceilings

    • Walk-In Closet(s)

    • Den/Library/Office

    Спальни и ванные комнаты

    • Спальни: 4

    • Ванные: 1

    • Полные ванные комнаты: 3

  • Парковка

    • On Street

    Имущество

    • Особенности Экстерьера: Lighting / Open Balcony

    Другая Информация о Недвижимости

    • Номер Земельного Участка: 01-41-21-368-0020

    • Зонирование: 5700

  • Тип и стиль

    • Тип недвижимости: Residential Lease

    • Подтип недвижимости: Townhouse

  • Детали источника

    • MLS ID: A11771373

    Другие факты

    • Строительные материалы: Concrete Block Construction

    • Особенности лота: Less Than 1/4 Acre Lot

    • Особенности двора и крыльца: Porch/Balcony / Deck / Open Balcony / Patio

    • Особенности окна: Complete Impact Glass / Blinds / High Impact Windows

    • Архитектурный стиль: First Floor Entry

    • Мест в гараже: 1

    • Гараж: Да

    • Жилая площадь: 3330

    • Источник воды: Municipal Water

    • Название подразделения: INDIANA GROVE CONDO

Похожие дома

3102 Jackson Ave # A, Miami FL 33133 placeholder 3102 Jackson Ave # A, Miami FL 33133
Новое
Недавно арендовано
Таунхаус
$5,800 /mo
3 спален 2 ванн 1,970 кв.фт.
3102 Jackson Ave # A, Miami FL 33133
1700 SW 16th Ter, Miami FL 33145 placeholder 1700 SW 16th Ter, Miami FL 33145
Новое
Недавно арендовано
Дом
$6,000 /mo
3 спален 2 ванн 1,764 кв.фт.
1700 SW 16th Ter, Miami FL 33145
2831 S Bayshore Drive # 1005, Miami FL 33133 placeholder 2831 S Bayshore Drive # 1005, Miami FL 33133
Новое
Недавно арендовано
Квартира
$7,000 /mo
2 спален 2 ванн 1,184 кв.фт.
2831 S Bayshore Drive # 1005, Miami FL 33133
720 Coral Way # 11C, Coral Gables FL 33134 placeholder 720 Coral Way # 11C, Coral Gables FL 33134
Новое
Недавно арендовано
Квартира
$5,800 /mo
2 спален 2 ванн 1,594 кв.фт.
720 Coral Way # 11C, Coral Gables FL 33134
718 Valencia Ave # 203, Coral Gables FL 33134 placeholder 718 Valencia Ave # 203, Coral Gables FL 33134
Новое
Недавно арендовано
Квартира
$7,500 /mo
2 спален 2 ванн 2,117 кв.фт.
718 Valencia Ave # 203, Coral Gables FL 33134
2336 SW 17th St # 0, Miami FL 33145 placeholder 2336 SW 17th St # 0, Miami FL 33145
Новое
Недавно арендовано
Дом
$4,150 /mo
4 спален 2 ванн 1,856 кв.фт.
2336 SW 17th St # 0, Miami FL 33145
2924 Bird Avenue # 6, Coconut Grove FL 33133 placeholder 2924 Bird Avenue # 6, Coconut Grove FL 33133
Новое
Недавно арендовано
Таунхаус
$5,500 /mo
3 спален 3 ванн 1,889 кв.фт.
2924 Bird Avenue # 6, Coconut Grove FL 33133
4701 Santa Maria St, Coral Gables FL 33146 placeholder 4701 Santa Maria St, Coral Gables FL 33146
Новое
Недавно арендовано
Дом
$8,000 /mo
4 спален 4 ванн 3,080 кв.фт.
4701 Santa Maria St, Coral Gables FL 33146

The multiple listing information is provided by the Miami Association of REALTORS® from a copyrighted compilation of listings. The compilation of listings and each individual listing are ©2025-present Miami Association of REALTORS®. All Rights Reserved. The information provided is for consumers' personal, noncommercial use and may not be used for any purpose other than to identify prospective properties consumers may be interested in purchasing. All properties are subject to prior sale or withdrawal. All information provided is deemed reliable but is not guaranteed accurate, and should be independently verified. Listing courtesy of: Compass Florida, LLC.