Недвижимость
Ознакомьтесь с нашими объявлениями
Контакты
Расскажите нам о своих потребностях

311 VISTA CRUISER LANE

Таунхаус На продажу
$385,000

BTC: 12.83333333

ETH: 192.50000000

10 Дней
3 спален
2 ванн
1,547 кв.фт.
Est. Предполагаемый диапазон продаж: $0 - $0
$0

Обзор

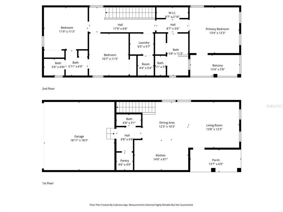
This stunning 3-bedroom, 2.5-bath townhome offers the perfect blend of style, comfort, and peace of mind. Outfitted with hurricane shutters, impact windows, and a hurricane-rated garage door, the home ensures lasting security while sitting just moments from local fire stations for added reassurance. A brick-paved walkway and covered front porch create a warm welcome, leading into an inviting open-concept living, dining, and kitchen space adorned with elegant diagonal tile flooring, crown molding, and wide baseboards. The kitchen shines with 42" ebony cabinets, rounded granite countertops, a stylish tile backsplash, a spacious island perfect for casual dining, and a generous walk-in pantry. Your half bath is conveniently located off the hallway that also leads to your oversized 2-car garage. Upstairs, the primary suite feels like a private retreat, offering tray ceilings, a walk-in closet, and an en suite bath featuring an oversized step-in shower, private water closet, and dual-sink vanity. Step through your private door to a covered balcony—an ideal spot for morning coffee or evening breezes. Two additional bedrooms share a charming Jack-and-Jill bath, while the upstairs laundry room with shelving adds everyday practicality. The abundant guest parking make hosting effortless, and the community fire pit invites cozy gatherings and neighborhood connection. Enjoy maintenance-free, city-style living in an exceptional location just minutes from top-rated schools, parks, a spray park off Pine, beautiful beaches, Tampa International Airport, and a wide array of dining and shopping—including Walmart just a stone’s throw away. All furniture is negotiable, making this a beautifully simple, move-in-ready opportunity.

Локация

Факты и особенности

Тип:
Residential
Парковка:
Guest
Год постройки:
2015
Лот:
0.05 Акров
Отопление:
Central
Цена/кв.фут:
$249
Охлаждение:
Central Air
HOA:
$248
Больше фактов и особенностей
  • Напольное покрытие

    • Carpet

    • Luxury Vinyl

    • Tile

    Отопление

    • Central

    Охлаждение

    • Central Air

    Бытовая техника

    • Dishwasher

    • Disposal

    • Dryer

    • Microwave

    • Range

    • Refrigerator

    • Washer

    Другие особенности интерьера

    • Ceiling Fan(s)

    • High Ceilings

    • Living Room/Dining Room Combo

    • PrimaryBedroom Upstairs

    • Solid Surface Counters

    • Solid Wood Cabinets

    • Thermostat

    • Walk-In Closet(s)

    Спальни и ванные комнаты

    • Спальни: 3

    • Ванные: 1

    • Полные ванные комнаты: 2

  • Парковка

    • Guest

    Имущество

    • Этажи: Two

    • Особенности Экстерьера: Balcony / Hurricane Shutters

    Лот

    • Лот: 0.05 Акров

    Другая Информация о Недвижимости

    • Номер Земельного Участка: 142816379000000110

  • Тип и стиль

    • Тип недвижимости: Residential

    • Подтип недвижимости: Townhouse

  • Общественное благосостояние

    • Cable Connected

    • Electricity Connected

    • Sewer Connected

    • Water Connected

  • Другая финансовая информация

    • HOA: $248

    • Частота HOA: Monthly

    • Годовая сумма налога: $3,551

  • Детали источника

    • MLS ID: TB8450597

    Другие факты

    • Строительные материалы: Block / Stucco

    • Детали фундамента: Slab

    • Особенности прачечной: Laundry Room

    • Особенности окна: Blinds / Shutters

    • Направленные лица: Northeast

    • Мест в гараже: 2

    • Прикрепленный гараж: Да

    • Гараж: Да

    • Жилая площадь: 1547

    • Источник воды: Public

    • Название подразделения: HAYES PARK VILLAGE

Похожие дома

5 N HAYES ROAD placeholder 5 N HAYES ROAD
Новое
На продажу
Дом
$499,900
5 спален 2 ванн 2,340 кв.фт.
5 N HAYES ROAD
12355 BAYOU FLATS LANE placeholder 12355 BAYOU FLATS LANE
Новое
На продажу
Таунхаус
$370,000
3 спален 2 ванн 1,816 кв.фт.
12355 BAYOU FLATS LANE
215 CLAYS TRAIL UNIT 215 placeholder 215 CLAYS TRAIL UNIT 215
1 Дней
На продажу
Квартира
$325,000
2 спален 2 ванн 1,237 кв.фт.
215 CLAYS TRAIL UNIT 215
648 TIMBER BAY CIRCLE E placeholder 648 TIMBER BAY CIRCLE E
2 Дней
На продажу
Дом
$379,000
4 спален 2 ванн 1,253 кв.фт.
648 TIMBER BAY CIRCLE E
814 SATINLEAF AVENUE placeholder 814 SATINLEAF AVENUE
-$18K (2025/12/02)
На продажу
Дом
$435,000
3 спален 2 ванн 1,688 кв.фт.
814 SATINLEAF AVENUE
8128 MUDDY PINES PLACE placeholder 8128 MUDDY PINES PLACE
3 Дней
На продажу
Таунхаус
$409,000
3 спален 2 ванн 1,816 кв.фт.
8128 MUDDY PINES PLACE
612 BALDWIN AVENUE UNIT C placeholder 612 BALDWIN AVENUE UNIT C
6 Дней
На продажу
Квартира
$280,000
3 спален 2 ванн 1,230 кв.фт.
612 BALDWIN AVENUE UNIT C
1206 SAWGRASS COURT placeholder 1206 SAWGRASS COURT
13 Дней
На продажу
Дом
$323,000
3 спален 2 ванн 1,204 кв.фт.
1206 SAWGRASS COURT

The multiple listing information is provided by the Stellar MLS from a copyrighted compilation of listings. The compilation of listings and each individual listing are ©2025-present Stellar MLS. All Rights Reserved. The information provided is for consumers' personal, noncommercial use and may not be used for any purpose other than to identify prospective properties consumers may be interested in purchasing. All properties are subject to prior sale or withdrawal. All information provided is deemed reliable but is not guaranteed accurate, and should be independently verified. Listing courtesy of: KELLER WILLIAMS REALTY- PALM H