Недвижимость
Ознакомьтесь с нашими объявлениями
Контакты
Расскажите нам о своих потребностях

514 7th, Delray Beach, FL 33483

Таунхаус На продажу
$3,825,000

BTC: 44.29646786

ETH: 1,307.24538619

39 Дней
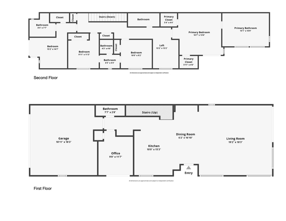
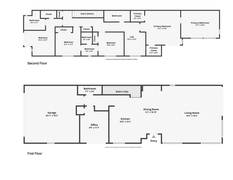
4 спален
3 ванн
3,001 кв.фт.
Est. Предполагаемый диапазон продаж: $0 - $0
$0

Обзор

Less than a mile to the beach and a few blocks to Atlantic Ave, this 2024-built residence delivers a high-end Delray Beach lifestyle with the sophistication of modern new construction. It offers 4 bedrooms, 3 full baths upstairs and a half bath plus a flexible office/den on the main level. A chef-inspired kitchen with natural gas, Thermador appliances, and a wine bar opens to the spacious living area. Smart-home features include a Control4 system, motorized Lutron shades, impact glass, built-in speakers, and whole-home Wi-Fi. Triple sliders lead to the heated saltwater pool and outdoor kitchen. The primary suite offers a terrace, spa-style bath, and two walk-in closets. With 10'+ ceilings, hardwood floors, a 2-car garage, and EV charger, this is your refined luxury retreat.

Локация

Факты и особенности

Тип:
Residential
Парковка:
2+ Spaces / Covered / Driveway / Garage - Attached
Год постройки:
2024
Лот:
4792 Квадратных Футов
Отопление:
Central / Electric
Цена/кв.фут:
$1,275
Охлаждение:
Central / Electric
HOA:
Нет данных
Больше фактов и особенностей
  • Напольное покрытие

    • Tile

    • Wood Floor

    Отопление

    • Central

    • Electric

    Охлаждение

    • Central

    • Electric

    Бытовая техника

    • Auto Garage Open

    • Cooktop

    • Dishwasher

    • Dryer

    • Microwave

    • Range - Electric

    • Refrigerator

    • Wall Oven

    • Washer

    • Water Heater - Gas

    Другие особенности интерьера

    • Built-in Shelves

    • Entry Lvl Lvng Area

    • Kitchen Island

    • Split Bedroom

    • Volume Ceiling

    • Walk-in Closet

    • Wet Bar

    Спальни и ванные комнаты

    • Спальни: 4

    • Ванные: 1

    • Полные ванные комнаты: 3

  • Парковка

    • 2+ Spaces

    • Covered

    • Driveway

    • Garage - Attached

    Имущество

    • Частный Бассейн: Да

    • Особенности Экстерьера: Auto Sprinkler / Built-in Grill / Covered Balcony / Covered Patio / Custom Lighting / Fence / Open Balcony / Open Patio / Summer Kitchen

    Лот

    • Лот: 4792 Квадратных Футов

    Другая Информация о Недвижимости

    • Номер Земельного Участка: 12434609240000521

    • Зонирование: RM(cit

  • Тип и стиль

    • Тип недвижимости: Residential

    • Подтип недвижимости: Townhouse

  • Общественное благосостояние

    • Cable

    • Electric

    • Gas Natural

    • Public Sewer

    • Public Water

  • Другая финансовая информация

    • Годовая сумма налога: $47,750

  • Детали источника

    • MLS ID: RX-11141298

    Другие факты

    • Строительные материалы: CBS / Concrete

    • Особенности прачечной: Washer and Dryer

    • Особенности лота: < 1/4 Acre / East of US-1

    • Особенности двора и крыльца: Balcony / Patio

    • Особенности бассейна: Heated / Inground / Salt Chlorination

    • Направленные лица: From Atlantic Ave take NE 6th Ave (Federal Hwy US1) North and make a right on NE Sixth St and a right onto NE 7th Ave. property on your on Right.

    • Мест в гараже: 2

    • Гараж: Да

    • Жилая площадь: 3001

    • Название подразделения: HOFMAN ADD

Похожие дома

1016 Bay, Delray Beach, FL 33483 placeholder 1016 Bay, Delray Beach, FL 33483
7 Дней
На продажу
Таунхаус
$3,595,000
3 спален 2 ванн 3,085 кв.фт.
1016 Bay, Delray Beach, FL 33483
115 6th, Delray Beach, FL 33444 placeholder 115 6th, Delray Beach, FL 33444
7 Дней
На продажу
Дом
$3,495,000
4 спален 4 ванн 3,655 кв.фт.
115 6th, Delray Beach, FL 33444
2570 Avenue Au Soleil, Gulf Stream, FL 33483 placeholder 2570 Avenue Au Soleil, Gulf Stream, FL 33483
8 Дней
На продажу
Дом
$3,250,000
4 спален 4 ванн 4,330 кв.фт.
2570 Avenue Au Soleil, Gulf Stream, FL 33483
802 2nd, Delray Beach, FL 33483 placeholder 802 2nd, Delray Beach, FL 33483
9 Дней
На продажу
Дом
$4,250,000
3 спален 3 ванн 2,322 кв.фт.
802 2nd, Delray Beach, FL 33483
941 Dogwood, Delray Beach, FL 33483 placeholder 941 Dogwood, Delray Beach, FL 33483
10 Дней
На продажу
Дом
$3,750,000
4 спален 5 ванн 2,611 кв.фт.
941 Dogwood, Delray Beach, FL 33483
921 Cypress, Delray Beach, FL 33483 placeholder 921 Cypress, Delray Beach, FL 33483
10 Дней
На продажу
Дом
$3,700,000
4 спален 2 ванн 2,463 кв.фт.
921 Cypress, Delray Beach, FL 33483
300 Grove, Delray Beach, FL 33444 placeholder 300 Grove, Delray Beach, FL 33444
14 Дней
На продажу
Дом
$4,550,000
4 спален 4 ванн 4,506 кв.фт.
300 Grove, Delray Beach, FL 33444
3221 Pierson, Delray Beach, FL 33483 placeholder 3221 Pierson, Delray Beach, FL 33483
15 Дней
На продажу
Дом
$3,365,000
5 спален 4 ванн 3,420 кв.фт.
3221 Pierson, Delray Beach, FL 33483

The multiple listing information is provided by the Beaches MLS from a copyrighted compilation of listings. The compilation of listings and each individual listing are ©2025-present Beaches MLS. All Rights Reserved. The information provided is for consumers' personal, noncommercial use and may not be used for any purpose other than to identify prospective properties consumers may be interested in purchasing. All properties are subject to prior sale or withdrawal. All information provided is deemed reliable but is not guaranteed accurate, and should be independently verified. Listing courtesy of: Sutter & Nugent LLC