Недвижимость
Ознакомьтесь с нашими объявлениями
Контакты
Расскажите нам о своих потребностях

7776 Bentley, Stuart, FL 34997

Таунхаус Под контрактом
$463,010

BTC: 15.43366667

ETH: 231.50500000

-$15K (2025/11/09)
19 Дней
Набережная
3 спален
2 ванн
1,750 кв.фт.
Est. Предполагаемый диапазон продаж: $0 - $0
$0

Обзор

NEW CONSTRUCTION: Welcome to Pulte's Newest Townhome Community of Camellia. With quick access to I-95, shopping and restaurants - this location is ideal! The Nautical plan has 3 Bedrooms plus a loft plus a handy Flex space downstairs for a Den or Home Office. The Gathering Room is open to the kitchen with welcoming oversized island. The Laundry Room is conveniently located on the second floor with the bedrooms. Pricing includes corner location premium with lake view and upgraded design packages with elegant and on-trend finishes making move in a breeze no matter what your decorating style. Enjoy living a quick stroll from the Amenity and River Access.

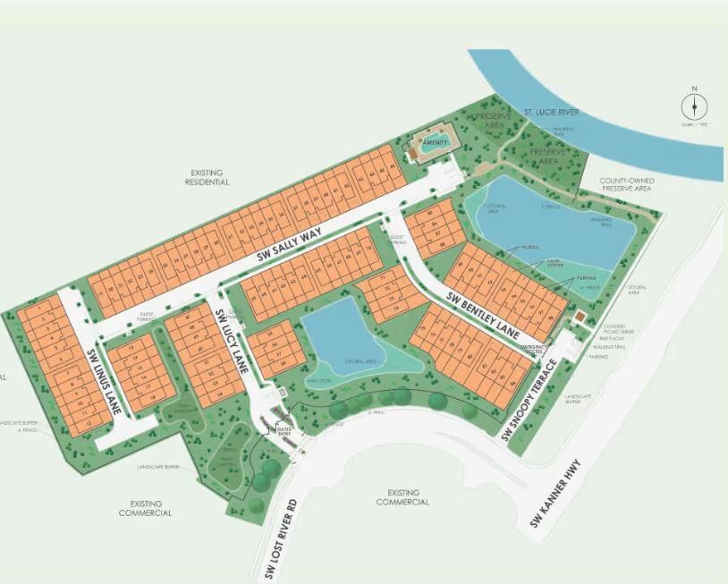
Локация

Факты и особенности

Тип:
Residential
Парковка:
2+ Spaces / Drive - Decorative / Driveway / Garage - Attached / Guest / Vehicle Restrictions
Год постройки:
2025
Лот:
2523 Квадратных Футов
Отопление:
Central
Цена/кв.фут:
$265
Охлаждение:
Central
HOA:
Нет данных
Больше фактов и особенностей
  • Напольное покрытие

    • Carpet

    • Tile

    Отопление

    • Central

    Охлаждение

    • Central

    Бытовая техника

    • Auto Garage Open

    • Dishwasher

    • Disposal

    • Dryer

    • Microwave

    • Range - Electric

    • Refrigerator

    • Smoke Detector

    • Washer

    • Water Heater - Elec

    Другие особенности интерьера

    • Foyer

    • Kitchen Island

    • Pantry

    • Upstairs Living Area

    • Walk-in Closet

    Спальни и ванные комнаты

    • Спальни: 3

    • Ванные: 1

    • Полные ванные комнаты: 2

  • Парковка

    • 2+ Spaces

    • Drive - Decorative

    • Driveway

    • Garage - Attached

    • Guest

    • Vehicle Restrictions

    Имущество

    • Особенности Экстерьера: Open Patio

    Лот

    • Лот: 2523 Квадратных Футов

    Другая Информация о Недвижимости

    • Номер Земельного Участка: 053941013000007400

    • Зонирование: PUD

  • Тип и стиль

    • Тип недвижимости: Residential

    • Подтип недвижимости: Townhouse

  • Общественное благосостояние

    • Underground

  • Детали источника

    • MLS ID: RX-11138220

    Другие факты

    • Строительные материалы: CBS

    • Особенности прачечной: Washer and Dryer

    • Особенности лота: < 1/4 Acre / Corner Lot / Freeway Access / Paved Road / Sidewalks / West of US-1

    • Особенности двора и крыльца: Patio

    • Направленные лица: I-95 -Exit 101 toward Stuart and merge onto FL-76 EHead northeast 0.2 miles, then left on SW Lost River BlvdTurn right into the Camellia community

    • Берег: Да

    • Мест в гараже: 1

    • Гараж: Да

    • Жилая площадь: 1750

    • Название подразделения: CAMELLIA

Похожие дома

160 Birch, Stuart, FL 34997 placeholder 160 Birch, Stuart, FL 34997
2 Дней
Под контрактом
Дом
$529,995
3 спален 2 ванн 2,057 кв.фт.
160 Birch, Stuart, FL 34997
164 Birch, Stuart, FL 34997 placeholder 164 Birch, Stuart, FL 34997
3 Дней
Под контрактом
Таунхаус
$409,995
3 спален 2 ванн 1,683 кв.фт.
164 Birch, Stuart, FL 34997
165 Birch, Stuart, FL 34997 placeholder 165 Birch, Stuart, FL 34997
8 Дней
Под контрактом
Таунхаус
$429,211
3 спален 2 ванн 1,683 кв.фт.
165 Birch, Stuart, FL 34997
8828 Horizon, Stuart, FL 34997 placeholder 8828 Horizon, Stuart, FL 34997
10 Дней
Под контрактом
Дом
$497,500
4 спален 2 ванн 1,625 кв.фт.
8828 Horizon, Stuart, FL 34997
130 Birch, Stuart, FL 34997 placeholder 130 Birch, Stuart, FL 34997
+$80K (2025/08/14)
Под контрактом
Таунхаус
$474,995
3 спален 2 ванн 1,986 кв.фт.
130 Birch, Stuart, FL 34997
177 Birch, Stuart, FL 34997 placeholder 177 Birch, Stuart, FL 34997
-$10K (2025/11/21)
Под контрактом
Дом
$418,828
3 спален 2 ванн 1,683 кв.фт.
177 Birch, Stuart, FL 34997
7765 Bentley, Stuart, FL 34997 placeholder 7765 Bentley, Stuart, FL 34997
12 Дней
Под контрактом
Таунхаус
$410,340
3 спален 2 ванн 1,550 кв.фт.
7765 Bentley, Stuart, FL 34997
7782 Bentley, Stuart, FL 34997 placeholder 7782 Bentley, Stuart, FL 34997
12 Дней
Под контрактом
Таунхаус
$399,845
3 спален 2 ванн 1,550 кв.фт.
7782 Bentley, Stuart, FL 34997

The multiple listing information is provided by the Beaches MLS from a copyrighted compilation of listings. The compilation of listings and each individual listing are ©2025-present Beaches MLS. All Rights Reserved. The information provided is for consumers' personal, noncommercial use and may not be used for any purpose other than to identify prospective properties consumers may be interested in purchasing. All properties are subject to prior sale or withdrawal. All information provided is deemed reliable but is not guaranteed accurate, and should be independently verified. Listing courtesy of: Pulte Realty Inc