Недвижимость
Ознакомьтесь с нашими объявлениями
Контакты
Расскажите нам о своих потребностях

7794 Bentley, Stuart, FL 34997

Таунхаус На продажу
$447,475

BTC: 5.18210770

ETH: 152.93062201

31 Дней
3 спален
2 ванн
1,750 кв.фт.
Est. Предполагаемый диапазон продаж: $0 - $0
$0

Обзор

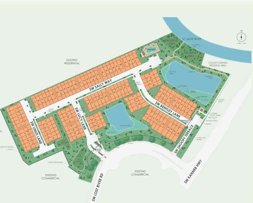
NEW CONSTRUCTION: Welcome to Pulte's Newest Townhome Community of Camellia. With quick access to I-95, shopping and restaurants - this location is ideal! The Nautical plan has 3 Bedrooms plus a loft plus a handy Flex space downstairs for a Den or Home Office. The Gathering Room is open to the kitchen with welcoming oversized island. The Laundry Room is conveniently located on the second floor with the bedrooms. Pricing includes corner location premium and upgraded design packages with elegant and on-trend finishes making move in a breeze no matter what your decorating style. Enjoy living a quick stroll from the Amenity and River Access.

Локация

Факты и особенности

Тип:
Residential
Парковка:
2+ Spaces / Drive - Decorative / Driveway / Garage - Attached / Guest / Vehicle Restrictions
Год постройки:
2025
Лот:
2953 Квадратных Футов
Отопление:
Central
Цена/кв.фут:
$256
Охлаждение:
Central
HOA:
Нет данных
Больше фактов и особенностей
  • Напольное покрытие

    • Carpet

    • Tile

    Отопление

    • Central

    Охлаждение

    • Central

    Бытовая техника

    • Auto Garage Open

    • Dishwasher

    • Disposal

    • Dryer

    • Microwave

    • Range - Electric

    • Refrigerator

    • Smoke Detector

    • Washer

    • Water Heater - Elec

    Другие особенности интерьера

    • Foyer

    • Kitchen Island

    • Pantry

    • Upstairs Living Area

    • Walk-in Closet

    Спальни и ванные комнаты

    • Спальни: 3

    • Ванные: 1

    • Полные ванные комнаты: 2

  • Парковка

    • 2+ Spaces

    • Drive - Decorative

    • Driveway

    • Garage - Attached

    • Guest

    • Vehicle Restrictions

    Имущество

    • Особенности Экстерьера: Open Patio

    Лот

    • Лот: 2953 Квадратных Футов

    Другая Информация о Недвижимости

    • Номер Земельного Участка: 053941013000008100

    • Зонирование: PUD

  • Тип и стиль

    • Тип недвижимости: Residential

    • Подтип недвижимости: Townhouse

  • Общественное благосостояние

    • Underground

  • Другая финансовая информация

    • Годовая сумма налога: $834

  • Детали источника

    • MLS ID: RX-11143338

    Другие факты

    • Строительные материалы: CBS

    • Особенности прачечной: Washer and Dryer

    • Особенности лота: < 1/4 Acre / Corner Lot / Freeway Access / Paved Road / Sidewalks / West of US-1

    • Особенности двора и крыльца: Patio

    • Направленные лица: I-95 -Exit 101 toward Stuart and merge onto FL-76 EHead northeast 0.2 miles, then left on SW Lost River BlvdTurn right into the Camellia community

    • Мест в гараже: 1

    • Гараж: Да

    • Жилая площадь: 1750

    • Название подразделения: CAMELLIA

Похожие дома

7796 Bentley, Stuart, FL 34997 placeholder 7796 Bentley, Stuart, FL 34997
3 Дней
На продажу
Таунхаус
$389,460
3 спален 2 ванн 1,550 кв.фт.
7796 Bentley, Stuart, FL 34997
7780 Bentley, Stuart, FL 34997 placeholder 7780 Bentley, Stuart, FL 34997
-$20K (2025/12/20)
На продажу
Таунхаус
$434,275
3 спален 2 ванн 1,750 кв.фт.
7780 Bentley, Stuart, FL 34997
1040 Fleming, Stuart, FL 34997 placeholder 1040 Fleming, Stuart, FL 34997
9 Дней
На продажу
Дом
$511,000
3 спален 2 ванн 2,189 кв.фт.
1040 Fleming, Stuart, FL 34997
4358 Graham, Stuart, FL 34997 placeholder 4358 Graham, Stuart, FL 34997
11 Дней
На продажу
Дом
$385,000
3 спален 2 ванн 1,377 кв.фт.
4358 Graham, Stuart, FL 34997
7786 Bentley, Stuart, FL 34997 placeholder 7786 Bentley, Stuart, FL 34997
-$5K (2025/12/20)
На продажу
Таунхаус
$385,280
3 спален 2 ванн 1,550 кв.фт.
7786 Bentley, Stuart, FL 34997
1769 Madison, Stuart, FL 34997 placeholder 1769 Madison, Stuart, FL 34997
13 Дней
На продажу
Дом
$430,000
3 спален 2 ванн 1,526 кв.фт.
1769 Madison, Stuart, FL 34997
5746 SE Edgewater Cir, Stuart FL 34997 placeholder 5746 SE Edgewater Cir, Stuart FL 34997
-$20K (2025/12/15)
На продажу
Таунхаус
$399,900
3 спален 2 ванн 1,475 кв.фт.
5746 SE Edgewater Cir, Stuart FL 34997
9674 Purple Martin, Stuart, FL 34997 placeholder 9674 Purple Martin, Stuart, FL 34997
17 Дней
На продажу
Таунхаус
$339,900
3 спален 2 ванн 1,614 кв.фт.
9674 Purple Martin, Stuart, FL 34997

The multiple listing information is provided by the Beaches MLS from a copyrighted compilation of listings. The compilation of listings and each individual listing are ©2025-present Beaches MLS. All Rights Reserved. The information provided is for consumers' personal, noncommercial use and may not be used for any purpose other than to identify prospective properties consumers may be interested in purchasing. All properties are subject to prior sale or withdrawal. All information provided is deemed reliable but is not guaranteed accurate, and should be independently verified. Listing courtesy of: Pulte Realty Inc