Недвижимость
Ознакомьтесь с нашими объявлениями
Контакты
Расскажите нам о своих потребностях

1435 LAKE BALDWIN LANE

Многосемейный Под контрактом
$1,398,000

BTC: 46.60000000

ETH: 699.00000000

+$9K (2025/10/21)
36 Дней
6 спален
3,216 кв.фт.
Est. Предполагаемый диапазон продаж: $0 - $0
$0

Обзор

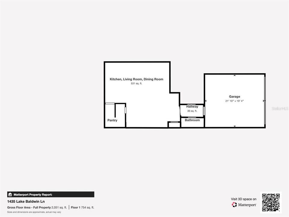
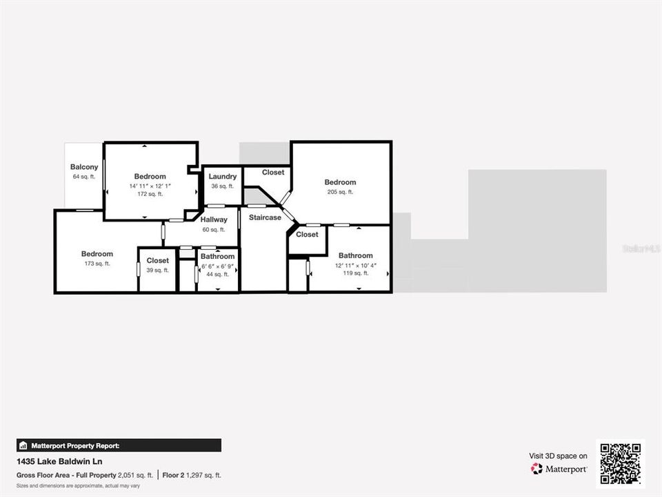
Under contract-accepting backup offers. Discover an exceptional live-work-invest opportunity with this beautifully renovated five-bedroom, four-and-a-half-bath multi-unit in the heart of Baldwin Park. Perfectly situated steps from Publix, top-rated restaurants, boutiques, and Lake Baldwin’s scenic trails, this property offers modern luxury, income potential, and unmatched versatility. Designed for flexibility, the residence features three distinct units, each with its own entrance: Main Home (3BD/2.5BA): Bright and open with engineered hardwood floors, designer updates, and new Miele appliances. The spacious layout blends elegance and comfort with upgraded cabinetry, fixtures, and lighting. Studio Apartment: Private and fully equipped with kitchen, bath, and laundry, ideal for guests or rental income. Separate utilities and updated finishes. Commercial/Office Suite: A street-facing two-room space with full bath, offering excellent visibility for a small business, professional office, or additional rental income. A comprehensive $247K renovation added four new HVAC units, ductwork, water filtration systems, new flooring, cabinetry, lighting, and appliances. With three private entrances, two garages, and parking for up to five vehicles, this property delivers strong income and lifestyle value. Exclusive Buyer Perks: Designer furnishings, lighting, and draperies included, plus $10,000 toward buyer’s closing costs or customization. Enjoy the sought-after Baldwin Park lifestyle with resort-style pools, fitness centers, dog parks, playgrounds, and a scenic 2.5-mile trail all within walking distance. Whether for investment, residence, or live-work flexibility, this exceptional property is a standout in one of Orlando’s most desirable communities.

Локация

Факты и особенности

Тип:
Residential Income
Парковка:
Нет данных
Год постройки:
2007
Лот:
0.09 Акров
Отопление:
Central
Цена/кв.фут:
$435
Охлаждение:
Central Air
HOA:
$1,055
Больше фактов и особенностей
  • Напольное покрытие

    • Carpet

    • Tile

    • Hardwood

    Отопление

    • Central

    Охлаждение

    • Central Air

    Другие особенности интерьера

    • Ceiling Fan(s)

    • Living Room/Dining Room Combo

    • PrimaryBedroom Upstairs

    • Solid Surface Counters

    • Solid Wood Cabinets

    • Stone Counters

    • Thermostat

    • Window Treatments

    Спальни и ванные комнаты

    • Спальни: 6

  • Имущество

    • Этажи: Two

    • Особенности Экстерьера: Balcony / Courtyard / French Doors / Lighting / Sidewalk

    Лот

    • Лот: 0.09 Акров

    Другая Информация о Недвижимости

    • Номер Земельного Участка: 212230053101458

    • Зонирование: PD

  • Тип и стиль

    • Тип недвижимости: Residential Income

    • Подтип недвижимости: Triplex

  • Общественное благосостояние

    • Electricity Connected

    • Water Connected

  • Другая финансовая информация

    • HOA: $1,055

    • Частота HOA: Monthly

    • Годовая сумма налога: $15,660

  • Детали источника

    • MLS ID: O6354421

    Другие факты

    • Строительные материалы: Block / Stucco

    • Детали фундамента: Slab

    • Особенности прачечной: Inside

    • Особенности окна: Drapes / Rods

    • Мест в гараже: 2

    • Прикрепленный гараж: Да

    • Гараж: Да

    • Жилая площадь: 3216

    • Источник воды: Public

    • Название подразделения: BALDWIN PARK

Похожие дома

210 E ROCKWOOD WAY placeholder 210 E ROCKWOOD WAY
Новое
Под контрактом
Дом
$1,000,500
3 спален 1 ванн 1,431 кв.фт.
210 E ROCKWOOD WAY
100 S VIRGINIA AVENUE UNIT 314 placeholder 100 S VIRGINIA AVENUE UNIT 314
4 Дней
Под контрактом
Квартира
$1,129,000
3 спален 3 ванн 2,615 кв.фт.
100 S VIRGINIA AVENUE UNIT 314
915 GARDEN PLAZA placeholder 915 GARDEN PLAZA
6 Дней
Под контрактом
Дом
$1,249,000
4 спален 3 ванн 3,313 кв.фт.
915 GARDEN PLAZA
921 LAKE EMERALD DRIVE placeholder 921 LAKE EMERALD DRIVE
7 Дней
Под контрактом
Дом
$1,475,000
5 спален 4 ванн 3,859 кв.фт.
921 LAKE EMERALD DRIVE
1513 NOTTINGHAM STREET placeholder 1513 NOTTINGHAM STREET
-$100K (2025/11/09)
Под контрактом
Дом
$1,799,000
4 спален 3 ванн 2,907 кв.фт.
1513 NOTTINGHAM STREET
1450 GLENCOE ROAD placeholder 1450 GLENCOE ROAD
18 Дней
Под контрактом
Дом
$1,625,000
4 спален 3 ванн 2,785 кв.фт.
1450 GLENCOE ROAD
2844 STANFIELD AVENUE placeholder 2844 STANFIELD AVENUE
-$55K (2025/11/09)
Под контрактом
Дом
$995,000
3 спален 2 ванн 2,486 кв.фт.
2844 STANFIELD AVENUE
2747 DORELL AVENUE placeholder 2747 DORELL AVENUE
20 Дней
Под контрактом
Дом
$1,400,000
4 спален 4 ванн 3,264 кв.фт.
2747 DORELL AVENUE

The multiple listing information is provided by the Stellar MLS from a copyrighted compilation of listings. The compilation of listings and each individual listing are ©2025-present Stellar MLS. All Rights Reserved. The information provided is for consumers' personal, noncommercial use and may not be used for any purpose other than to identify prospective properties consumers may be interested in purchasing. All properties are subject to prior sale or withdrawal. All information provided is deemed reliable but is not guaranteed accurate, and should be independently verified. Listing courtesy of: PALMANO GROUP RE BROKERAGE LLC