特性
探索我们的清单
聯繫
告诉我们您的需求

2730 RANCHLAND ACRES ROAD

待售
$380,000

BTC: 5.64074650

ETH: 197.91666667

126 天
5 贝兹
3 浴室
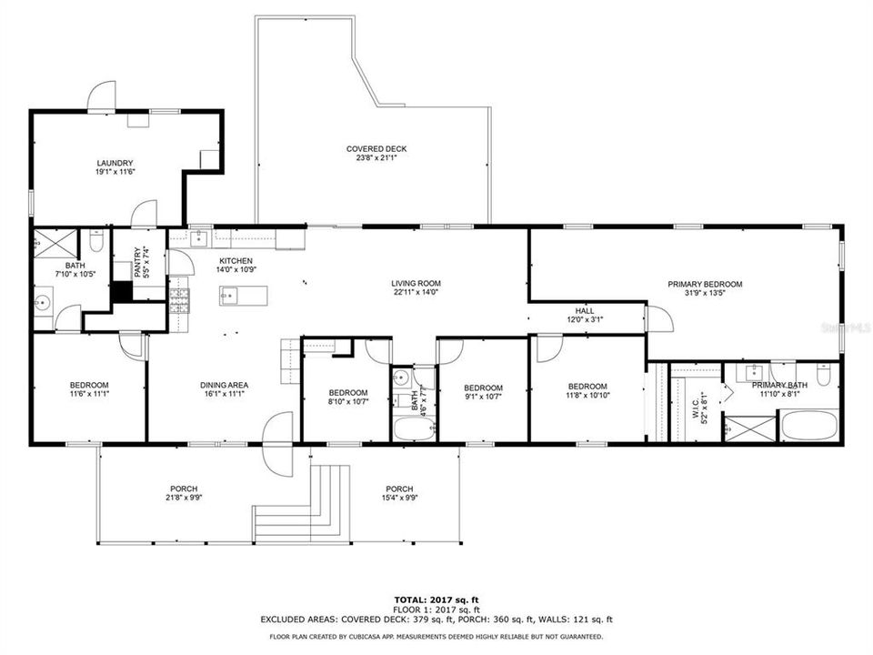
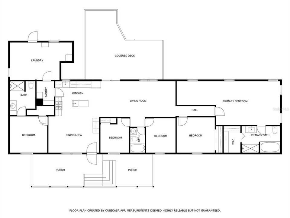
2,400 平方英尺
Est. 预计销售范围: $0 - $0
$0

总览

Experience the best of country living in North Lakeland with this spacious 2,400 sq ft, 5-bedroom, 3-bath manufactured home on 9.75 acres, just minutes from Hwy 98 N, and also near shopping, schools, and Colt Creek State Park. The property includes inviting front and back porches, an above-ground pool, a playset, goat and pig pens, and multiple sheds providing ample storage. Inside, the primary suite features a walk-in closet and an ensuite bathroom with a garden tub and walk-in shower. Ceiling fans and carpet are found in every bedroom providing additional comfort, and a separate laundry room adds convenience. The kitchen offers abundant cabinetry and modern stainless steel appliances, including a dishwasher and microwave. Recent updates include durable vinyl flooring in the main living areas and bathrooms. Blending modern upgrades with rustic charm, this home offers plenty of space for recreation, animals, and the true Florida country lifestyle.

位置

佛罗里达 LAKELAND 33809 待售

详情与特色

类型:
Residential
停车:
没有数据
建造年份:
1995
地段:
9.75 英亩
暖气:
Electric / Heat Pump
价格/平方英尺:
$158
冷气:
Central Air
HOA:
$35
更多事实和特点
  • 地板

    • Carpet

    • Vinyl

    暖气

    • Electric

    • Heat Pump

    冷气

    • Central Air

    设备

    • Dishwasher

    • Microwave

    • Range

    • Refrigerator

    其他室内特点

    • Ceiling Fan(s)

    • Walk-In Closet(s)

    卧室和浴室

    • 卧室: 5

    • 完整的浴室: 3

  • 房屋

    • 等级: One

    • 私人泳池: 是

    • 外观特征: Other

    地段

    • 地段: 9.75 英亩

    其他财产信息

    • 包裹编号: 232615000396000590

    • 分区: RC

  • 类型与风格

    • 财产种类: Residential

    • 属性子类型: Manufactured Home

  • 公益

    • Cable Available

  • 其他财政信息

    • HOA: $35

    • HOA频率: Monthly

    • 年税额: $2,009

  • 来源细节

    • MLS ID: L4955433

    其他详情

    • 建筑材料: Other

    • 基金会详情: Crawlspace

    • 壁炉功能: Electric

    • 洗衣功能: Laundry Room

    • 地段特征: In County

    • 天井和门廊特色: Front Porch / Rear Porch

    • 泳池特色: Above Ground

    • 方向面: Northwest

    • 其他结构: Shed(s) / Storage

    • 壁炉: 是

    • 生活区域: 2400

    • 水源: Well

    • 细分名称: RANCHLAND ACRES ADD

类似房屋

2502 FORESTLAND DRIVE placeholder 2502 FORESTLAND DRIVE
-$4K (2026/01/06)
待售
$295,900
3 贝兹 2 浴室 1,620 平方英尺
2502 FORESTLAND DRIVE
10850 Country haven DR, Other City - In The State Of Florida FL 33809 placeholder 10850 Country haven DR, Other City - In The State Of Florida FL 33809
-$5K (2026/01/04)
待售
房屋
$275,000
3 贝兹 2 浴室
10850 Country haven DR, Other City - In The State Of Florida FL 33809
10850 COUNTRY HAVEN DRIVE placeholder 10850 COUNTRY HAVEN DRIVE
-$5K (2026/01/04)
待售
$275,000
3 贝兹 2 浴室 1,404 平方英尺
10850 COUNTRY HAVEN DRIVE
1828 GATOR CREEK RANCH ROAD placeholder 1828 GATOR CREEK RANCH ROAD
54 天
待售
地段/土地
$400,000
0 room(s)
1828 GATOR CREEK RANCH ROAD
432 WILDLIFE TRAIL placeholder 432 WILDLIFE TRAIL
63 天
待售
地段/土地
$300,000
0 room(s)
432 WILDLIFE TRAIL
0 US HIGHWAY 98 N placeholder 0 US HIGHWAY 98 N
88 天
待售
地段/土地
$285,000
0 room(s)
0 US HIGHWAY 98 N
12552 FARMETTES ROAD placeholder 12552 FARMETTES ROAD
-$36K (2025/12/09)
待售
$349,000
3 贝兹 3 浴室 1,150 平方英尺
12552 FARMETTES ROAD
12315 RANCHLAND TRAIL placeholder 12315 RANCHLAND TRAIL
210 天
待售
$299,000
2 贝兹 1 浴室 1,560 平方英尺
12315 RANCHLAND TRAIL

The multiple listing information is provided by the Stellar MLS from a copyrighted compilation of listings. The compilation of listings and each individual listing are ©2026-present Stellar MLS. All Rights Reserved. The information provided is for consumers' personal, noncommercial use and may not be used for any purpose other than to identify prospective properties consumers may be interested in purchasing. All properties are subject to prior sale or withdrawal. All information provided is deemed reliable but is not guaranteed accurate, and should be independently verified. Listing courtesy of: AMPLIFY REAL ESTATE SERVICES FL